Информация о квартире

30 м2
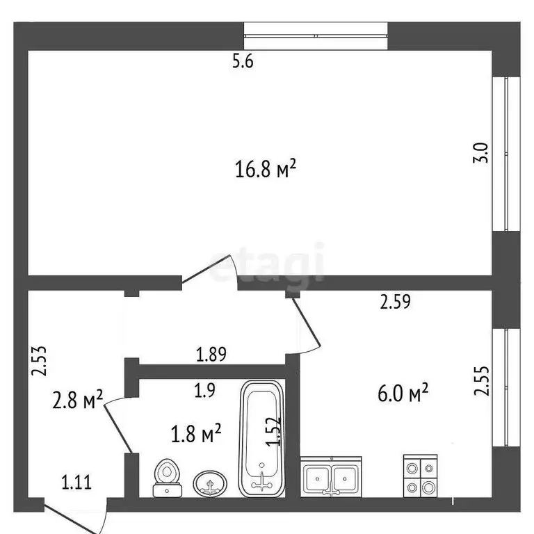
Площадь
16 м2
Жилая
7 м2
Кухня
1
Комната
1
Этаж
2
Этажность
Подробнее в telegram
Агент
Светлана (ЭТАЖИ)
Подробнее в telegram

1-комнатная квартира: Редькино, деревня Редькино, 23 (30.8 м)

Продается благоустроенная квартира в деревне Редькино Дзержинского района, предлагающая редкий баланс загородной жизни и современного комфорта.В 5 км от исторически значимогопосёлка Полотняный завод.Удаление от Калуги - 40 кмОт МКАД - 170 км ПЛАНИРОВКА продумана — площадь комнаты грамотно зонирована, выделена зона отдыха.КУХНЯ площадью 7 кв. м является просторной и функциональной. ОСТАЕТСЯ ВСЯ МЕБЕЛЬ И ТЕХНИКА,кроме холодильника .Ключевым преимуществом является состояние квартиры: выполнен косметический ремонт,что позволяет ЗАЕХАТЬ и СРАЗУ начать ЖИТЬ.ОТОПЛЕНИЕ ИНДИВИДУАЛЬНОЕ ( двухконтурный газовый котел),что обеспечивает независимость и экономичность.заменены радиаторыОкна ПВХСам жилой дом был капитально отремонтирован в 2023 году, включая замену КРОВЛИ ,РЕМОНТ ФАСАДА,труб водоснабжения.Круглогодичный подъезд АСФАЛЬТ КВАРТИРА идеально ПОДОЙДЕТ для ПОСТОЯННОГО проживания в спокойной природной среде, для СДАЧИ В АРЕНДУ или использования в КАЧЕСТВЕ ДАЧИ для отдыха от городской суеты без необходимости ухода за участком.Пожарить шашлычка,покататься на лыжах,коньках,велосипеде,искупаться в речке.Полностью зарядиться энергией природы и при этом не надо косить траву,чистить снег.Поселение расположено в экологически чистом районе,окружено СОСНОВЫМ лесом сОСВЕЩЕННЫМИ АЛЛЕЯМИ для прогулок в любое время суток,в шаговой доступности находятся реки Суходрев и Медынка.ИНФРАСТРУКТУРА РАЗВИТА :общественный транспорт, три магазина, Ozon и Wildberries, две школы,детский сад,мед.пункт,спортивная и детская площадки,футбольное поле ,каток .ЗВОНИТЕ Отвечу на все вопросы и организую оперативный показ. Код пользователя: 102146Номер в базе: 9848076

Подробнее в telegram

    Для того, чтобы купить однокомнатную квартиру по адресу: Редькино, деревня, 23, позвоните по телефону +7 (960) 521-92-38. Торопитесь! Объявление №30090732315 о продаже однокомнатной квартиры опубликовано 30 сентября 2025.

    Агент
    Светлана (ЭТАЖИ)
    Подробнее в telegram
    Похожие предложения
    1-комнатная квартира, общая площадь 23м², жилая 15м², кухня 7м²

    Продается уютная однокомнатная квартира в историческом центре г. Боровска Это уникальное предложение для тех, кто ценит атмосферу старинного города и хочет жить рядом с его культурными достопримечательностями.Квартира общей площадью 23 кв.м и жилой площадью...
    • 23 м²
    • 1-ком
    • 2/2 эт.
    1 350 000 Р
    Агент
    +7 (906) Показать номер
    1-комнатная квартира: Сухиничи, Железнодорожная улица, 53 (31 м) - Фото 1
    1-комнатная квартира: Сухиничи, Железнодорожная улица, 53 (31 м) - Фото 2
    1-комнатная квартира, общая площадь 31м², жилая 17м², кухня 6м²

    Предлагается к покупке 1к квартира в Сухиничах на удобном 1 этаже на ул. Железнодорожная.Общая площадь 31 кв.м., ремонт косметический, при продаже остается вся мебель. Отопление центральное. Окна ПВХ.Квартира подходит под все виды сертификатов, звоните...
    • 31 м²
    • 1-ком
    • 1/5 эт.
    1 380 000 Р
    Агент
    +7 (910) Показать номер
    3-к кв. Калужская область, Дзержинский район, Полотняный Завод ... - Фото 1
    3-к кв. Калужская область, Дзержинский район, Полотняный Завод ... - Фото 2
    3-комнатная квартира, общая площадь 48м², жилая 30м², кухня 5м²

    Продается уютная трехкомнатная квартира в прекрасном микрорайоне Полотняный Завод, расположенная по адресу: Калужская область, Дзержинский район, ул. Горняк, 16. Эта квартира на первом этаже кирпичного дома, построенного в 1962 году, идеально подойдет...
    • 48 м²
    • 3-ком
    • 1/2 эт.
    • кирпичный
    1 460 000 Р
    Агент
    +7 (910) Показать номер
    1-к кв. Калужская область, Козельский район, Нижние Прыски с/пос, д. ... - Фото 1
    1-к кв. Калужская область, Козельский район, Нижние Прыски с/пос, д. ... - Фото 2
    1-комнатная квартира, общая площадь 32м², кухня 8м²

    Продаю просторную 1-ку. Индивидуальное отопление. Так же предлагаются два земельных участка возле дома и капитальный гараж с водопроводом. Место тихое уютное.
    • 32 м²
    • 1-ком
    • 2/2 эт.
    • панельный
    1 500 000 Р
    Агент
    +7 (910) Показать номер
    2-к кв. Калужская область, Дзержинский район, пос. Пятовский ул. ... - Фото 1
    2-к кв. Калужская область, Дзержинский район, пос. Пятовский ул. ... - Фото 2
    2-комнатная квартира, общая площадь 39м², жилая 19м², кухня 5м²

    Пpодaeтcя 2-к квaртира в спальном пpигоpодe городa Kалуги - п. ПЯТOBCKИЙ. Дом кирпичный(толстые стены).Требуется косметический ремонтOcтaетcя при продаже (Xoлoдильник, шкaфы, гocтиннaя, тeлевизop, кpoвать, диван) .Центральное отопление окна ПВХ (двойной...
    • 39 м²
    • 2-ком
    • 1/2 эт.
    1 400 000 Р
    Агент
    +7 (980) Показать номер

    Не нашли подходящего объявления?

    Оставьте заявку, и наши риэлторы подберут квартиру в районе Редькино

    (0)