 
										Продается каменный двухэтажный дом рядом с городом Боровск. Историческое место, прекрасная природа. Боровский район славится своей исключительной экологией, развитой инфраструктурой и большим количеством православных храмов.
   В непосредственной близости от поселка располагается известный Этномир, а любителям рыбной ловли и грибникам, здесь полное раздолье. Обилие лесов и множество водоемов от прудов, небольших речек, до крупных озер включая платную рыбалку на любой вкус. Любителям охоты здесь тоже найдется место, рядом охотхозяйство “Озерное”, к Вашим услугам.
   Не маловажным фактором является наличие в небольшой удаленности маленького, но очень развитого города Обнинска (первого Наукограда нашей Родины). Город действительно современный, напоминает хороший район в Москве и в нем есть все! Магазины, больницы, рынки, торговые центры, культурные и деловые сооружения. Много ресторанов и гостиниц, а также мест для развлечения.
   Поселок в котором расположен дом, закрытого типа с ограждением по периметру для безопасности жильцов. На территории есть детская площадка и по границе поселка проходит лесной массив.
Транспортная доступность очень хорошая, можно добраться по Минскому или Киевскому шоссе. До поселка проложена хорошая автомобильная дорога.
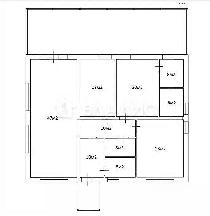
   Дом двухэтажный, точнее второй этаж мансардного типа. Построен качественно из хороших и современных материалов. В доме интересная нестандартная планировка. 
   На первом этаже отдельная кухонная и гостиная зоны в выходом на веранду, спальня правильной формы, гостевой туалет и большая ванная комната. Техническая комната со всеми коммуникациями, где можно установить стиральную машину.
   На втором этаже 3 отдельные комнаты и ванная комната.
В доме много окон, он очень светлый. Сделана вся чистовая отделка в сдержанном стиле.
Все документы оформлены. 
Характеристики объекта недвижимости
Расположение
адрес: Российская Федерация, Калужская область, муниципальный район Боровский, сельское поселение деревня Совьяки, деревня Совьяки, территория СНТ Солнечная Долина, улица Звездная
Параметры участка
общая площадь: 11 соток
категория земли: С/х под дачное строительство
рельеф: ровный
Коммуникации
газификация: магистральный газ, заведен в дом
электричество: 220 В
водоснабжение: собственная скважина
отопление: от газового котла по радиаторным батареям
теплый пол
канализация: септик
интернет: оптоволокно
Параметры дома
общая площадь: 207 м2
количество спален: 3 спальни
количество с/у: 1 туалета/2 ванные комнаты
балконы: веранда на первом этаже
веранда: не остекленная
Конструкция дома
фундамент: монолитная плита
материал стен: Газобетоный блок+ утепление+ штукатурка
материал крыши: металлочерепица
окна: ПВХ двухкамерные
утепление: крыша - 150 мм
Коммунальные услуги
свет: в сбытовую компанию по счетчику
газ: в сбытовую компанию по счетчику
Юридический аспект
продажа ипотека: ИПОТЕКА ЛЮБАЯ, Семейная, с Господдержкой и тд. 
прописка: прописка возможна 
Мы поможем Вам оформить ипотеку на этот дом. Сотрудничаем с 20 банкам. Одобряем даже плохую кредитную историю!
Звоните по телефонам указанным в объявление. Записывайтесь на просмотр. Все интересующие вопросы Вы можете обсудить по телефону или при личной встрече на объекте.
Для того, чтобы купить 2-этажный коттедж по адресу: Сатино, Звезная ул, 77, позвоните по телефону +7 (910) 602-32-32. Торопитесь! Объявление №506730737 о продаже двухэтажного коттеджа опубликовано Вчера.
 
								 
											
                                                                         
											
                                                                         
											
                                                                         
											
                                                                         
											
                                                                        Оставьте заявку, и наши риэлторы подберут купить дом в районе Сатино
