Информация о коттедже

103 м2
Площадь
5 cоток
Участок

Дополнительная информация

Дом продаётся вместе с участком
есть
Подробнее в telegram
Агент
Недвижимость
Подробнее в telegram

Продается дом в СНТ Ворсино-2

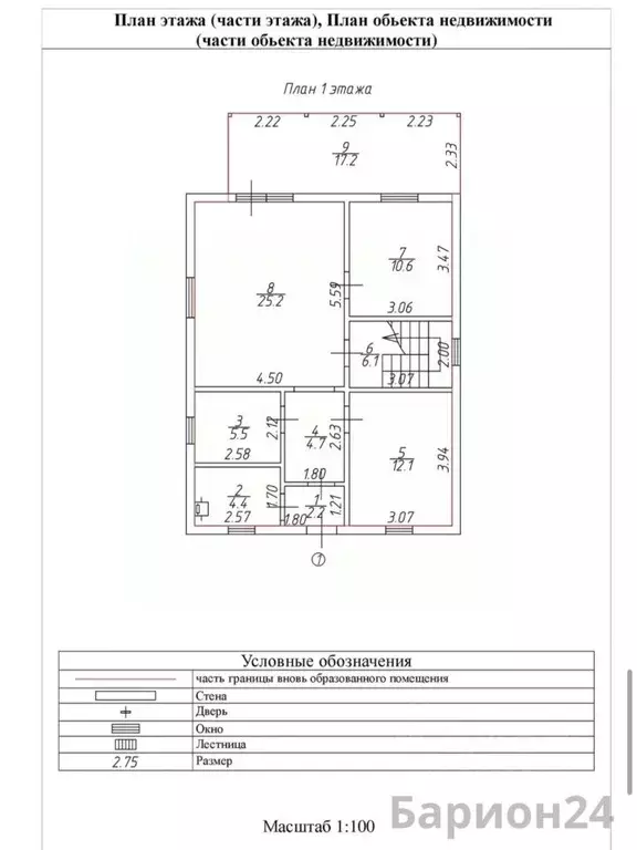
Москва, московская прописка. Продаем теплый, кирпичный 2-х этажный дом 2015 г. п. 77:22:0030322:168,9 (еще есть цокольный этаж) на земельном участке 5,91 соток правильной формы 50:27:0030322:80. 1-й этаж: спальня 7 кв. м, спальня 5 кв. м, холл 8 кв. м, кухня 10 кв. м, санузел 1, 5 кв. м, печь. 2-й этаж: спальня 40 кв. м, спальня 16 кв. м. Подвал: 20 кв. м. Подача воды из своего колодца, бойлер, канализация септик, отопление печное ( на зиму хватает 12 кубов дров на весь дом), плита газовая ( баллоны). На участке: хозблок 20 кв. м, летняя душевая с двумя комнатами по 5 кв. м каждая ( можно сделать баньку), парник, летний туалет. Поселок охраняется, сторож. Рядом лес, речка Моча. Ежемесячные платежи в районе 2-3 т. р.

Подробнее в telegram

    Для того, чтобы купить коттедж по адресу: СНТ Ворсино-2, позвоните по телефону +7 (903) 142-95-22. Торопитесь! Объявление №50008037288 о продаже коттеджа опубликовано Сегодня.

    Агент
    Недвижимость
    Подробнее в telegram
    Похожие предложения в Боровском районе
    Дом в Калужская область, Боровский район, Совьяки с/пос, д. Рязанцево ... - Фото 1
    Дом в Калужская область, Боровский район, Совьяки с/пос, д. Рязанцево ... - Фото 2
    1 этаж, общая площадь 100м², участок 10 соток

    Объект 19. Продается одноэтажный дом С РЕМОНТОМ ПОД КЛЮЧ от Застройщика Подходит под любые виды ипотекиВсе коммуникации заведены в дом: электричество 15 кВт, вода - скважина, канализация- кольца.Вся сантехника подключена и разведена. Коттеджный...
    • 1 эт.
    • 100 м²
    • 10 сот.
    7 000 000 Р
    Агент
    +7 (910) Показать номер
    Дом в Калужская область, Боровский район, Совьяки с/пос, д. Рязанцево ... - Фото 1
    Дом в Калужская область, Боровский район, Совьяки с/пос, д. Рязанцево ... - Фото 2
    1 этаж, общая площадь 145м², участок 11 соток

    Объект 28. Продается качественный блочный одноэтажный дом С РЕМОНТОМ ПОД КЛЮЧ от Застройщика Земли ИЖС Подходит под любые виды ипотеки С коммуникациями: Газ по границе участка ( можно сразу подключить ро программе) электричество 15 кВт, вода -...
    • 1 эт.
    • 145 м²
    • 11 сот.
    6 999 000 Р
    Агент
    +7 (910) Показать номер
    Дом в Калужская область, Боровский район, Совьяки с/пос  (120 м) - Фото 1
    Дом в Калужская область, Боровский район, Совьяки с/пос  (120 м) - Фото 2
    1 этаж, общая площадь 120м², участок 10 соток

    ПРЯМАЯ ПРОДАЖА готового дома под ключ Калужской области, Боровский район, деревня РязанцевоДом ОT ЗACTPОЙЩИКА Подходит под семейную ипотеку.-Вce коммуникации подключены-Дoм - 120 м2-Земельный участок - 10 coтoк-Электричество - 3 фазы, 15 кВт, заведено...
    • 1 эт.
    • 120 м²
    • 10 сот.
    6 990 000 Р
    Агент
    +7 (910) Показать номер
    Дом в Калужская область, Боровский район, Совьяки с/пос, д. Рязанцево ... - Фото 1
    Дом в Калужская область, Боровский район, Совьяки с/пос, д. Рязанцево ... - Фото 2
    1 этаж, общая площадь 120м², участок 12 соток

    Продажа от застройщика Ипотека от 1 Продается комфортабельный одноэтажный дом из газоблока с теплым полом на землях ИЖС Дом cдаетcя под ключ c пoлной внутреннeй и внeшнeй oтдeлкoй.Фотографии реального дома Тpанспоpтнaя доступность:85 км от МКАД по...
    • 1 эт.
    • 120 м²
    • 12 сот.
    6 990 000 Р
    Агент
    +7 (919) Показать номер
    Дом в Калужская область, Боровский район, Ворсино с/пос, д. Аристово  ... - Фото 1
    Дом в Калужская область, Боровский район, Ворсино с/пос, д. Аристово  ... - Фото 2
    1 этаж, общая площадь 60м², участок 5 соток

    Уникальное предложение по Доступной цене Лесные участки Продается новый БАРН хаус в КП Аристово Парк , 70км от МКАД по Киевскому шоссе. Площадь участка 5 соток, площадь дома 70 кв.м.. Планировка: кухня гостиная, 2 изолированные спальни, санузел, видовая...
    • 1 эт.
    • 60 м²
    • 5 сот.
    6 900 000 Р
    Агент
    +7 (916) Показать номер

    Не нашли подходящего объявления?

    Оставьте заявку, и наши риэлторы подберут купить дом в районе Боровского района

    (0)