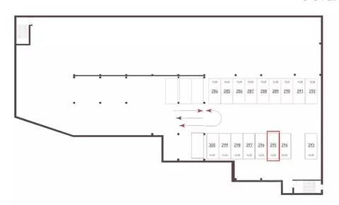
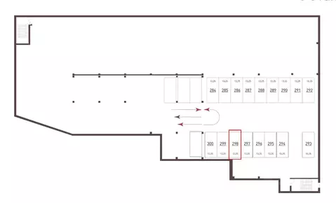
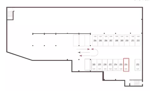
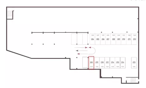
Россия, Калужская область, Калуга, ГК Горизонталь тер., 138

Информация о гараже

22 м2
Площадь

Территория

СТО
рядом
Автомойка
рядом
Подробнее в telegram

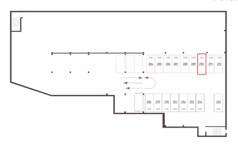
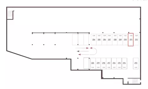
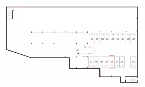
Гараж в Калужская область, Калуга ГК Горизонталь тер., 138 (22 м)

Артикул: 539188 Продается гаражный бокс в ГК ГоризонтальАдрес: г. Калуга, ул. Труда, 37АУникальное предложение для тех, кто ценит удобство и выгодное расположение Гаражный бокс в самом центре города — это не только надежное хранение автомобиля, но и отличная инвестиция в недвижимость с высоким потенциалом. О помещении -Площадь: 22,3 кв.м -Электроснабжение: 220В и 320В — готовые решения для подключения оборудования. -Возможность обустройства смотровой ямы (ранее существовала, засыпана гранитным щебнем и заасфальтирована). -Требуется косметический ремонт — отличный шанс адаптировать пространство под свои нужды. -Дорога и подъезды очищается городом в зимний период. -Отсутствуют долги — чистое право собственности. О локацииГараж расположен в престижном районе Калуги, в шаговой доступности от ключевых транспортных развязок, деловых центров и торговых точек. Это место с развитой инфраструктурой и отличной транспортной доступностью, что делает его привлекательным как для частного использования, так и для коммерческих проектов. Не упустите шанс приобрести гараж в одном из лучших районов Калуги Этот объект — отличное вложение с перспективой роста стоимости. Идеально подойдет для автолюбителей, предпринимателей или инвесторов. Свяжитесь с нами прямо сейчас, чтобы договориться о просмотре и сделать выгодную сделку Агентство недвижимости ВАШ ЭТАЖ — это команда высококвалифицированных специалистов, включая: -профессиональных риелторов с глубоким знанием рынка, -опытных юристов, обеспечивающих юридическую чистоту сделок, -экспертов по ипотечному кредитованию, подбирающих оптимальные финансовые решения.Мы сделаем процесс приобретения и продажи недвижимости простым и результативным

Подробнее в telegram

    Для того, чтобы купить гараж площадью 22 кв. метра по адресу: Калуга, ГК Горизонталь тер., 138, позвоните по телефону +7 (910) 592-48-24. Торопитесь! Объявление №40003093472 о продаже гаража площадью 22 кв. метра опубликовано Вчера.

    Похожие предложения
    общая площадь 35м²

    В проджаже 2-этажный кирпичный гараж площадью 34,7 м2 в Гаражном кооперативе Прогресс в микрорайоне Малинники, улица Промышленная. 1989 года постройки. Двухуровневый гараж позволяет не только парковать свой личный транспорт, но и использовать его для...
    • 35 м²
    560 000 Р
    Агент
    +7 (910) Показать номер
    Гараж в Калужская область, Калуга  (25 м) - Фото 1
    Гараж в Калужская область, Калуга  (25 м) - Фото 2
    общая площадь 25м²

    Арт.Продам кирпичный гараж по ул. Веры Андриановой.Расположен гараж практически в центре города, ГК Локомотив. Площадь гаража 25 кв.м., есть яма. Свет в гараж заведен. Круглогодичный удобный подъезд. Всё в собственности. Заинтересовал объект, запишитесь...
    • 25 м²
    550 000 Р
    Агент
    +7 (980) Показать номер
    Гараж в Калужская область, Калуга Московская ул. (21 м) - Фото 1
    Гараж в Калужская область, Калуга Московская ул. (21 м) - Фото 2
    общая площадь 21м²

    Арт.. Продается гараж 21.4 м2 в гаражном кооперативе Прожектор, район ул. Хрустальной. Расположен при въезде в кооператив. Кирпичный. Есть яма и подвал. Электричество заведено.
    • 21 м²
    550 000 Р
    Агент
    +7 (910) Показать номер
    Гараж в Свердловская область, Екатеринбург ул. Павла Шаманова, 8 (14 ... - Фото 1
    Гараж в Свердловская область, Екатеринбург ул. Павла Шаманова, 8 (14 ... - Фото 2
    общая площадь 14м²

    Продам парковочное место 241. Сухо и теплое. Круглосуточное видеонаблюдение и охрана. Удобный выезд из двора.ID объекта в нашей базе: 25573
    • 14 м²
    560 000 Р
    Агент
    +7 (982) Показать номер
    Гараж в Тамбовская область, Тамбов Заводская ул., 20А (26 м) - Фото 1
    Гараж в Тамбовская область, Тамбов Заводская ул., 20А (26 м) - Фото 2
    общая площадь 26м²

    ПРОДАЕТСЯ КИРПИЧНЫЙ ГАРАЖ ПЛОЩАДЬЮ 26 КВ.М. В ГСК ЭНТУЗИАСТ Месторасположение рядом с улицой Никифоровской. Гараж чистый и сухой. Имеется смотровая яма и погреб. Полы бетонные. Электрический кабель проходит по внешней стороне стены. Установлены железные...
    • 26 м²
    550 000 Р
    Агент
    +7 (980) Показать номер

    Не нашли подходящего объявления?

    Оставьте заявку, и наши риэлторы подберут гараж в районе Калуги

    (0)