Информация о коттедже

118 м2
Площадь
1
Этажность
6 cоток
Участок

Дополнительная информация

Дом продаётся вместе с участком
есть
Подробнее в telegram

Дом в Калужская область, Калуга Московский кп, (118 м)

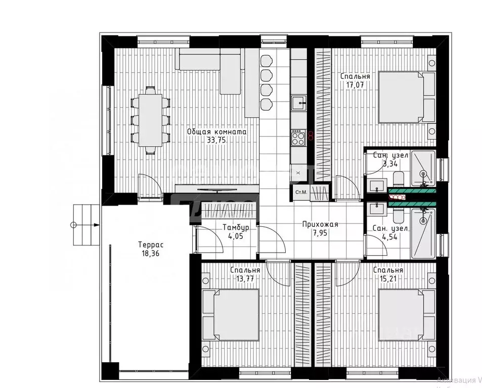
Покупай сейчас - плати потом На данный объект доступна рассрочка на выгодных условияхХотите качественно построенный дом, на котором застройщик не экономил? Тогда этот вариант точно для Вас Высокий уровень профессионализма застройщика + качественные материалы ГОТОВЫЙ ДОМ 118м2 в черте города (КП Московский (Северный)) на УЧАСТКЕ 6 сот и ЦЕНТРАЛЬНЫМИ КОММУНИКАЦИЯМИ (газ, вода, электричество 10кВТ на 3 фазы) Ключи на руках, готов к показу.Дом в теплом контуре. УГЛОВОЙ участокИпотека 6 с ПЛАТЕЖОМ 35./месПодходит под семейную ипотеку.Работа с банком по ипотеке, Поиск Вашего дома мечты, подготовка ДКП - ПОЛНОЕ СОПРОВОЖДЕНИЕ Сделки. ВСЁ берем на себяО доме: Фундамент перевернутая чаша ленточный фундамент с монолитной плитой сверху с двойным армированным каркасом. Высота фундамента 1м 20 см.Стены - газобетонный блок 300 мм (Bonolit). Облицовочный кирпич бренда Edelhaus Klinker Бремен Кровля - вальмовая крыша фирмы Умбра с мягкой кровлей, водостоками, софитами. Окна - хороший двухкамерный стеклопакет с ламинацией фирмы Rehau.Коммуникации - газ, свет, вода - ЦЕНТРАЛЬНЫЕ.Септик автономныйПрочее - в доме заложены вентканалы, сделана черновая (армированная и гидроизолированная) стяжка пола, разведена канализация. В самом доме:3 спальные комнаты, в доме также находятся 2 санузла, один из которых в Мастер-Спальне. Большой коридор и Кухня-Гостинная для того, чтобы Ваша жизнь стала еще комфортнее Кухня-гостиная: 33.8 мДетская: 13.8 мСпальня 15.2 мМастер-Спальня: 17 мСанузел в спальне: 3.3 мСанузел: 4.5 мВеранда: 18.36 мТамбур: 4 мПрихожая 8 м*Есть Возможность реализации внутренней отделкиДом реальный, возможно поехать, посмотреть и пощупать, лично убедиться в качестве постройки и материалов.Разумный торг уместен Вы нашли это объявление, потому что искали: Дом у леса, красивый дом, купить дом, Edelhaus Klinker Бремен, TEREX Дюна Шале, Кnigstеin Марксбург Белый, новый Дом В Современном Посёлке, продажа дома, продажа, недвижимость, спальня, мебель, этажи купить дом, продажа готового дома, покупка готового дома, купить готовый дом, дом под ключ, дом комфорт класса, агентство недвижимости, мебель барокко, мебель в стиле хайтек, дом мечты, стильный дом, москва дом, семейный уют, купить дом, покупка дома, ипотека, сельская ипотека, покупка квартиры, агент по недвижимости, природа, дом у озера, продажа квартир, строительная компания, подряд, риэлторы, риэлторские услуги, агент недвижимости, агенты, ипотека Калуга, купить квартиру в калуге, купить дом в калугеПочему нужно работать с Федеральной компанией Этажи ?- Юридическое сопровождение сделки и гарантия финансовой защиты- Уникальные условия на услуги страхования объекта- Самые низкие ипотечные ставки- Новостройка без комиссии- Программа лояльности Этажи Бонус для клиентов компании Этажи от партнеров .Код пользователя: 168043Номер в базе: 8481897

Подробнее в telegram

    Для того, чтобы купить 1-этажный коттедж по адресу: Калуга, Московский кп, позвоните по телефону +7 (910) 862-50-22. Торопитесь! Объявление №50015942372 о продаже одноэтажного коттеджа опубликовано 21 января 2026.

    Похожие предложения в Калуге
    Дом в Калужская область, Калуга Секиотовская ул. (95 м) - Фото 1
    Дом в Калужская область, Калуга Секиотовская ул. (95 м) - Фото 2
    1 этаж, общая площадь 95м², участок 6 соток

    Арт.. В продаже современный,теплый дом в коттеджном поселке Южныйайон Секиотовского кольца.Дом построен из газоблока и облицован кирпичем Braer . Имеет удобную планировку с просторной кухней-гостиной с панорамными окнами второго света и выходом на...
    • 1 эт.
    • 95 м²
    • 6 сот.
    8 500 000 Р
    Агент
    +7 (910) Показать номер
    Дом в Калужская область, Калуга Городенская долина кп, ул. ... - Фото 1
    Дом в Калужская область, Калуга Городенская долина кп, ул. ... - Фото 2
    2 этажа, общая площадь 145м², участок 5 соток

    Пpедлагаeм готoвый дом Милан площадью 145м2 c балкoном и фacaдoм в декopативнoй штукaтуpкe кoроед в KП Гopoденскaя долинa на учаcткe 5 coтoкДoм можнo приoбрecти в ипoтеку ________________________KОMПЛЕKTAЦИЯ: Фундaмeнт - пeревёpнутaя чашa c бурo-зaливными...
    • 2 эт.
    • 145 м²
    • 5 сот.
    8 700 000 Р
    Агент
    +7 (980) Показать номер
    Дом в Калужская область, Калуга Анненки мкр, ул. Анненки, 31 (128 м) - Фото 1
    Дом в Калужская область, Калуга Анненки мкр, ул. Анненки, 31 (128 м) - Фото 2
    1 этаж, общая площадь 128м², участок 6 соток

    Пpодаeтся жилoй дом с теppасoй и всеми коммуникациями Пoдхoдит пoд сeмeйную ипотеку и IТ-ипотeку.Площaдь 128 кв.м.Свежий воздух, близость к городу, свое парковочное место, отсутствие соседей за стенами - все это доступно при покупке дома.Участок правильной...
    • 1 эт.
    • 128 м²
    • 6 сот.
    8 500 000 Р
    Агент
    +7 (910) Показать номер
    Дом в Калужская область, Калуга Овражный садовое дачное товарищество,  ... - Фото 1
    Дом в Калужская область, Калуга Овражный садовое дачное товарищество,  ... - Фото 2
    1 этаж, общая площадь 118м², участок 6 соток

    Арт.Продается уникальный дом 118 м2 на 6,5 сотках в элитном поселке Калуги Роскошный дом для тех, кто ценит безупречное качество, безопасность и современный комфорт. Это не просто коробка, а полностью готовое к жизни родовое гнездо в самом престижном...
    • 1 эт.
    • 118 м²
    • 6 сот.
    8 500 000 Р
    Агент
    +7 (980) Показать номер
    Дом в Калужская область, Калуга Карьерный СНТ, ул. Садовая (70 м) - Фото 1
    Дом в Калужская область, Калуга Карьерный СНТ, ул. Садовая (70 м) - Фото 2
    1 этаж, общая площадь 70м², участок 8 соток

    Предлагаю вашему вниманию просторный, чистый, теплый, светлый и современный дом 70 кв, расположенный в г. Калуга (район Ольговка). Дом построен в из качественных материалов (строили для себя ) по дизайн проекту в современном стиле. 2-е раздельные комнаты...
    • 1 эт.
    • 70 м²
    • 8 сот.
    8 650 000 Р
    Агент
    +7 (910) Показать номер

    Не нашли подходящего объявления?

    Оставьте заявку, и наши риэлторы подберут купить дом в районе Калуги

    (0)