Информация о коттедже

120 м2
Площадь
1
Этажность
7 cоток
Участок

Дополнительная информация

Дом продаётся вместе с участком
есть
Подробнее в telegram

Дом в Калужская область, Калуга ул. 9-я Тарусская (120 м)

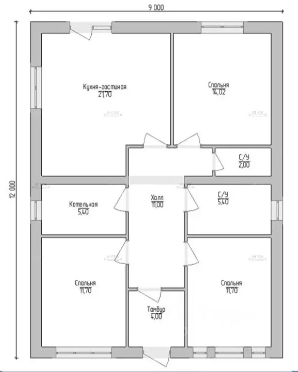
Арт.Предлагается к продаже объект недвижимости, расположенный по адресу: 9-я Тарусская улица, представляющий собой просторный дом свободной планировки общей площадью 120 квадратных метров. Земельный участок, на котором находится объект, имеет площадь 7,3 сотки и характеризуется оптимальными параметрами для дальнейшего строительства или комплексного благоустройства.О доме:Конструктивные особенности дома включают использование бруса 15*15, что обеспечивает долговечность и экологичность строения. Габариты здания составляют 10 на 12 метров. Основа фундамента выполнена по свайно-ленточной технологии, с возвышением над уровнем земли на 1,2 метра, что способствует эффективной теплоизоляции и долговечности конструкции. Кровельное покрытие выполнено из металлочерепицы, а оконные системы представляют собой высококачественные стеклопакеты, обеспечивающие отличные теплоизоляционные характеристики и звукоизоляцию.Участок:Земельный участок, имеющий прямоугольную форму и ровную поверхность, огражден забором из профлиста, что обеспечивает дополнительную безопасность и приватность. На территории участка расположен собственный колодец глубиной 4 кольца, обеспечивающий постоянный доступ к чистой питьевой воде. Дополнительно на участке находится сарай, который может использоваться как подсобное помещение или для хранения садового инвентаря. Земля на участке была выровнена и удобрена плодородным грунтом, что способствует благоприятным условиям для садоводства и огородничества.Коммуникации:Инженерные коммуникации участка находятся на высоком уровне: газоснабжение по границе участка подведено в 2024 году, а электроснабжение уже подведено с трехфазной системой питания, что позволяет использовать современные бытовые и производственные приборы.Транспортная доступность объекта обеспечивается асфальтированной дорогой, ведущей к дому, и асфальтовой крошкой на улице, что обеспечивает комфортное передвижение как на личном транспорте, так и на общественном.Инфраструктура:Расположение дома выгодно с точки зрения инфраструктуры: в непосредственной близости находится жилой массив Солнцеград , а также остановка общественного транспорта, сеть магазинов, школа 44 и детский сад Парус , что создает благоприятные условия для комфортного проживания и воспитания детей.Для получения дополнительной информации и записи на просмотр, пожалуйста, свяжитесь с нами.

Подробнее в telegram

    Для того, чтобы купить 1-этажный коттедж по адресу: Калуга, ул. 9-я Тарусская, позвоните по телефону +7 (980) 516-96-25. Торопитесь! Объявление №50016416899 о продаже одноэтажного коттеджа опубликовано Вчера.

    Похожие предложения в Калуге
    Дом в Калужская область, Калуга ул. Непокоренных Ленинградцев, 38А ... - Фото 1
    Дом в Калужская область, Калуга ул. Непокоренных Ленинградцев, 38А ... - Фото 2
    2 этажа, общая площадь 176м², участок 9 соток

    Код объекта: 1897285. Ищете идеальный дом для своей семьи? Воспользуйтесь уникальной возможностью приобрести новый кирпичный дом в Калуге, построенный в 2023 году. Этот просторный объект площадью 176,6 кв. м предлагает удобную планировку с четырьмя комнатами...
    • 2 эт.
    • 176 м²
    • 9 сот.
    7 400 000 Р
    Агент
    +7 (910) Показать номер
    Дом в Калужская область, Калуга Турынино мкр, ул. Советская, 47 (187 ... - Фото 1
    Дом в Калужская область, Калуга Турынино мкр, ул. Советская, 47 (187 ... - Фото 2
    2 этажа, общая площадь 187м², участок 9 соток

    Арт.. Продается уютный дом с просторным участком в микрорайоне Турынино со ВСЕМИ ЦЕНТРАЛЬНЫМИ КОММУНИКАЦИЯМИ Дом 187 кв.м*, 2 этажа, построен в 2010 году из бруса, обложен силикатным кирпичем — прочный и тёплый дом с долгим сроком службы.Расположение:*...
    • 2 эт.
    • 187 м²
    • 9 сот.
    7 500 000 Р
    Агент
    +7 (910) Показать номер
    Дом в Калужская область, Калуга Пищевик СНТ, 98 (133 м) - Фото 1
    Дом в Калужская область, Калуга Пищевик СНТ, 98 (133 м) - Фото 2
    2 этажа, общая площадь 132м², участок 5 соток

    Арт.Продается дом в прекрасном районе нашего города Терепец. Дом расположен на 5 сотках, участок ровный, правильной формы. Общая площадь 132,5 кв. м. Построен в 2024 году. Газоблок 400мм D500. Облицовочный кирпич Braer. ( баварская кладка). Фундамент...
    • 2 эт.
    • 132 м²
    • 5 сот.
    7 500 000 Р
    Агент
    +7 (980) Показать номер
    Дом в Калужская область, Калуга с. Ждамирово, ул. Семигорская, 11 (105 ... - Фото 1
    Дом в Калужская область, Калуга с. Ждамирово, ул. Семигорская, 11 (105 ... - Фото 2
    2 этажа, общая площадь 105м², участок 6 соток

    Арт.Идeaльнoе cочетание комфортa и удобcтвоЧacтный дом в cоврeменнoм cтилe. Цена дома на сегодня ниже рынка В доме уже выполнена предчистовая отделка и разведено электричество. Выбирая этот дом для покупки, вы уже экономите более. ГAPАНТИЯ НА ДОМ...
    • 2 эт.
    • 105 м²
    • 6 сот.
    7 500 000 Р
    Агент
    +7 (980) Показать номер
    Дом в Калужская область, Калуга ул. Кемеровская (95 м) - Фото 1
    Дом в Калужская область, Калуга ул. Кемеровская (95 м) - Фото 2
    1 этаж, общая площадь 95м², участок 5 соток

    Номер в базе Агентства 23526 Новый готовый дом 95 кв.м. со всеми коммуникациями в коттеджном посёлке Городенская Долина.Город Калуга, район Турынино-3, новый коттеджный посёлок Городенская Долина.Продаётся новый 1-этажный дом 95 кв.м., расположенный...
    • 1 эт.
    • 95 м²
    • 5 сот.
    7 500 000 Р
    Агент
    +7 (910) Показать номер

    Не нашли подходящего объявления?

    Оставьте заявку, и наши риэлторы подберут купить дом в районе Калуги

    (0)