Информация о коттедже

103 м2
Площадь
1
Этажность
7 cоток
Участок

Дополнительная информация

Дом продаётся вместе с участком
есть
Подробнее в telegram

Дом в Калужская область, Калуга Московский кп, (104 м)

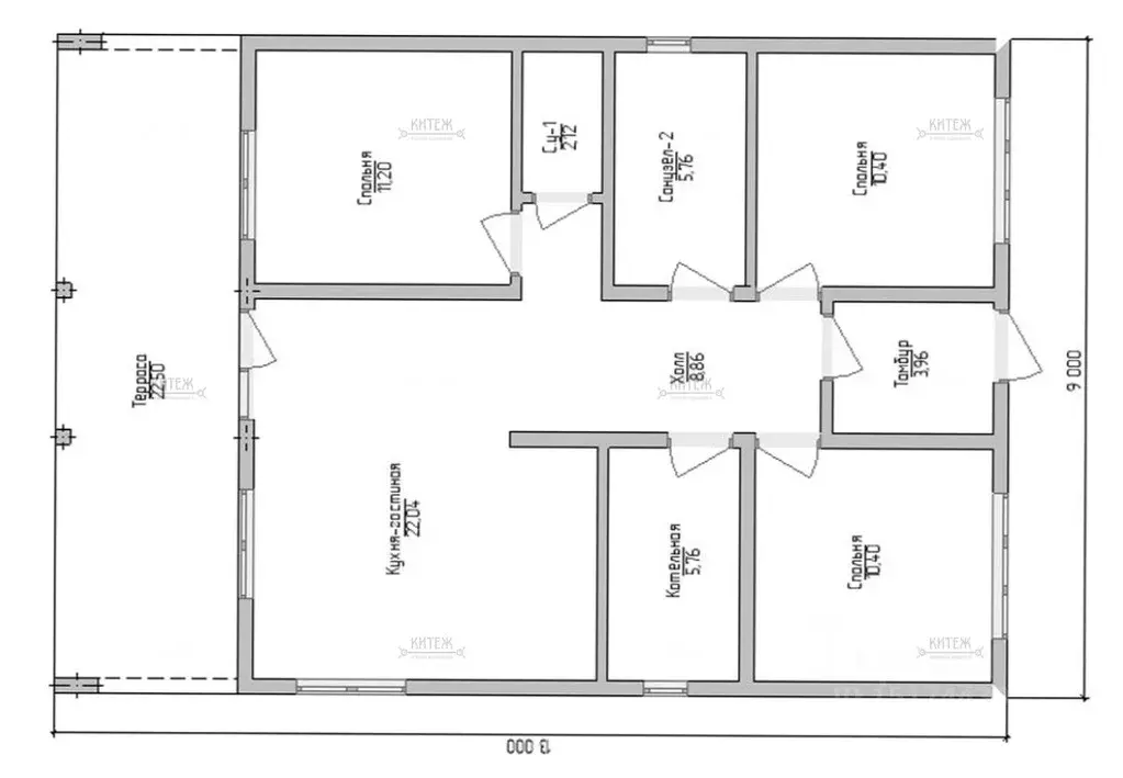
Продается современный дом 104 м в коттеджном поселке Московский (1-я очередь, Северный)Ключевые преимущества: Район Северный , 1-я очередь обжитая территория с асфальтированными дорогами. Все центральные коммуникации по границе участка (газ, вода, электричество). Участок 7 соток с удобным подъездом. Дом полностью готов к проживанию.О доме и участке: Год постройки: 2024 год, Новый, готовый дом. Площадь дома: 103,9 кв. м. Площадь участка: 7 соток. Стиль: Современная архитектура. Материалы: Качественные, дорогие материалы. Дорога: К участку ведет асфальтированная дорога.Коммуникации: Электричество: Подключено к дому. Газ: Центральный по границе участка. Водоснабжение: Центральное по границе участка.Планировка (3 спальни, 2 санузла): Просторная кухня-гостиная: 35 кв. м с панорамными окнами, высокими потолками (4.5 м) и выходом на террасу. Сердце дома для семейного отдыха. 3 изолированные спальни: 16, 12 и 11 кв. м уединение для каждого. Котельная: 5 кв. м. 2 санузла. Терраса: 11 кв. м идеальное место для завтраков и встреч с друзьями на свежем воздухе. Функциональные подсобные помещения.О поселке:Развитая инфраструктура первой очереди, тишина, безопасность и комфортная среда для жизни.Финансы и просмотр: Цена: Возможна корректировка в зависимости от формы оплаты (обсудим). Показ: В любое удобное время по предварительной договоренности.Звоните, чтобы назначить просмотр и задать все вопросы Этот дом создан для комфортной жизни вашей семьи Почему нужно работать с Федеральной компанией Этажи ?- Юридическое сопровождение сделки и гарантия финансовой защиты- Уникальные условия на услуги страхования объекта- Самые низкие ипотечные ставки- Новостройка без комиссии- Программа лояльности Этажи Бонус для клиентов компании Этажи от партнеров .Код пользователя: 89691Номер в базе:

Подробнее в telegram

    Для того, чтобы купить 1-этажный коттедж по адресу: Калуга, Московский кп, позвоните по телефону +7 (910) 541-39-31. Торопитесь! Объявление №50016648032 о продаже одноэтажного коттеджа опубликовано 18 декабря 2025.

    Похожие предложения в Калуге
    Дом в Калужская область, Калуга ул. Хуторская, 8 (196 м) - Фото 1
    Дом в Калужская область, Калуга ул. Хуторская, 8 (196 м) - Фото 2
    2 этажа, общая площадь 195м², участок 10 соток

    Код объекта: 1794000.Уникальное предложение для тех, кто ищет просторное жильё в Калуге Продаётся двухэтажный блочный дом общей площадью 195,5 кв. м на участке в 10 соток по адресу: Хуторская улица, 8. (р-н ул. Зерновой)Дом построен в 2019 году, имеет...
    • 2 эт.
    • 195 м²
    • 10 сот.
    8 250 000 Р
    Агент
    +7 (910) Показать номер
    Дом в Калужская область, Калуга ул. Кемеровская (103 м) - Фото 1
    Дом в Калужская область, Калуга ул. Кемеровская (103 м) - Фото 2
    1 этаж, общая площадь 103м², участок 5 соток

    Номер в базе Агентства 23527 Новый дом 103 кв.м. с отделкой и всеми коммуникациями в коттеджном посёлке Городенская Долина.Город Калуга, район Турынино-3, новый коттеджный посёлок Городенская Долина.Продаётся новый 1-этажный дом 103 кв.м. с террасой,...
    • 1 эт.
    • 103 м²
    • 5 сот.
    8 250 000 Р
    Агент
    +7 (910) Показать номер
    Дом в Калужская область, Калуга Болотная ул., 59Б (112 м) - Фото 1
    Дом в Калужская область, Калуга Болотная ул., 59Б (112 м) - Фото 2
    1 этаж, общая площадь 112м², участок 6 соток

    Арт.В продаже качественный, просторный жилой дом с центральными коммуникациями Дом расположен в строящемся коттеджном поселке VESNA LAND. Подходит под все льготные ипотеки: Семейная под 6 , Господдержка под 8 и IT-ипотека.О доме:*фундамент свайно-ростверковый...
    • 1 эт.
    • 112 м²
    • 6 сот.
    8 200 000 Р
    Агент
    +7 (980) Показать номер
    Дом в Калужская область, Калуга ул. Красная Гора (94 м) - Фото 1
    Дом в Калужская область, Калуга ул. Красная Гора (94 м) - Фото 2
    1 этаж, общая площадь 94м², участок 3 сотки

    Продается деревянный дом площадью 94 м2 на участке 3 сот. в историческом центре города Калуги в районе площади Ленина. Дом находится рядом с рекой Окой, красивый и живописный вид вокруг, тихое спокойное место. В пешей доступности рядом находится пл. Старый...
    • 1 эт.
    • 94 м²
    • 3 сот.
    8 200 000 Р
    Агент
    +7 (910) Показать номер
    Дом в Калужская область, Калуга ул. Панорамная, 9 (150 м) - Фото 1
    Дом в Калужская область, Калуга ул. Панорамная, 9 (150 м) - Фото 2
    2 этажа, общая площадь 150м², участок 5 соток

    Артикул: 539592 Продается индивидуальный жилой дом по адресу: Панорамная улица, 9, Калуга Подходит под семейную ипотеку 6 годовых. Можно использовать материнский капитал. Поможем с оформлением Вы можете погулять по объекту через виртуальный тур. Подробности...
    • 2 эт.
    • 150 м²
    • 5 сот.
    8 250 000 Р
    Агент
    +7 (910) Показать номер

    Не нашли подходящего объявления?

    Оставьте заявку, и наши риэлторы подберут купить дом в районе Калуги

    (0)