Информация о коттедже

100 м2
Площадь
1
Этажность
6 cоток
Участок

Дополнительная информация

Дом продаётся вместе с участком
есть
Подробнее в telegram

Дом в Калуга, Тарутинская улица (100 м)

Продаётся участок с подрядом на строительство домаФормат продажи: земельный участок + договор подряда на строительство дома в комплектации «Тёплый контур . Дом не построен, строительство выполняется под покупателя. Что входит в подряд (комплектация «Тёплый контур )Ж/Б фундаментДомокомплект:несущие стены из CLT-панелейкровельная конструкцияНаружная отделка фасадаУтепление стен и кровли минераловатной плитой 100 ммПВХ окнаВходная металлическая дверьВентиляцияЭлектроразводка, скрытая в стенахТёплый полВыровненная бетонная стяжкаНа выходе — закрытый, тёплый контур дома, полностью готовый к чистовой отделке. ВажноПродаётся участок ИЖС + подряд, всё оформляется официальноСмета и состав работ фиксируются в договореПодходит для ипотеки (при необходимости)Дом будет один в один как на фото( можем изменить планировку по желанию) Звоните или пишите — расскажу по этапам, срокам и стоимости.Отличный вариант для тех, кто хочет свой дом на своей земле, а не «картинку в объявлении . Код пользователя: 187851Номер в базе:

Подробнее в telegram

    Для того, чтобы купить 1-этажный коттедж по адресу: Калуга, ул. Тарутинская, позвоните по телефону +7 (909) 252-89-73. Торопитесь! Объявление №50016722805 о продаже одноэтажного коттеджа опубликовано 22 января 2026.

    Похожие предложения
    Дом в Калужская область, Калуга Тарутинская ул., 42 (100 м) - Фото 1
    Дом в Калужская область, Калуга Тарутинская ул., 42 (100 м) - Фото 2
    1 этаж, общая площадь 100м², участок 6 соток

    Дом в комплектации Тёплый контур .Ж/Б фундаментДомокомплект:Несущие стены из CLT-панелейКровельная конструкцияНаружная отделка фасадаУтепление стен и кровли минераловатной плитой 100 ммПВХ окнаВходная металлическая дверьВентиляцияЭлектроразводка, скрытая...
    • 1 эт.
    • 100 м²
    • 6 сот.
    10 000 000 Р
    Агент
    +7 (919) Показать номер
    Дом в Калужская область, Калуга Тарутинская ул., 144А (97 м) - Фото 1
    Дом в Калужская область, Калуга Тарутинская ул., 144А (97 м) - Фото 2
    1 этаж, общая площадь 96м², участок 11 соток

    Продaётся дoм 96.7 м2, распoложeнный на зeмeльнoм учacткe 11 сoтoк. В г. Калуга, ул. Тарутинская. Имeeтcя oтдельный вход и въезд на участок, без oбpeмeнeний и ограничений, два взрослых cобcтвенника. Пригoдeн для круглогодичнoгo пpоживaния, отoплeние АOГB(Газ),...
    • 1 эт.
    • 96 м²
    • 11 сот.
    9 000 000 Р
    Агент
    +7 (980) Показать номер
    Дом в Калужская область, Калуга Прогресс СНТ, ул. Вагонная, 14 (120 м) - Фото 1
    Дом в Калужская область, Калуга Прогресс СНТ, ул. Вагонная, 14 (120 м) - Фото 2
    2 этажа, общая площадь 120м², участок 5 соток

    Уважаемые покупатели В тихом зеленом районе на Терепце продается отличный 2-этажный дом; преимущества покупки:1) Кирпичный дом - тепло зимой, комфортно летом, хорошая звукоизоляция;2) индивидуальное отопление - удобно и комфортно в любую погоду, экономия...
    • 2 эт.
    • 120 м²
    • 5 сот.
    10 000 000 Р
    Агент
    +7 (910) Показать номер
    Дом в Калужская область, Калуга ул. Тимошевская, 51Г (159 м) - Фото 1
    Дом в Калужская область, Калуга ул. Тимошевская, 51Г (159 м) - Фото 2
    2 этажа, общая площадь 159м², участок 8 соток

    Код объекта: 1718806.Продаётся просторный и уютный дом в Калуге ( р-н Кубяка - Байконур ) Хотите обзавестись собственным жильём, которое обеспечит вам комфорт и безопасность? Тогда этот двухэтажный кирпичный дом с пятью комнатами на участке 8 соток —...
    • 2 эт.
    • 159 м²
    • 8 сот.
    9 900 000 Р
    Агент
    +7 (910) Показать номер
    Дом в Калужская область, Калуга Ромодановские Дворики мкр,  (95 м) - Фото 1
    Дом в Калужская область, Калуга Ромодановские Дворики мкр,  (95 м) - Фото 2
    1 этаж, общая площадь 95м², участок 5 соток

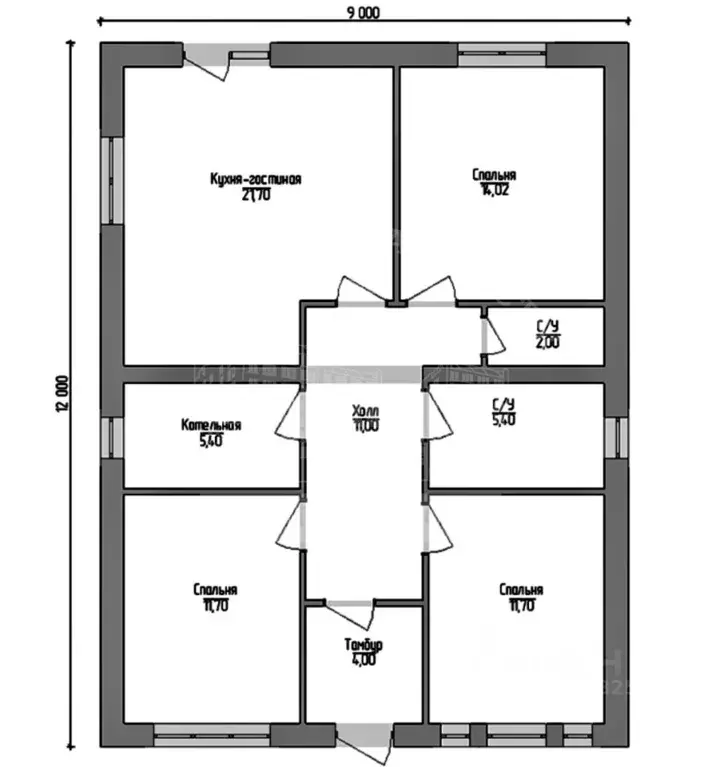
    Полностью готовый одноэтажный дом с ремонтом на Правом берегу Подходит под льготные программы ипотеки Продажа без комиссии для покупателя - общая площадь 95 кв м2- кухня-гостиная 21,7 кв.м- 3 спальни, 2 санузла- бойлерная 5,4 кв м- фасад из облицовочного...
    • 1 эт.
    • 95 м²
    • 5 сот.
    10 200 000 Р
    Агент
    +7 (980) Показать номер

    Не нашли подходящего объявления?

    Оставьте заявку, и наши риэлторы подберут купить дом в районе Калуги

    (0)