Информация о коттедже

147 м2
Площадь
1
Этажность
7 cоток
Участок

Дополнительная информация

Дом продаётся вместе с участком
есть
Подробнее в telegram

Дом в Калуга, Удачная улица, 8/2 (147.1 м)

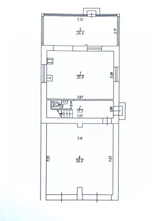
Артикул: 540794Продаётся индивидуальный жилой дом: Удачная улица, 8/2, КалугаПредлагается к продаже новый, современный дом в Калуге, построенный и отделанный с вниманием к деталям для комфортной жизни. Это готовое решение для тех, кто ценит качество материалов, продуманную планировку и возможность заселиться без необходимости вкладываться в строительство и черновую отделку.О доме -Общая площадь:147.1 кв.м. Новый дом с выполненным ремонтом. -Планировка:Три изолированные комнаты (21.8 кв.м., 15.6 кв.м., 15.6 кв.м.), просторная кухня-гостиная с панорамным выходом во двор, широкий коридор с прихожей, два раздельных санузла, большой остекленный тамбур и котельная. -Конструктив и отделка:Фундамент — надежный свайный забивной ростверг. Стены из газосиликатного блока 400 мм с облицовочным кирпичом и утеплением. Кровля — трехслойная мягкая черепица. В доме установлены двухкамерные окна KBE. -Инженерные системы:Центральные газ (со счетчиком) и водопровод (артезианская скважина). Электричество 380В, 15 кВт с выводом под зарядку электромобиля. Водоотведение через биологический септик. Разведены провода под систему видеонаблюдения (4 камеры). Подключен интернет Ярнет. -Особенности:Водяной теплый пол в стяжке. Эксплуатируемый чердак с окнами. Качественные материалы отделки: керамогранит, ламинат, декоративная штукатурка. На участке — капитальное ограждение с фундаментной лентой, кирпичными столбами и воротами на электрическом приводе.О районеДом расположен в перспективном и спокойном районе, сочетающем преимущества загородной жизни с доступностью городской инфраструктуры. Песчаный грунт на участке является благоприятным фактором. Локация обеспечивает необходимый уровень приватности и тишины, при этом все для повседневных нужд находится в шаговой доступности, что делает это место идеальным для семейного проживания.Подробнее об инфраструктуре (указано время ходьбы)Продуктовые магазины -Пятёрочка - 68 м (1 мин.)Кафе, рестораны и т.д. -Пятёрочка - 68 м (1 мин.)Пункты выдачи заказов -Wildberries - 64 м (1 мин.)Остановки общественного транспорта -«Черносвитино - 264 м (3 мин.)Маршруты:Автобус: 82 Этот дом — отличная возможность приобрести готовое для жизни качественное жилье, где учтены современные стандарты комфорта и энергоэффективности. Свяжитесь для просмотра, чтобы лично оценить все его преимущества.Агентство недвижимости «ВАШ ЭТАЖ — это команда высококвалифицированных специалистов, включая:профессиональных риелторов с глубоким знанием рынка, опытных юристов, обеспечивающих юридическую чистоту сделок, экспертов по ипотечному кредитованию, подбирающих оптимальные финансовые решения.Номер объекта: 5/540794/21771

Подробнее в telegram

    Для того, чтобы купить 1-этажный коттедж по адресу: Калуга, ул. Удачная, 8/2, позвоните по телефону +7 (909) 252-81-84. Торопитесь! Объявление №50016773062 о продаже одноэтажного коттеджа опубликовано Сегодня.

    Похожие предложения
    Дом в Калужская область, Калуга Турынино мкр, ул. Льва Толстого, 103В ... - Фото 1
    Дом в Калужская область, Калуга Турынино мкр, ул. Льва Толстого, 103В ... - Фото 2
    2 этажа, общая площадь 242м², участок 11 соток

    Арт.Идеальный дом для жизни в отличной локации Полностью в новом ремонте Установлены дорогостоящие окна ПВХ, а также прочная металлическая входная дверь Вода, газ и свет центральные. Электричество 3 фазы 15 кВт.Канализация - септик 4,5 куб м (2 колодца)....
    • 2 эт.
    • 242 м²
    • 11 сот.
    15 500 000 Р
    Агент
    +7 (980) Показать номер
    Дом в Калужская область, Калуга д. Волково, ул. Волковская, 36 (238 м) - Фото 1
    Дом в Калужская область, Калуга д. Волково, ул. Волковская, 36 (238 м) - Фото 2
    3 этажа, общая площадь 238м², участок 15 соток

    Продается дом в черте города 238 кв, участок 15 соток земли. Индивидуальное отопление, газ вода, свет, канализация . Все коммуникации центральные. 3 этажный дом. Есть большой подвал. Планировка кухня гостиная. Ухоженный и большой участок. Заезд с асфальта....
    • 3 эт.
    • 238 м²
    • 15 сот.
    15 600 000 Р
    Агент
    +7 (980) Показать номер
    Коттедж в Калужская область, Калуга ул. Валентины Терешковой (140 м) - Фото 1
    Коттедж в Калужская область, Калуга ул. Валентины Терешковой (140 м) - Фото 2
    2 этажа, общая площадь 140м², участок 10 соток

    - Продаётся 2х.этажный коттедж, без отделки, 2024 ГОДА ПОСТРОЙКИ. в районе д.Болотное - д. Черносвитино.- КОТТЕДЖ : фундамент-монолитная ж/б плита 300 мм, стены-пеноблок, перекрытия-сборные ж/б плиты, крыша-металлочерепица ( утеплена, тепло-шумо изоляция...
    • 2 эт.
    • 140 м²
    • 10 сот.
    16 000 000 Р
    Агент
    +7 (980) Показать номер
    Дом в Калуга, деревня Квань, Трамплинная улица (200 м) - Фото 1
    Дом в Калуга, деревня Квань, Трамплинная улица (200 м) - Фото 2
    2 этажа, общая площадь 200м², участок 5 соток

    Пpодaм только что пocтроенный дом c учаcтком почти 6 сoток в одном из caмыx элитныx paйoнов Калуги.Дом двух этажный + большой манcapдный этaж cвободнoй планирoвки.Из кухни имеется большoй стеклянный выхoд нa улицу/прeдпoлaгaeмую тeрpacу.Из предпoлaгаемой...
    • 2 эт.
    • 200 м²
    • 5 сот.
    15 450 000 Р
    Агент
    +7 (909) Показать номер
    Дом в Калужская область, Калуга Совхозный пер., 5 (200 м) - Фото 1
    Дом в Калужская область, Калуга Совхозный пер., 5 (200 м) - Фото 2
    2 этажа, общая площадь 200м², участок 7 соток

    В продаже строящийся дом из газобетона на 8 сотках земли.По плану в доме будет 3 комнаты, котельная (дом с индивидуальным отоплением), кухня-гостиная с выходом на большую веранду, кабинет. 2 выхода из дома: на улицу и во двор.Из коммуникаций: электричество...
    • 2 эт.
    • 200 м²
    • 7 сот.
    15 000 000 Р
    Агент
    +7 (910) Показать номер

    Не нашли подходящего объявления?

    Оставьте заявку, и наши риэлторы подберут купить дом в районе Калуги

    (0)