Информация о квартире

54 м2
Площадь
2
Комнаты
1
Этаж
10
Этажность

Дополнительная информация

Тип дома
панельный
Подробнее в telegram

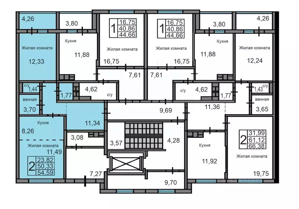
2-к кв. Калужская область, Калуга ул. Минская, 2 (54.59 м)

Продаётся 2-комнатная квартира в строящемся доме (Дом 1а), срок сдачи: IV-кв. 2025, общей площадью 54.59 кв.м., на 1 этаже. Миниполис ЖК Веснушки - город в городе, который располагается на правом берегу в 10 минутах от центра. Жилой комплекс планирует стать крупнейшим микрорайоном в городе Калуга. Здесь будет построено 36 многоэтажных домов, на 10- жителей. Главными подрядчиками выступают крупнейшие Белорусские домостроительные комбинаты.На данный момент сдано 19 жилых домов. В микрорайоне работает школа с уклоном в информационные технологии на 1000 мест и детский сад на 280 мест. Началось строительство торгового центра и скейт - парка.Одним из преимуществ жилого комплекса является своя собственная котельная.Жилой комплекс Веснушки строится в развивающейся части города, где уже сейчас есть налаженное транспортное сообщение, дороги и другая развитая инфраструктура. Это тихий и экологически благополучный район, который подходит всем, кто заботится о здоровье и хочет каждый день дышать чистым свежим воздухом и при этом жить в условиях городского комфорта. Для этого застройщик Веснушек строит красивые дома и удобные квартиры с разными планировками, а в ближайшее время построят всю необходимую жителям инфраструктуру. В миниполисе также появятся супермаркеты, большой торговый центр, физкультурно-оздоровительный комплекс, еще больше детских площадок и, конечно, стоянки для автомобилей и вело парковки.

Подробнее в telegram
    Похожие предложения
    2-к кв. Калужская область, Калуга ул. Минская, 2 (54.59 м) - Фото 1
    2-комнатная квартира, общая площадь 54м²

    Продаётся 2-комнатная квартира в строящемся доме (Дом 1а), срок сдачи: IV-кв. 2025, общей площадью 54.59 кв.м., на 1 этаже. Миниполис ЖК Веснушки - город в городе, который располагается на правом берегу в 10 минутах от центра. Жилой комплекс планирует...
    • 54 м²
    • 2-ком
    • 1/10 эт.
    • панельный
    4 258 020 Р
    Агент
    +7 (800) Показать номер
    2-к кв. Калужская область, Калуга ул. Минская, 2 (54.32 м) - Фото 1
    2-комнатная квартира, общая площадь 54м²

    Продаётся 2-комнатная квартира в строящемся доме (Дом 1а), срок сдачи: IV-кв. 2025, общей площадью 54.32 кв.м., на 1 этаже. Миниполис ЖК Веснушки - город в городе, который располагается на правом берегу в 10 минутах от центра. Жилой комплекс планирует...
    • 54 м²
    • 2-ком
    • 1/10 эт.
    • панельный
    4 236 960 Р
    Агент
    +7 (800) Показать номер
    1-к кв. Калужская область, Калуга проезд 3-й Академический, 10 (44.61 ... - Фото 1
    1-к кв. Калужская область, Калуга проезд 3-й Академический, 10 (44.61 ... - Фото 2
    1-комнатная квартира, общая площадь 44м², жилая 15м², кухня 10м²

    В продаже 1 комнатная квартира на правом берегу в новостройке,кирпичный дом. Кухня просторная,большая прихожая.Квартира имеет улучшенную черновую отделку на полу идеальная стяжка, на стенах штукатурка,имеется лоджия с видом во двор, где имеется детская...
    • 44 м²
    • 1-ком
    • 8/9 эт.
    • кирпичный
    4 371 000 Р
    Агент
    +7 (980) Показать номер
    Квартира-студия: Калуга, улица Болдина, 22/1 (26.99 м) - Фото 1
    Квартира-студия: Калуга, улица Болдина, 22/1 (26.99 м) - Фото 2
    студия, общая площадь 26м², жилая 19м²

    Продается студия № 681 по адресу Калужская область, Калуга, . Общая площадь квартиры – 26.99 кв. м., этаж 10 из 25, секция 4. Тип проекта, по которому построен дом – монолит, компания-застройщик – DOGMA, ООО СЗ Д-Финанс. Стоимость квартиры –Р. Срок сдачи...
    • 26 м²
    • студия-ком
    • 10/25 эт.
    4 331 895 Р
    Агент
    +7 (910) Показать номер
    1-к кв. Калужская область, Калуга Московский Квартал жилой комплекс ... - Фото 1
    1-к кв. Калужская область, Калуга Московский Квартал жилой комплекс ... - Фото 2
    1-комнатная квартира, общая площадь 35м², кухня 14м²

    НОВОСТРОЙКА В ЦЕНТРЕ ГОРОДА БЕЗ КОМИССИИ АГЕНТСТВУ Однокомнатная квартира в шикарном ЖК Московский, продуманная планировка, большие окна на 2-3 стороны света, удобная кухня-гостиная 14,5 кв.м, комната 11 кв.м. В шаговой доступности все ключевые...
    • 35 м²
    • 1-ком
    • 3/14 эт.
    • монолит
    4 200 000 Р
    Агент
    +7 (910) Показать номер

    Не нашли подходящего объявления?

    Оставьте заявку, и наши риэлторы подберут квартиру в новостройке в районе Калуги

    (0)