Россия, Калужская область, Калуга, проезд 3-й Академический, 6

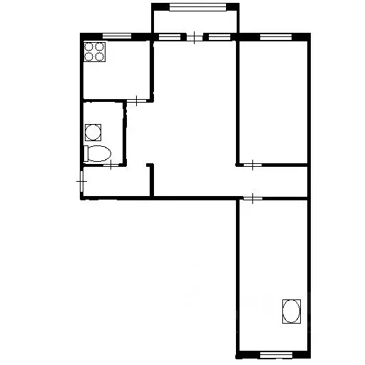
Информация о квартире

57 м2
Площадь
32 м2
Жилая
11 м2
Кухня
2
Комнаты
2
Этаж
9
Этажность

Дополнительная информация

Тип дома
кирпичный
Подробнее в telegram

2-к кв. Калужская область, Калуга проезд 3-й Академический, 6 (57.0 м)

Продаю двухкомнатную квартиру на Правобережье в ЖК Академический . Новый кирпичный дом, сдан в декабре 2023 года, ключи на руках. Удобный 2 этаж, индивидуальное отопление, небольшие коммунальные платежи. Квартира очень теплая и светлая. Хорошая планировка, комнаты изолированные,окна выходят на разные стороны дома. Комнаты - 16 и 13 м2 , коридор - 9.2 м2 , кухня - 11 м2. Есть лоджия с выходом из кухни.Хороший экологически чистый район с развитой инфраструктурой. Документы к продаже готовы, без обременений. Любая форма оплаты. Возможен торг.

Подробнее в telegram

    Для того, чтобы купить двухкомнатную квартиру по адресу: Калуга, проезд 3-й Академический, 6, позвоните по телефону +7 (910) 541-42-46. Торопитесь! Объявление №30073415566 о продаже двухкомнатной квартиры опубликовано 2 дня назад.

    Похожие предложения
    2-к кв. Калужская область, Калуга проезд 3-й Академический, 6 (56.6 м) - Фото 1
    2-к кв. Калужская область, Калуга проезд 3-й Академический, 6 (56.6 м) - Фото 2
    2-комнатная квартира, общая площадь 56м², жилая 30м², кухня 10м²

    Номер в базе Агентства 23871 В продаже 2-комнатная квартира в кирпичном доме Двухкомнатная квартира площадью 56,6 кв. м. в микрорайоне Правобережье с кухней 10,5 кв.м. и лоджией 4,1 кв.м. и две раздельные комнаты по 12,5 и 15,5 кв.м. - динамично развивающийся...
    • 56 м²
    • 2-ком
    • 3/9 эт.
    • кирпичный
    6 226 000 Р
    Агент
    +7 (910) Показать номер
    2-к кв. Калужская область, Калуга проезд 3-й Академический, 6 (56.6 м) - Фото 1
    2-к кв. Калужская область, Калуга проезд 3-й Академический, 6 (56.6 м) - Фото 2
    2-комнатная квартира, общая площадь 56м², кухня 10м²

    9-этажный кирпичный дом с индивидуальным отоплением в динамично развивающемся районе Правого берега. Качественное строительство и расположение дома привлекает наличием в ближайшей доступности как мест для прогулок, таких как Губернский парк и сквер Матери,...
    • 56 м²
    • 2-ком
    • 3/9 эт.
    • кирпичный
    6 350 000 Р
    Агент
    +7 (910) Показать номер
    2-к кв. Калужская область, Калуга ул. Белые Росы, 5 (57.4 м) - Фото 1
    2-к кв. Калужская область, Калуга ул. Белые Росы, 5 (57.4 м) - Фото 2
    2-комнатная квартира, общая площадь 57м², жилая 30м², кухня 11м²

    Арт.Внимание покупателей Вы мечтаете о квартире бех призраков прежних жильцов?Вы хотите новостройку, но не хотите ждать? Забудьте о хрущевках и старом фонде с нежелательными постояльцами Квартира в предчистовой отделке в СДАННОМ доме в одном из самых...
    • 57 м²
    • 2-ком
    • 3/4 эт.
    • кирпичный
    6 300 000 Р
    Агент
    +7 (980) Показать номер
    1-к кв. Калужская область, Калуга ул. Фомушина, 5 (43.3 м) - Фото 1
    1-к кв. Калужская область, Калуга ул. Фомушина, 5 (43.3 м) - Фото 2
    1-комнатная квартира, общая площадь 43м², жилая 16м², кухня 12м²

    Большая 1-к квартира в одном из лучших домов Правобережьятеплый кирпичный дом 2015 годаиндивидуальное отоплениехороший ремонтотличная планировкаКвартира - НЕ угловая, расположена на комфортном 6 этаже. Общая площадь - 43,3 кв.м + большая лоджия. Здесь...
    • 43 м²
    • 1-ком
    • 6/9 эт.
    6 400 000 Р
    Агент
    +7 (910) Показать номер
    3-к кв. Калужская область, Калуга ул. Степана Разина, 85 (62.0 м) - Фото 1
    3-к кв. Калужская область, Калуга ул. Степана Разина, 85 (62.0 м) - Фото 2
    3-комнатная квартира, общая площадь 62м², кухня 7м²

    Продаётся отличная трехкомнатная квартира на комфортном 3-м этаже 5 этажного панельного дома по ул.Степана Разина д.85. Квартира общей площадью 61 кв.м., жилая 46 кв.м.,кухня 7 кв.м. Все комнаты изолированные, балкон застеклён, с/у совмещенный в современной...
    • 62 м²
    • 3-ком
    • 3/5 эт.
    • панельный
    6 300 000 Р
    Агент
    +7 (980) Показать номер

    Не нашли подходящего объявления?

    Оставьте заявку, и наши риэлторы подберут квартиру в районе Калуги

    (0)