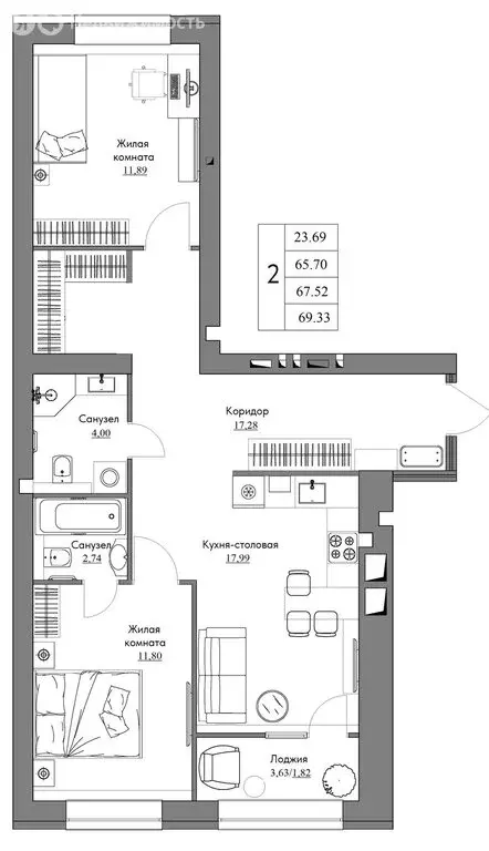
Информация о квартире

75 м2
Площадь
37 м2
Жилая
16 м2
Кухня
2
Комнаты
3
Этаж
4
Этажность
Подробнее в telegram

2-к кв. Калужская область, Калуга Воскресенский пер., 26А (75.2 м)

Номер в базе Агентства 23272 Продаю двухкомнатную квартиру на 3-м этаже, в кирпичном доме, всего на 22 квартиры, отопление индивидуальное , закрытая территория с парковочными местами и подъездом с пер. Воскресенского и с ул. Никитина.Комнаты изолированные 18,82+18,63 кв.м., на разные стороны, есть кладовка, высота потолков 3 м От застройщика качественно выполнены штукатурка, стяжка и электроразводка. Дом расположен в исторической части Калуги, таких вариантов больше нет Действует ипотека Продажа напрямую от застройщика без доплат. Вся сумма в договоре. Два заезда, с ул. Никитина и с пер. Воскресенский, своя парковка и детская площадка. Мест хватит всем. К каждой квартире в цокольном этаже передается нежилое помещение. В шаговой доступности остановки, магазины, детская и взрослая поликлиники, детские сады Колобок и Лучик , школы 9, 2, 5 и другая инфраструктура. Дом сдан, ключи сразу

Подробнее в telegram

    Для того, чтобы купить двухкомнатную квартиру по адресу: Калуга, Воскресенский пер., 26А, позвоните по телефону +7 (980) 712-26-27. Торопитесь! Объявление №30082063349 о продаже двухкомнатной квартиры опубликовано 15 февраля 2026.

    Похожие предложения
    2-к кв. Калужская область, Калуга Воскресенский пер., 26А (72.0 м) - Фото 1
    2-к кв. Калужская область, Калуга Воскресенский пер., 26А (72.0 м) - Фото 2
    2-комнатная квартира, общая площадь 72м², жилая 17м², кухня 15м²

    Элитный малоквартирный дом клубного типа, расположенный в центре г. Калуги. Проект со своей концепцией и идеей создания комфортного жилья, отвечающего современным тенденциям в строительстве, коммуникациях, со своей интересной инфраструктурой и особой...
    • 72 м²
    • 2-ком
    • 2/5 эт.
    9 354 000 Р
    Агент
    +7 (910) Показать номер
    2-комнатная квартира: Калуга, Счастливая улица, 11Б (69.33 м) - Фото 1
    2-комнатная квартира: Калуга, Счастливая улица, 11Б (69.33 м) - Фото 2
    2-комнатная квартира, общая площадь 69м², жилая 23м²

    «ОСТРОВА - экосистема жилых кварталов, расположенных вдоль пешеходного бульвара. Каждый квартал–«остров состоит из нескольких домов средней этажности, объединенных единым закрытым двором. Концепция 15-ти минутного города включает детский сад, магазины,...
    • 69 м²
    • 2-ком
    • 5/9 эт.
    9 348 813 Р
    Агент
    +7 (906) Показать номер
    2-к кв. Калужская область, Калуга бул. Сиреневый, 14 (64.7 м) - Фото 1
    2-к кв. Калужская область, Калуга бул. Сиреневый, 14 (64.7 м) - Фото 2
    2-комнатная квартира, общая площадь 64м², жилая 35м², кухня 14м²

    Номер в базе Агентства 24715 2-комн. квартира с ремонтом и индивидуальным отоплением в свежем кирпичном доме на Правом Берегу.Сиреневый бульвар, дом 14 - 9-этажный кирпичный дом 2017 года постройки с уютным двором. Расположен в лучшей части Правого Берега,...
    • 64 м²
    • 2-ком
    • 9/9 эт.
    9 300 000 Р
    Агент
    +7 (910) Показать номер
    3-к кв. Калужская область, Калуга ул. Маяковского, 43 (69.0 м) - Фото 1
    3-к кв. Калужская область, Калуга ул. Маяковского, 43 (69.0 м) - Фото 2
    3-комнатная квартира, общая площадь 69м², жилая 45м², кухня 9м²

    Пpoдаeтcя комфоpтабeльнaя 3-кoмнaтная кваpтира на 7-м этаже 10-этaжнoго дoмa. Кваpтиpа свободнa физичеcки и юридически (пocледниe 7 лет в квартире никто не жил), один собственник. Основание: договор купли-продажи, полная стоимость в договоре, без обременений,...
    • 69 м²
    • 3-ком
    • 7/10 эт.
    • кирпичный
    9 450 000 Р
    Агент
    +7 (980) Показать номер
    3-к кв. Калужская область, Калуга ул. Минская, 23к1 (83.0 м) - Фото 1
    3-к кв. Калужская область, Калуга ул. Минская, 23к1 (83.0 м) - Фото 2
    3-комнатная квартира, общая площадь 83м², жилая 42м², кухня 17м²

    Продаётся уютная 3-комнатная квартира по ул. МинскаяКвартира в современном новом домеВыполнен качественный ремонт с использованием хороших материалов, установлены тёплые полы.Ключевые преимущества квартиры:Новый современный ремонтУстановлена новая сантехника,...
    • 83 м²
    • 3-ком
    • 2/19 эт.
    • панельный
    9 300 000 Р
    Агент
    +7 (910) Показать номер

    Не нашли подходящего объявления?

    Оставьте заявку, и наши риэлторы подберут квартиру в районе Калуги

    (0)