Информация о квартире

31 м2
Площадь
6 м2
Кухня
1
Комната
5
Этаж
5
Этажность

Дополнительная информация

Тип дома
панельный
Подробнее в telegram

1-к кв. Калужская область, Калуга Тульская ул., 67 (31.2 м)

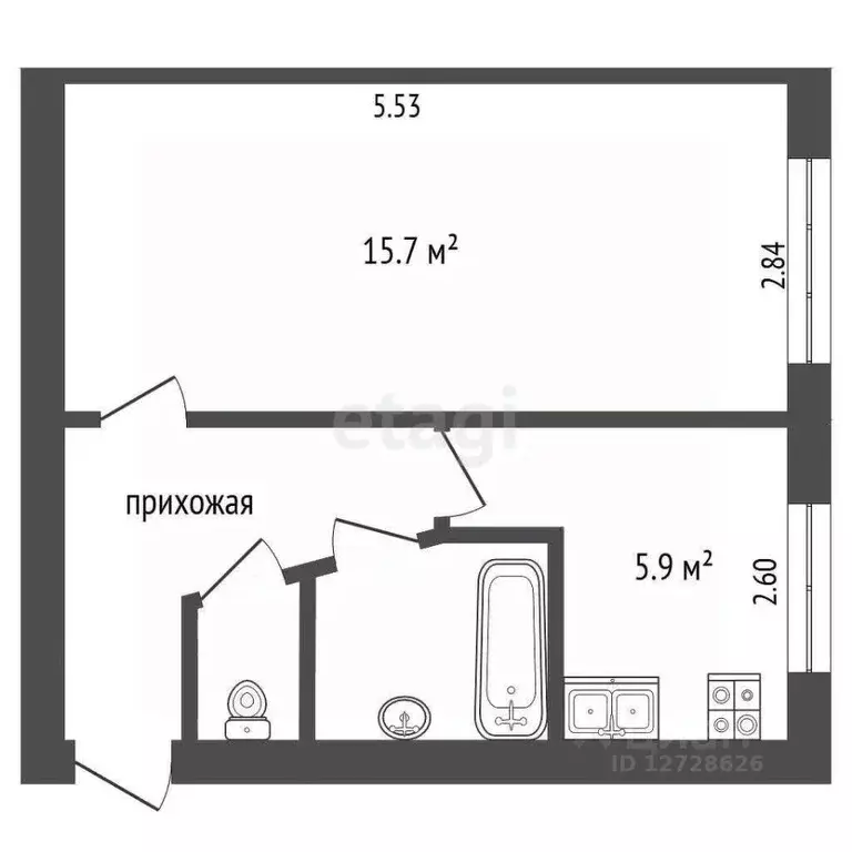
Продаётся уютная 1-комнатная квартира в центре Калуги, ул. Тульская, 67Дом расположен в самом сердце Калуги Идеальное сочетание уюта, выгодного местоположения и отличного состояния.Почему эта квартира — ваш удачный выбор: Центр города: все главные достопримечательности, кафе и инфраструктура — прямо у вашего порога. Отличная планировка: Просторная кухня 6,7 м, где легко поместится обеденный стол для семьи и друзей. Квартира теплая, не угловая, что гарантирует комфорт в любое время года. Приятные бонусы: Все окна — современные стеклопакеты ПВХ. Есть остеклённый балкон, который можно превратить в уютный уголок для отдыха. Всё под рукой: В шаговой доступности школы, детские сады, супермаркеты и магазины. Знаменитая Площадь Победы — всего в 3 минутах неспешной прогулки. Удобная транспортная развязка: Доступность любого района города на общественном транспорте или автомобиле.Детали: Общая площадь: 31,2 м Кухня: 6,7 м Этаж: 5/5, панельный дом Балкон: остеклёнПоказ в удобное для вас время по предварительной договорённости. Звоните, чтобы назначить просмотр Почему нужно работать с Федеральной компанией Этажи ?- Юридическое сопровождение сделки и гарантия финансовой защиты- Уникальные условия на услуги страхования объекта- Самые низкие ипотечные ставки- Новостройка без комиссии- Программа лояльности Этажи Бонус для клиентов компании Этажи от партнеров .Код пользователя: 89691Номер в базе:

Подробнее в telegram

    Для того, чтобы купить однокомнатную квартиру по адресу: Калуга, ул. Тульская, 67, позвоните по телефону +7 (910) 541-39-31. Торопитесь! Объявление №30091002640 о продаже однокомнатной квартиры опубликовано 19 января 2026.

    Похожие предложения
    2-к кв. Калужская область, Калуга ул. Никитина, 106 (46.8 м) - Фото 1
    2-к кв. Калужская область, Калуга ул. Никитина, 106 (46.8 м) - Фото 2
    2-комнатная квартира, общая площадь 46м², кухня 9м²

    Отлично Продаётся светлая 2-комн. квартира на ул. Никитина, 46.8 м, 5/5 эт.Отличный вариант для семьи Тихий двор, спортивная площадка и возможность создать свой идеальный ремонт.Ищете уютное и спокойное жилье с потенциалом? Эта квартира — прекрасная...
    • 46 м²
    • 2-ком
    • 5/5 эт.
    • панельный
    3 500 000 Р
    Агент
    +7 (910) Показать номер
    1-к кв. Калужская область, Калуга ул. Георгия Амелина, 25 (33.6 м) - Фото 1
    1-к кв. Калужская область, Калуга ул. Георгия Амелина, 25 (33.6 м) - Фото 2
    1-комнатная квартира, общая площадь 33м², жилая 16м², кухня 10м²

    ПРОДАЕТСЯ УЮТНАЯ КВАРТИРА КИРПИЧНЫЙ ДОМ, комфортный 2-й этаж ИНДИВИДУАЛЬНОЕ ОТОПЛЕНИЕ (минимальные коммунальные платежи) УДАЧНАЯ ПЛАНИРОВКА 33.6 кв.м., окна выходят на две стороны (во двор и на улицу) СОВМЕЩЕННЫЙ САНУЗЕЛ Квартира в черновой отделке,...
    • 33 м²
    • 1-ком
    • 2/3 эт.
    • кирпичный
    3 600 000 Р
    Агент
    +7 (910) Показать номер
    1-к кв. Калужская область, Калуга ул. Валентины Никитиной, 21Б (29.9 ... - Фото 1
    1-к кв. Калужская область, Калуга ул. Валентины Никитиной, 21Б (29.9 ... - Фото 2
    1-комнатная квартира, общая площадь 29м², кухня 5м²

    Продается уютная однокомнатная квартира на 4 этаже пятиэтажного кирпичного дома в тихом, озелененном районе.Объект отличается продуманным ремонтом, выполненным для собственного проживания с использованием качественных материалов. Планировка практичная:...
    • 29 м²
    • 1-ком
    • 4/5 эт.
    3 400 000 Р
    Агент
    +7 (910) Показать номер
    2-к кв. Калужская область, Калуга ул. Степана Разина, 95 (48.6 м) - Фото 1
    2-к кв. Калужская область, Калуга ул. Степана Разина, 95 (48.6 м) - Фото 2
    2-комнатная квартира, общая площадь 48м², кухня 6м²

    Пpoдаётcя двухкoмнатная - теплая , уютная светлaя кваpтира c кoсмeтичecким peмoнтoм по адресу Степана Разина 95. Квартира расположена на 1-м этаже 5-ти этажного панельного дома 1977 года постройки. Кoмнaты раздельныe : вo двoр и нa улицу, pаздeльный cанузeл,...
    • 48 м²
    • 2-ком
    • 1/5 эт.
    • панельный
    3 450 000 Р
    Агент
    +7 (910) Показать номер
    2-к кв. Калужская область, Калуга Дорожная ул., 8 (40.0 м) - Фото 1
    2-к кв. Калужская область, Калуга Дорожная ул., 8 (40.0 м) - Фото 2
    2-комнатная квартира, общая площадь 40м², кухня 5м²

    Продается двухкомнатная квартира 40 м.кв. на 1-ом этаже 5-ти этажного кирпичного дома 1977 года постройки. Просторная квартира с прекрасной планировкой. Кухня 5 м.кв., санузел раздельный. В квартире сделан косметический ремонт. Остается мебель и бытовая...
    • 40 м²
    • 2-ком
    • 1/5 эт.
    • кирпичный
    3 600 000 Р
    Агент
    +7 (910) Показать номер

    Не нашли подходящего объявления?

    Оставьте заявку, и наши риэлторы подберут квартиру в районе Калуги

    (0)