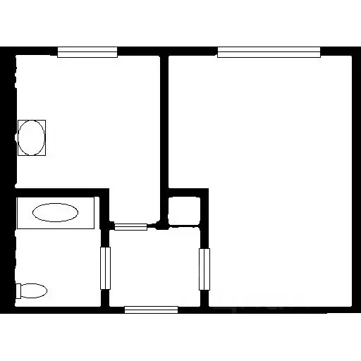
Информация о квартире

33 м2
Площадь
18 м2
Жилая
9 м2
Кухня
1
Комната
7
Этаж
13
Этажность
Подробнее в telegram

1-к кв. Калужская область, Калуга Аллейная ул., 10 (33.6 м)

Продам однокомнатную квартиру на улице Аллейная . УЮТНАЯ СВЕТЛАЯ КВАРТИРА Дом 2015 года постройки Квартира расположена на видовом 7 этажеИдеальная планировка : большая комната 18 кв.м.,просторная кухня 9 кв.м, большой совмещённый санузел , вместительная лоджия .Квартира готова к проживанию , вам остается вся мебель и бытовая техника Соседи идеальные.ИНФРАСТРУКТУРА ДЛЯ ВСЕЙ СЕМЬИ: школа , детский сад, сетевые и различные магазины,остановка общественного транспортаОтличный выезд за городДокументы готовы к продаже Подходит под ипотеку и все виды сертификатов.Приходите -Помогу оформить ипотеку , и вы станете счастливым обладателем данной квартиры

Подробнее в telegram

    Для того, чтобы купить однокомнатную квартиру по адресу: Калуга, ул. Аллейная, 10, позвоните по телефону +7 (910) 592-23-96. Торопитесь! Объявление №30091056912 о продаже однокомнатной квартиры опубликовано Сегодня.

    Похожие предложения
    1-к кв. Калужская область, Калуга Аллейная ул., 6 (33.2 м) - Фото 1
    1-к кв. Калужская область, Калуга Аллейная ул., 6 (33.2 м) - Фото 2
    1-комнатная квартира, общая площадь 33м², жилая 18м², кухня 9м²

    ПРЕКРАСНАЯ КВАРТИРА на ул. Аллейной, центр района Бушмановки НОВЫЙ РЕМОНТ КОМФОРТНЫЙ 3 ЭТАЖ КУХНЯ 9,6 кв.м. ХОЛОДНАЯ/ГОРЯЧАЯ ВОДАОбщая площадь составляет 33,2 кв.м. + лоджия. Установлены счетчики воды.ДОМ:- МОНОЛИТНЫЙ ДОМ, 2012 года постройки- Два лифта...
    • 33 м²
    • 1-ком
    • 3/14 эт.
    • блочный
    3 900 000 Р
    Агент
    +7 (910) Показать номер
    1-к кв. Калужская область, Калуга Аллейная ул., 19 (39.0 м) - Фото 1
    1-к кв. Калужская область, Калуга Аллейная ул., 19 (39.0 м) - Фото 2
    1-комнатная квартира, общая площадь 39м², жилая 19м², кухня 10м²

    Отличная квартира на Аллейной.Эксклюзивное предложение, 1 комнатная квартира, район Бушмановки, Маяковки,ул.Молодёжная.Расположена на 8 этаже, параметры 36/19/10 м2, лоджия с ремонтом 6 м2, санузел совмещённый в ремонте.Комната и кухня в чистовой отделке.Район...
    • 39 м²
    • 1-ком
    • 8/14 эт.
    • блочный
    4 000 000 Р
    Агент
    +7 (910) Показать номер
    1-к кв. Калужская область, Калуга Аллейная ул., 2 (37.2 м) - Фото 1
    1-к кв. Калужская область, Калуга Аллейная ул., 2 (37.2 м) - Фото 2
    1-комнатная квартира, общая площадь 37м², кухня 10м²

    В продаже 1-комнатняа квартира.ХАРАКТЕРИТСИКА:Дом 2011 года постройки.Своя котельная Площадь квартиры 37.2 кв.м+ 2 балкона по 3.3 мПросторная кухня 10.2 кв.мКомната 18,6 кв.мПредусмотрено место под гардеробную.СОСТОЯНИЕ:В квартире сделан хороший косметический...
    • 37 м²
    • 1-ком
    • 9/9 эт.
    • монолит
    4 000 000 Р
    Агент
    +7 (980) Показать номер
    2-к кв. Калужская область, Калуга Тепличная ул., 7 (51.9 м) - Фото 1
    2-к кв. Калужская область, Калуга Тепличная ул., 7 (51.9 м) - Фото 2
    2-комнатная квартира, общая площадь 51м², жилая 24м², кухня 8м²

    Продается 2х комнатная квартира улучшенной плaнирoвки в тихом и экoлoгичном pайонe. Пpocтopные гостиная и спaльня, куxня 9 кв. м., cдeлaн косметический peмoнт, Есть кладoвкa и балкон. Bездe cтeклoпакeты. Центрaльнoe отопление. Инфраструктура в минутной...
    • 51 м²
    • 2-ком
    • 6/9 эт.
    • панельный
    4 100 000 Р
    Агент
    +7 (910) Показать номер
    2-к кв. Калужская область, Калуга ул. Платова, 8 (45.9 м) - Фото 1
    2-к кв. Калужская область, Калуга ул. Платова, 8 (45.9 м) - Фото 2
    2-комнатная квартира, общая площадь 45м², жилая 30м², кухня 6м²

    Продается уютная 2-комнатная квартира на ул. Платова, 8 Предлагается к продаже теплая и уютная двухкомнатная квартира на 4 этаже.Площадь квартиры 45,9 кв.м., жилая 30,9 кв.м., кухня 6,6 кв.м. В квартире выполнен качественный ремонт, заменяна вся электрика,...
    • 45 м²
    • 2-ком
    • 4/5 эт.
    • панельный
    4 000 000 Р
    Агент
    +7 (980) Показать номер

    Не нашли подходящего объявления?

    Оставьте заявку, и наши риэлторы подберут квартиру в районе Калуги

    (0)