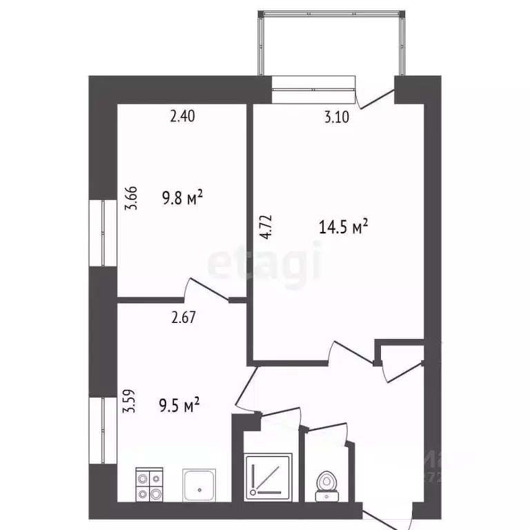
Информация о квартире

40 м2
Площадь
24 м2
Жилая
8 м2
Кухня
2
Комнаты
2
Этаж
5
Этажность

Дополнительная информация

Тип дома
кирпичный
Подробнее в telegram

2-к кв. Калужская область, Калуга пер. Малинники, 9 (40.0 м)

Арт.. Продается 2-х комнатная квартира Квартира 40 кв.м. район Малинники. В квартире сделана перепланировка (узаконена), кухня увеличена до 8,5 кв.м. за счет спальни. Комнаты. Зонированный 9 и 14,5 кв.м., вход в маленькую комнату через кухню, санузел раздельный, установлена душевая кабина. В квартире пластиковые окна, радиаторы отопления заменены, на полу ламинат, балкон застеклен и отделан вагонкой, мебель остается при продаже. Документы готовы к сделке, никто не прописан, быстрый выход на сделку. Звоните

Подробнее в telegram

    Для того, чтобы купить двухкомнатную квартиру по адресу: Калуга, Малинники пер., 9, позвоните по телефону +7 (910) 542-26-55. Торопитесь! Объявление №30091541903 о продаже двухкомнатной квартиры опубликовано 02 ноября 2025.

    Похожие предложения
    2-к кв. Калужская область, Калуга пер. Малинники, 9 (40.0 м) - Фото 1
    2-к кв. Калужская область, Калуга пер. Малинники, 9 (40.0 м) - Фото 2
    2-комнатная квартира, общая площадь 40м², жилая 20м², кухня 15м²

    Арт.. Продается уютная двухкомнатная квартира площадью 40 м в тихом и удобном районе Малинники.Квартира расположена в надежном кирпичном доме 1978 года постройки и предлагает всё необходимое для комфортной жизни:— просторную кухню, где легко разместится...
    • 40 м²
    • 2-ком
    • 2/5 эт.
    • кирпичный
    3 550 000 Р
    Агент
    +7 (910) Показать номер
    2-к кв. Калужская область, Калуга пер. Малинники, 9 (39.8 м) - Фото 1
    2-к кв. Калужская область, Калуга пер. Малинники, 9 (39.8 м) - Фото 2
    2-комнатная квартира, общая площадь 39м², жилая 23м², кухня 9м²

    Квартира расположена в кирпичном доме в районе Малинники, отличающемся развитой социальной и бытовой инфраструктурой. В шаговой доступности находятся остановка 25 школа , детские сады и общеобразовательная школа, что делает локацию удобной для семей...
    • 39 м²
    • 2-ком
    • 2/5 эт.
    • кирпичный
    3 600 000 Р
    Агент
    +7 (910) Показать номер
    2-комнатная квартира: Калуга, переулок Малинники, 9 (40 м) - Фото 1
    2-комнатная квартира: Калуга, переулок Малинники, 9 (40 м) - Фото 2
    2-комнатная квартира, общая площадь 40м², жилая 24м², кухня 15м²

    Арт.. Продается уютная двухкомнатная квартира площадью 40 м в тихом и удобном районе Малинники.Квартира расположена в надежном кирпичном доме 1978 года постройки и предлагает всё необходимое для комфортной жизни:— просторную кухню, где легко разместится...
    • 40 м²
    • 2-ком
    • 2/5 эт.
    3 550 000 Р
    Агент
    +7 (910) Показать номер
    1-к кв. Калужская область, Калуга ул. Суворова, 50 (30.5 м) - Фото 1
    1-к кв. Калужская область, Калуга ул. Суворова, 50 (30.5 м) - Фото 2
    1-комнатная квартира, общая площадь 30м², жилая 16м², кухня 6м²

    Арт.Продаётся уютная однокомнатная квартира площадью 30,5 квадратных метра на пятом этаже пятиэтажного дома, расположенного по адресу: город Калуга, улица Суворова 50.Квартира обладает жилой площадью 16,6 квадратных метров и функциональной планировкой,...
    • 30 м²
    • 1-ком
    • 5/5 эт.
    • панельный
    3 400 000 Р
    Агент
    +7 (910) Показать номер
    2-к кв. Калужская область, Калуга ул. Новая Стройка, 1 (43.2 м) - Фото 1
    2-к кв. Калужская область, Калуга ул. Новая Стройка, 1 (43.2 м) - Фото 2
    2-комнатная квартира, общая площадь 43м², жилая 32м², кухня 6м²

    Арт.Продается 2-х комнатная квартира в районе Московской площади Ищете идеальное место для жизни? Мы рады предложить вам уютную 2-х комнатную квартиру, расположенную в сердце района Московской площади, где всё необходимое для комфортной жизни находится...
    • 43 м²
    • 2-ком
    • 3/5 эт.
    • кирпичный
    3 400 000 Р
    Агент
    +7 (980) Показать номер

    Не нашли подходящего объявления?

    Оставьте заявку, и наши риэлторы подберут квартиру в районе Калуги

    (0)