Россия, Калужская область, Калуга, проезд Юрия Круглова, 12

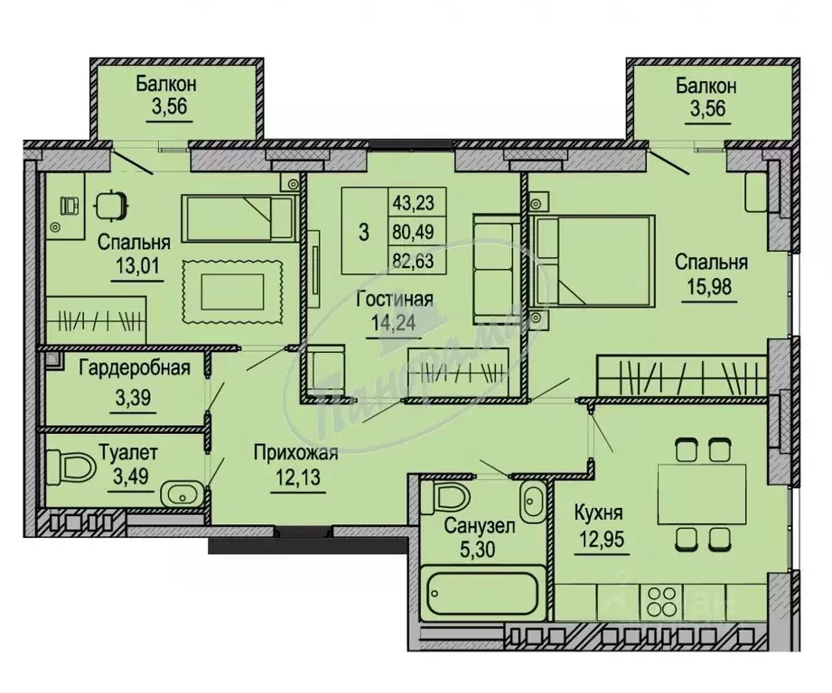
Информация о квартире

80 м2
Площадь
43 м2
Жилая
19 м2
Кухня
3
Комнаты
8
Этаж
10
Этажность
Подробнее в telegram

3-к кв. Калужская область, Калуга проезд Юрия Круглова, 12 (80.06 м)

ИПОТЕКА 4,6 Продается просторная 3-комнатная квартира в современном районе Дубрава, на проезде Юрия Круглова. Квартира расположена на 8 этаже 10-этажного монолитно-кирпичного дома 2025 года постройки.Общая площадь 80,06 кв.м с удобной и практичной планировкой.Жилая площадь включает три комнаты площадью 16,1 кв.м, 13,2 кв.м и 10,9 кв.м, что дает возможность воплотить любые идеи по обустройству. Кухня-гостиная изюминка квартиры 19,8 кв.м.В квартире выполнен качественный ремонт с напольным покрытием из линолеума, поклеены обои рогожка, установлены межкомнатные двери, розетки и выключатели.Санузел раздельный оборудован плиткой на полу и окрашенными стенами, есть ванна, унитаз, смеситель и запорная арматура. Балкон не остеклен.Дом оснащен крышным отоплением с индивидуальными счетчиками, обеспечивая комфорт и экономию.В шаговой доступности находятся детский сад Дельфиненок , школа 31, тренировочная площадка Орбита , магазины, кафе, гипермаркеты Лента и Леруа Мерлен , а также международный аэропорт Калуга.Квартира подходит под все виды ипотек, возможен оперативный просмотр. Отличное предложение для комфортной жизни в новом районе с развитой инфраструктурой.Звоните для согласования просмотра и получения подробной информации

Подробнее в telegram

    Для того, чтобы купить трехкомнатную квартиру по адресу: Калуга, проезд Юрия Круглова, 12, позвоните по телефону +7 (910) 862-41-77. Торопитесь! Объявление №30091788160 о продаже трехкомнатной квартиры опубликовано 2 дня назад.

    Похожие предложения
    4-к кв. Калужская область, Калуга пер. 2-й Красноармейский, 12 (82.8 ... - Фото 1
    4-к кв. Калужская область, Калуга пер. 2-й Красноармейский, 12 (82.8 ... - Фото 2
    4-комнатная квартира, общая площадь 82м², жилая 51м², кухня 10м²

    Артикул: 539591 Продается 4-комнатная квартира по адресу: 2-й Красноармейский переулок, 12, КалугаПредлагаем вашему вниманию просторную и светлую квартиру улучшенной планировки в одном из самых привлекательных районов города. Идеальное сочетание уюта,...
    • 82 м²
    • 4-ком
    • 2/5 эт.
    • кирпичный
    7 500 000 Р
    Агент
    +7 (910) Показать номер
    4-к кв. Калужская область, Калуга пер. 2-й Красноармейский, 12 (88.4 ... - Фото 1
    4-к кв. Калужская область, Калуга пер. 2-й Красноармейский, 12 (88.4 ... - Фото 2
    4-комнатная квартира, общая площадь 88м², жилая 51м², кухня 10м²

    Арт.. Продаётся просторная 4-х комнатная квартира на 2 этаже кирпичного дома, построенного в 1979 году. Площадь квартиры составляет 88.4 квадратных метра, кухня имеет площадь 10 квадратных метров. Санузел раздельный, что является очень удобным и практичным...
    • 88 м²
    • 4-ком
    • 2/5 эт.
    • кирпичный
    7 500 000 Р
    Агент
    +7 (910) Показать номер
    2-к кв. Калужская область, Калуга ул. 65 лет Победы, 6 (59.4 м) - Фото 1
    2-к кв. Калужская область, Калуга ул. 65 лет Победы, 6 (59.4 м) - Фото 2
    2-комнатная квартира, общая площадь 59м², жилая 28м², кухня 14м²

    Квартира с рассветами и закатами в подарок2 комнаты | 59,4 м | Вид, в который влюбляешьсяВы просыпаетесь — на кухне уже играет утреннее солнце. Открываете окно — лёгкий ветер, птичьи голоса, тишина двора. Готовите кофе и смотрите, как над городом рождается...
    • 59 м²
    • 2-ком
    • 18/25 эт.
    • монолит
    7 600 000 Р
    Агент
    +7 (980) Показать номер
    3-к кв. Калужская область, Калуга проезд Юрия Круглова, 8 (83.0 м) - Фото 1
    3-к кв. Калужская область, Калуга проезд Юрия Круглова, 8 (83.0 м) - Фото 2
    3-комнатная квартира, общая площадь 83м², жилая 42м², кухня 13м²

    Продается 3-комнатная квартира в современном, новом районе Дубрава, проезд Юрия Круглова. Подходит под все виды ипотек .Практичная планировка 3 комнатной квартиры общей площадью 83.34 м2 с ремонтом Дом по технологии монолитного каркаса и кирпичной кладки.Крышное...
    • 83 м²
    • 3-ком
    • 5/10 эт.
    7 635 000 Р
    Агент
    +7 (915) Показать номер
    3-к кв. Калужская область, Калуга ул. Кирова, 80 (60.6 м) - Фото 1
    3-к кв. Калужская область, Калуга ул. Кирова, 80 (60.6 м) - Фото 2
    3-комнатная квартира, общая площадь 60м², жилая 44м², кухня 7м²

    Код объекта: 1907074.Уникальное предложение на рынке недвижимости Калуги: трёхкомнатная квартира в кирпичном доме по адресу улица Кирова, 80. Просторная квартира общей площадью 60,6 квадратных метров с евроремонтом и изолированными комнатами — идеальный...
    • 60 м²
    • 3-ком
    • 9/10 эт.
    • кирпичный
    7 700 000 Р
    Агент
    +7 (910) Показать номер

    Не нашли подходящего объявления?

    Оставьте заявку, и наши риэлторы подберут квартиру в районе Калуги

    (0)