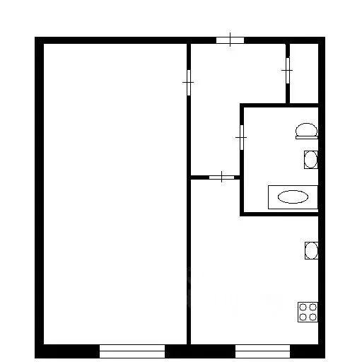
Информация о квартире

31 м2
Площадь
18 м2
Жилая
6 м2
Кухня
1
Комната
1
Этаж
5
Этажность

Дополнительная информация

Тип дома
панельный
Подробнее в telegram

1-к кв. Калужская область, Калуга ул. Маршала Жукова, 45 (31.0 м)

Арт.Продается однокомнатная квартира по адресу: М.Жукова 45На 1 этаже 5 дома Общая площадь :31. кв.м.Жилая : 18 кв.м.,Кухня : 6.3 кв.м.Окна ПВХСостояние жилоеОстается мебель,стиральная машинаВ шаговой доступности школы, детский сад, большой рынок, железнодорожная больница, остановки общественного транспорта, магазины, мини рынок. Мы гарантируем:Безопасную сделку с сопровождением опытных юристов и экспертов по недвижимости ( План Б Недвижимость ). Помощь в оформлении ипотеки на выгодных условиях. Полное сопровождение на всех этапах купли-продажи.Звоните прямо сейчас и получите бесплатную консультацию План Б Недвижимость с нами легко

Подробнее в telegram

    Для того, чтобы купить однокомнатную квартиру по адресу: Калуга, ул. Маршала Жукова, 45, позвоните по телефону +7 (980) 516-90-94. Торопитесь! Объявление №30091872402 о продаже однокомнатной квартиры опубликовано Сегодня.

    Похожие предложения в Калуге
    1-к кв. Калужская область, Калуга ул. Маршала Жукова, 45 (31.0 м) - Фото 1
    1-к кв. Калужская область, Калуга ул. Маршала Жукова, 45 (31.0 м) - Фото 2
    1-комнатная квартира, общая площадь 31м², жилая 18м², кухня 6м²

    Продаётся 1-ком квартира 31 кв.м. на 1-м этаже 5-ти эт. дома. Квартира очень тёплая, добавлены радиаторы отопления, имеются счётчики на холодную воду и электричество, водопроводные трубы - полипропилен, окна ПВХ, колонка - полуавтомат, отопление центральное,...
    • 31 м²
    • 1-ком
    • 1/5 эт.
    • панельный
    2 450 000 Р
    Агент
    +7 (919) Показать номер
    1-к кв. Калужская область, Калуга ул. Маршала Жукова, 45 (31.0 м) - Фото 1
    1-к кв. Калужская область, Калуга ул. Маршала Жукова, 45 (31.0 м) - Фото 2
    1-комнатная квартира, общая площадь 31м², жилая 18м², кухня 6м²

    Арт.Продается 1к. квартира в центре города по ул. Маршала Жукова д.45Квартира теплая, окна ПВХ. Жилая площадь 18 кв.м. Санузел совмещенный.В квартире остается :диваншкафкухонный гарнитурхолодильникстолкомодстиральная машинкаРядом находятся:две школы(...
    • 31 м²
    • 1-ком
    • 1/5 эт.
    • панельный
    2 490 000 Р
    Агент
    +7 (980) Показать номер
    1-к кв. Калужская область, Калуга ул. Маршала Жукова, 45 (31.0 м) - Фото 1
    1-к кв. Калужская область, Калуга ул. Маршала Жукова, 45 (31.0 м) - Фото 2
    1-комнатная квартира, общая площадь 31м², жилая 18м², кухня 6м²

    Арт.В продаже 1-х комнатная квартира по адресу ул. Жукова д. 45Квартира расположена на 1 этаже 5-ти этажного дома 1962 года постройки. В доме центральное отопление и колонкой для горячего водоснабжение О квартире: Жилое состояние, требует косметического...
    • 31 м²
    • 1-ком
    • 1/5 эт.
    • панельный
    2 480 000 Р
    Агент
    +7 (910) Показать номер
    1-к кв. Калужская область, Калуга ул. Маршала Жукова, 45 (31.0 м) - Фото 1
    1-к кв. Калужская область, Калуга ул. Маршала Жукова, 45 (31.0 м) - Фото 2
    1-комнатная квартира, общая площадь 31м², жилая 18м², кухня 6м²

    Арт.. В продаже 1 комнатная квартира в расширенном центре Калуги на улице Маяковского д.45Район ЧеремушкиДом кирпичный 1962 года постройкиПанельныйХАРАКТЕРИСТИКА:- Этаж 1 из 5- Общая площадь 30,1 кв.м- Санузел смежный- Кухня 6,3 кв.мОтопление центральноеГорячая...
    • 31 м²
    • 1-ком
    • -1/5 эт.
    • панельный
    2 600 000 Р
    Агент
    +7 (910) Показать номер
    1-к кв. Калужская область, Калуга ул. Маршала Жукова, 45 (31.0 м) - Фото 1
    1-к кв. Калужская область, Калуга ул. Маршала Жукова, 45 (31.0 м) - Фото 2
    1-комнатная квартира, общая площадь 31м², жилая 18м², кухня 6м²

    Артикул: 539287 Продается 1-комнатная квартира на ул. Маршала Жукова, 45, КалугаУютная однокомнатная квартира на первом этаже — отличный вариант для комфортного проживания или выгодного вложения. Просторная жилая площадь и удобная планировка делают ее...
    • 31 м²
    • 1-ком
    • 1/5 эт.
    • панельный
    2 590 000 Р
    Агент
    +7 (910) Показать номер

    Не нашли подходящего объявления?

    Оставьте заявку, и наши риэлторы подберут квартиру в районе Калуги

    (0)