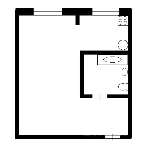
Информация о квартире

46 м2
Площадь
7 м2
Кухня
2
Комнаты
4
Этаж
5
Этажность

Дополнительная информация

Тип дома
панельный
Подробнее в telegram

2-к кв. Калужская область, Калуга Больничная ул., 11 (46.4 м)

Двухкомнатная квартира на улице Больничной предлагает выгодное сочетание удобной планировки и развитой инфраструктуры. Объект расположен на четвертом этаже пятиэтажного кирпичного дома в тихом, хорошо обжитой районе. Квартира характеризуется рациональной планировкой с изолированными комнатами, окнами на разные стороны для хорошей инсоляции и проветривания, а также раздельным санузлом и балконом. Помещение не является угловым, обеспечено надежным теплоснабжением, однако для приведения в современное состояние требует проведения косметического ремонта, что открывает возможность для новых владельцев реализовать собственные дизайнерские решения. Ключевым преимуществом является исключительная транспортная доступность и развитая социальная инфраструктура в шаговой близости: остановка общественного транспорта, сетевые продуктовые магазины, аптеки, мини-рынок для ежедневных покупок, общеобразовательная школа и спортивный зал. Центральная Площадь Победы находится в 1,5 км, что обеспечивает быстрый доступ к основным городским маршрутам и деловым центрам. Код пользователя: 178514Номер в базе:

Подробнее в telegram

    Для того, чтобы купить двухкомнатную квартиру по адресу: Калуга, ул. Больничная, 11, позвоните по телефону +7 (910) 708-07-65. Торопитесь! Объявление №30091905837 о продаже двухкомнатной квартиры опубликовано 19 ноября 2025.

    Похожие предложения
    2-комнатная квартира: Калуга, Больничная улица, 11 (46.4 м) - Фото 1
    2-комнатная квартира: Калуга, Больничная улица, 11 (46.4 м) - Фото 2
    2-комнатная квартира, общая площадь 46м², жилая 34м², кухня 7м²

    Двухкомнатная квартира на улице Больничной предлагает выгодное сочетание удобной планировки и развитой инфраструктуры. Объект расположен на четвертом этаже пятиэтажного кирпичного дома в тихом, хорошо обжитой районе. Квартира характеризуется рациональной...
    • 46 м²
    • 2-ком
    • 4/5 эт.
    3 300 000 Р
    Агент
    +7 (960) Показать номер
    2-к кв. Калужская область, Калуга Турынино мкр, ул. Турынинская, 9 ... - Фото 1
    2-к кв. Калужская область, Калуга Турынино мкр, ул. Турынинская, 9 ... - Фото 2
    2-комнатная квартира, общая площадь 46м², жилая 28м², кухня 6м²

    Код объекта: 995752.Двухкомнатная квартира в спальном районе Предлагается к покупке двухкомнатная квартира на улице Турынинская 9. Район 2-е Турынино.Общая площадь квартиры 46,5 кв.м , площадь комнат 14 кв.м+14 кв.м. Комнаты расположены на 2 стороны,...
    • 46 м²
    • 2-ком
    • 4/5 эт.
    • панельный
    3 400 000 Р
    Агент
    +7 (910) Показать номер
    2-к кв. Калужская область, Калуга Пригородная ул., 11 (46.2 м) - Фото 1
    2-к кв. Калужская область, Калуга Пригородная ул., 11 (46.2 м) - Фото 2
    2-комнатная квартира, общая площадь 46м²

    Лот 1 Двухкомнатная квартира, назначение жилое, общей площадью 46,2 м2, расположенная по адресу: Калужская обл., г. Калуга, ул. Пригородная, д. 11, кв. 78, кадастровый номер: 40:26:000205:475. Находится в залоге у ПАО Сбербанк . Для согласования осмотра:Рашид...
    • 46 м²
    • 2-ком
    • 1/5 эт.
    3 367 000 Р
    Агент
    +7 (923) Показать номер
    2-к кв. Калужская область, Калуга ул. Ленина, 31 (44.0 м) - Фото 1
    2-к кв. Калужская область, Калуга ул. Ленина, 31 (44.0 м) - Фото 2
    2-комнатная квартира, общая площадь 44м², жилая 30м², кухня 6м²

    Арт.В продаже 2-комнатная квартира по адресу: г. Калуга, ул. Ленина, д. 31.В непосредственной близости находятся различные магазины, аптеки, отделения банков, школы и детские сады Удачное расположение самого дома: вторая линия от центральной улицы города...
    • 44 м²
    • 2-ком
    • 1/5 эт.
    • монолит
    3 350 000 Р
    Агент
    +7 (910) Показать номер
    1-к кв. Калужская область, Калуга Зеленая ул., 52 (26.0 м) - Фото 1
    1-к кв. Калужская область, Калуга Зеленая ул., 52 (26.0 м) - Фото 2
    1-комнатная квартира, общая площадь 26м², жилая 15м², кухня 6м²

    Арт.Вашему вниманию представлена шикарная квартира с евроремонтом Адрес: Калужская обл., Калуга, ул. Зеленая, 52, р-н ОктябрьскийО доме:5 из 5 этаж, кирпичный дом 1970 год постройки,в доме был кап ремонт, чистый подъездО квартире:Общая площадь: 26Площадь...
    • 26 м²
    • 1-ком
    • 5/5 эт.
    • кирпичный
    3 300 000 Р
    Агент
    +7 (910) Показать номер

    Не нашли подходящего объявления?

    Оставьте заявку, и наши риэлторы подберут квартиру в районе Калуги

    (0)