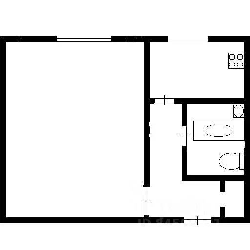
Информация о квартире

34 м2
Площадь
18 м2
Жилая
10 м2
Кухня
студия
Комнат
5
Этаж
5
Этажность
Подробнее в telegram

Студия Калужская область, Калуга ул. Кожедуба, 11 (34.6 м)

Улучшенная 1-к квартира в предчистовой отделке в новом доме в Воротынскетеплый, кирпичный дом 2018 годакачественная предчистовая отделкахорошая планировка с возможностью трансформирования под ваши бытовые сценарииОбщая площадь квартиры - 34,6 кв.м + балкон. Планировка - трансформер, дает несколько вариантов на выбор:классическая 1-к квартира с отдельной кухней (10 кв.м) и жилой комнатой (18 кв.м), для этого нужно возвести стенупросторная студия в стиле лофт, которую можно зонировать мебелью (стеллажами например)можно оставить просторную кухню-гостиную, отгородив себе приватную спальную зонуКвартира в предчистовой отделке. Выполнена стяжка пола, стены отштукатурены и отшпаклеваны. Продумана и разведена вся инженерия (электрика, сантехника, отопление). Вам останется определиться с планировкой, выбрать цвет стен, материал пола, модель кухни, согласитесь, что это самое приятное в ремонте Лучше вас все равно никто не сделает Развитая инфраструктура, рядом с домом несколько магазинов (в том числе сетевые Магнит, Пятерочка, Дикси), ТЦ Манго , пункты выдачи OZON, WB, Яндекс. Детский садик с бассейном и школа в пешей доступности. Регулярно ходит общественный транспорт до Калуги, на машине можно добраться за 25 минут с учетом пробок.Если у Вас остались вопросы, пишите нам в чат или звоните, мы всё обсудим и договоримся о просмотре в удобное для вас время.Номер объекта: 22993.

Подробнее в telegram

    Для того, чтобы купить студию по адресу: Калуга, ул. Кожедуба, 11, позвоните по телефону +7 (910) 522-52-03. Торопитесь! Объявление №30092534899 о продаже студии опубликовано 19 декабря 2025.

    Похожие предложения
    1-к кв. Калужская область, Калуга ул. Кожедуба, 11 (34.6 м) - Фото 1
    1-к кв. Калужская область, Калуга ул. Кожедуба, 11 (34.6 м) - Фото 2
    1-комнатная квартира, общая площадь 34м², жилая 18м², кухня 10м²

    Улучшенная 1-к квартира в предчистовой отделке в новом доме в Воротынскетеплый, кирпичный дом 2018 годакачественная предчистовая отделкахорошая планировка с возможностью трансформирования под ваши бытовые сценарииОбщая площадь квартиры - 34,6 кв.м + балкон....
    • 34 м²
    • 1-ком
    • 5/5 эт.
    2 440 000 Р
    Агент
    +7 (910) Показать номер
    1-к кв. Калужская область, Калуга Привокзальная ул., 1к1 (35.7 м) - Фото 1
    1-к кв. Калужская область, Калуга Привокзальная ул., 1к1 (35.7 м) - Фото 2
    1-комнатная квартира, общая площадь 35м², жилая 20м², кухня 8м²

    В продаже 1-комнатная квартира УЛУЧШЕННОЙ ПЛАНИРОВКИ в тихом зеленом районе - Калуга-2. Кирпичный дом 1989 года постройки.Общая площадь - 35.7 кв.мКухня - 8.1 кв.мБольшая комната 20.4 кв.мЛоджия застеклена. Квартира со свежим косметическим ремонтом ,...
    • 35 м²
    • 1-ком
    • 1/5 эт.
    • кирпичный
    2 490 000 Р
    Агент
    +7 (980) Показать номер
    1-к кв. Калужская область, Калуга ул. Радищева, 8 (29.5 м) - Фото 1
    1-к кв. Калужская область, Калуга ул. Радищева, 8 (29.5 м) - Фото 2
    1-комнатная квартира, общая площадь 29м², жилая 17м², кухня 5м²

    Код объекта: 1795737.Вашему вниманию предлагается уютная однокомнатная квартира в Калуге по адресу: улица Радищева, 8. Это идеальный выбор для тех, кто ищет комфортное жильё по доступной цене.Квартира расположена на втором этаже пятиэтажного кирпичного...
    • 29 м²
    • 1-ком
    • 2/5 эт.
    • кирпичный
    2 500 000 Р
    Агент
    +7 (910) Показать номер
    1-к кв. Калужская область, Калуга ул. Бутомы, 7 (30.6 м) - Фото 1
    1-к кв. Калужская область, Калуга ул. Бутомы, 7 (30.6 м) - Фото 2
    1-комнатная квартира, общая площадь 30м², жилая 17м², кухня 6м²

    Арт.Описание объектаВ продаже 1комнатная квартира в ЦЕНТРЕ городаИПОТЕКА 12,25 на данную квартиру только для наших клиентов.Квартира находится по адресу ул. Бутомы д.7, район Московской площади.Квартира расположена на первом этаже (высокий цоколь) 5...
    • 30 м²
    • 1-ком
    • 1/5 эт.
    • панельный
    2 490 000 Р
    Агент
    +7 (980) Показать номер
    1-к кв. Калужская область, Калуга ул. Клюквина, 27 (21.0 м) - Фото 1
    1-к кв. Калужская область, Калуга ул. Клюквина, 27 (21.0 м) - Фото 2
    1-комнатная квартира, общая площадь 21м², жилая 10м², кухня 5м²

    Продается 1 комнатная квартира на 4 этаже 5 этажного дома кирпичного дома по улице Клюквино. Есть подвал. Квартира продается с мебелью и техникой. Есть все необходимое для проживания. Чистый подъезд. Все в шаговой доступности: школа, детский сад, остановка...
    • 21 м²
    • 1-ком
    • 4/5 эт.
    2 350 000 Р
    Агент
    +7 (980) Показать номер

    Не нашли подходящего объявления?

    Оставьте заявку, и наши риэлторы подберут квартиру в районе Калуги

    (0)