Информация о квартире

61 м2
Площадь
12 м2
Кухня
2
Комнаты
3
Этаж
17
Этажность

Дополнительная информация

Тип дома
монолит
Подробнее в telegram

2-к кв. Калужская область, Калуга ул. Кибальчича, 2 (61.0 м)

Продаётся двухкомнатная квартира в Калуге — современный комфорт в ЖК Галактика Этаж: 3 из 17.Планировка:аспашонка (окна на две стороны). Продуманная планировка: изолированные комнаты + раздельный санузел — идеально для семьи.Состояние: новый ремонт, квартира без проживания — ждёт своих хозяев Почему это отличный выбор?-Свет и тишина: окна выходят на две стороны, лоджия во двор (без дорожного шума).-Экономия на коммуналке: крышная котельная обеспечивает стабильное тепло и ГВС — платежи ниже.-Удобство для автовладельцев: большая дворовая парковка.-Готовность к сделке: без обременений, документы в порядке, возможен ипотечный расчёт.О доме и локации:-Современный дом (2018 г.) — монолитнокирпичный, переменная этажность.-Развитая инфраструктура: магазины, сервисы, поликлиника — всё в шаговой доступности.-Для семей с детьми: рядом школы и детские сады (ул. Кибальчича и соседние кварталы).-Транспортная доступность: удобный выезд в сторону Москвы.Что вы получаете:-Просторную двухкомнатную квартиру с ремонтом заезжай и живи .-Ухоженный подъезд и чистые места общего пользования.-Тихую лоджию с видом во двор — место для отдыха и уюта.Показ: в любое согласованное время, ключи на руках — покажем оперативно Звоните прямо сейчас — ваш идеальный дом ждёт Почему нужно работать с Федеральной компанией Этажи ?- Юридическое сопровождение сделки и гарантия финансовой защиты- Уникальные условия на услуги страхования объекта- Самые низкие ипотечные ставки- Новостройка без комиссии- Программа лояльности Этажи Бонус для клиентов компании Этажи от партнеров .Код пользователя: 177785Номер в базе:

Подробнее в telegram

    Для того, чтобы купить двухкомнатную квартиру по адресу: Калуга, ул. Кибальчича, 2, позвоните по телефону +7 (980) 712-42-06. Торопитесь! Объявление №30092610985 о продаже двухкомнатной квартиры опубликовано Вчера.

    Похожие предложения
    2-к кв. Калужская область, Калуга Звездная ул., 18А (68.7 м) - Фото 1
    2-к кв. Калужская область, Калуга Звездная ул., 18А (68.7 м) - Фото 2
    2-комнатная квартира, общая площадь 68м², жилая 31м², кухня 15м²

    Арт.ЭКСКЛЮЗИВНОЕ ПРЕДЛОЖЕНИЕ Продаётся двухкомнатная квартира в одном из лучших домов микрорайона Байконур — по адресу ул. Звёздная, д. 18А.Дом монолитно-кирпичный, 2008 года постройки — тёплый, надёжный, с хорошей шумоизоляцией и ухоженной территорией.Квартира...
    • 68 м²
    • 2-ком
    • 2/10 эт.
    7 500 000 Р
    Агент
    +7 (910) Показать номер
    2-к кв. Калужская область, Калуга ул. Полесская, 31 (65.89 м) - Фото 1
    2-к кв. Калужская область, Калуга ул. Полесская, 31 (65.89 м) - Фото 2
    2-комнатная квартира, общая площадь 65м², жилая 42м², кухня 15м²

    Продается квартира по ул. Полесская д.айон правого берегаБольшая двухкомнатная квартира кухней гостиной с евроремонтом . В квартире выполнен хороший дорогостоящий ремонт с встроенной техникой.Дом кирпичный с индивидуальным отоплением, минимальная оплата...
    • 65 м²
    • 2-ком
    • 5/9 эт.
    • кирпичный
    7 400 000 Р
    Агент
    +7 (910) Показать номер
    3-к кв. Калужская область, Калуга проезд 3-й Академический, 6 (72.6 м) - Фото 1
    3-к кв. Калужская область, Калуга проезд 3-й Академический, 6 (72.6 м) - Фото 2
    3-комнатная квартира, общая площадь 72м², жилая 37м², кухня 13м²

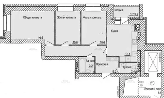
    Номер в базе Агентства 23872 В продаже 3-комнатная квартира в кирпичном доме Трёхкомнатная квартира площадью 72,6 кв. м. в микрорайоне Правобережье с кухней 13,1 кв.м. и лоджией 4,1 кв.м. и три раздельные комнаты по 16,6, 10,6 и 10,6 кв.м.- динамично...
    • 72 м²
    • 3-ком
    • 3/9 эт.
    • кирпичный
    7 495 000 Р
    Агент
    +7 (910) Показать номер
    3-к кв. Калужская область, Калуга ул. Георгия Амелина, 27 (74.0 м) - Фото 1
    3-к кв. Калужская область, Калуга ул. Георгия Амелина, 27 (74.0 м) - Фото 2
    3-комнатная квартира, общая площадь 74м², жилая 46м², кухня 14м²

    Продается 3 комнатная квартира на 3 этаже 3-этажного кирпичного дома с индивидуальным отоплением. Квартира с дорогим ремонтом по плитке проходит теплый пол. Новый и дорогой кухонный гарнитур. Хорошая прихожая , в квартире почти все остается. Подходит...
    • 74 м²
    • 3-ком
    • 3/3 эт.
    • кирпичный
    7 500 000 Р
    Агент
    +7 (980) Показать номер
    2-к кв. Калужская область, Калуга ул. Минская, 24 (66.0 м) - Фото 1
    2-к кв. Калужская область, Калуга ул. Минская, 24 (66.0 м) - Фото 2
    2-комнатная квартира, общая площадь 66м², жилая 38м², кухня 11м²

    Продается шикарная 2 комнатная квартира на 10 этаже 19 этажного дома по улице Минской . Квартира полностью после нового ремонта, никто не жил . Венецианская штукатурка, на полу ламинат , дорогая мебель и техника, встроенная духовая печь, посудомоечная...
    • 66 м²
    • 2-ком
    • 10/19 эт.
    7 500 000 Р
    Агент
    +7 (980) Показать номер

    Не нашли подходящего объявления?

    Оставьте заявку, и наши риэлторы подберут квартиру в районе Калуги

    (0)