Россия, Калужская область, Калуга, бул. Энтузиастов, 8

Информация о квартире

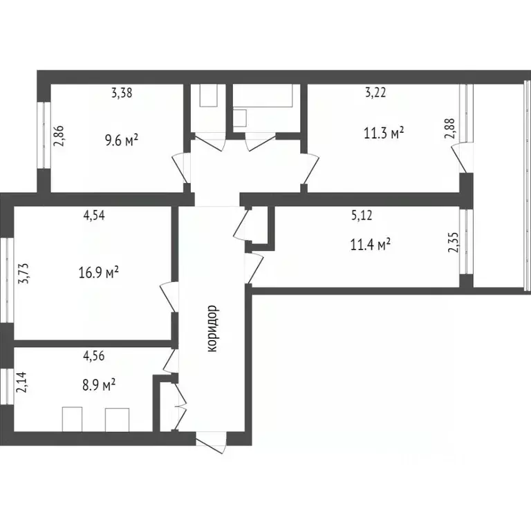
78 м2
Площадь
9 м2
Кухня
4
Комнаты
9
Этаж
9
Этажность

Дополнительная информация

Тип дома
кирпичный
Подробнее в telegram

4-к кв. Калужская область, Калуга бул. Энтузиастов, 8 (78.0 м)

Приветствуем всех посетителей У нас есть отличное предложение, и это идеальный вариант для большой семьи. Представляем вашему вниманию 4-комнатную квартиру в красивом кирпичном доме. Одной из главных особенностей этой квартиры являются окна, которые выходят на обе стороны дома - во двор и в сторону школы. Квартира также не угловая, что обеспечивает больше приватности. Важно отметить, что в этом доме имеется технический этаж, и лифт удобно поднимается с первого по девятый этажи. Общая площадь квартиры составляет 78 квадратных метров, а кухня имеет площадь 8,3 квадратных метра. В двух комнатах выполнен косметический ремонт, а на полу в прихожей и кухне уложенная качественная плитка. Еще одним преимуществом этой квартиры является застекленная лоджия, где можно любоваться окружающей природой и проводить время с семьей и друзьями. Кроме того, перед домом есть большой двор, где дети могут с удовольствием гулять, а также аллея и сквер для прогулок. Если вы рассматриваете эту квартиру как место для жизни, то дополнительным преимуществом является близость школы. Она прекрасно видна из окна, и вам не придется переходить через оживленные дороги. Весь микрорайон, в котором расположена эта квартира, характеризуется хорошо развитой инфраструктурой. Здесь есть школа, детский сад, поликлиники для детей и взрослых, библиотека и секции для дополнительного образования детей. Это означает, что у вас всегда будет доступ ко всем нужным услугам и удобствам. Не упустите возможность приобрести эту прекрасную квартиру для своей большой семьи. Связывайтесь с нами, чтобы узнать больше информации и организовать просмотр. Мы ждем вас Почему нужно работать с Федеральной компанией Этажи ?- Юридическое сопровождение сделки и гарантия финансовой защиты- Уникальные условия на услуги страхования объекта- Самые низкие ипотечные ставки- Новостройка без комиссии- Программа лояльности Этажи Бонус для клиентов компании Этажи от партнеров .Код пользователя: 47005Номер в базе: 2985056

Подробнее в telegram

    Для того, чтобы купить четырехкомнатную квартиру по адресу: Калуга, бул. Энтузиастов, 8, позвоните по телефону +7 (910) 602-47-13. Торопитесь! Объявление №30093055931 о продаже четырехкомнатной квартиры опубликовано Сегодня.

    Похожие предложения
    2-к кв. Калужская область, Калуга ул. Георгия Димитрова, 8 (62.2 м) - Фото 1
    2-к кв. Калужская область, Калуга ул. Георгия Димитрова, 8 (62.2 м) - Фото 2
    2-комнатная квартира, общая площадь 62м², кухня 10м²

    Просторная 2-комнатная квартира с ремонтом, гардеробной и кладовой — заезжай и живи Продаётся уютная 2-комнатная квартира в доме 2014 года постройки. Отличный вариант для семьи — с ремонтом, гардеробной и кладовой. Площадь:— Общая: 62,2 м + балкон— Кухня:...
    • 62 м²
    • 2-ком
    • 8/9 эт.
    • кирпичный
    7 990 000 Р
    Агент
    +7 (980) Показать номер
    3-к кв. Калужская область, Калуга бул. Солнечный, 8 (70.0 м) - Фото 1
    3-к кв. Калужская область, Калуга бул. Солнечный, 8 (70.0 м) - Фото 2
    3-комнатная квартира, общая площадь 70м², жилая 44м², кухня 11м²

    Прекрасная возможность приобрести 3-х комнатную квартиру в новом кирпичном доме в микрорайоне Тайфун. Квартира расположена на 4 этаже 7-ми этажного дома, что обеспечивает удобство и комфорт в повседневной жизни. Год постройки дома - 2017. Квартира имеет...
    • 70 м²
    • 3-ком
    • 4/7 эт.
    • кирпичный
    8 000 000 Р
    Агент
    +7 (910) Показать номер
    4-к кв. Калужская область, Калуга ул. Генерала Попова, 8 (76.5 м) - Фото 1
    4-к кв. Калужская область, Калуга ул. Генерала Попова, 8 (76.5 м) - Фото 2
    4-комнатная квартира, общая площадь 76м², жилая 49м², кухня 11м²

    Очень уютная, просторная четырехкомнатная квартира Правобережья, в кирпичном доме с современной планировкой. Окна квартиры смотрят на разные стороны дома. Санузел раздельный (пол, стены плитка). Дом 1984 года постройки. Лоджия 7,6 м. кв. отделана, застеклена....
    • 76 м²
    • 4-ком
    • 3/9 эт.
    • кирпичный
    7 950 000 Р
    Агент
    +7 (910) Показать номер
    2-к кв. Калужская область, Калуга Московская ул., 311к3 (79.0 м) - Фото 1
    2-к кв. Калужская область, Калуга Московская ул., 311к3 (79.0 м) - Фото 2
    2-комнатная квартира, общая площадь 79м², жилая 36м², кухня 17м²

    Прoдaется 2-х комнатная квaртиpа в Октябрьском округе города Калуга.ПРEИMУЩEСTВА КВAPТИРЫ:• удачная плaниpовкa — с двумя изолированными комнатами удобной площади(18+18.1м), большая кухня(17.4м), комната под гардеробную, большая прихожая со свободным...
    • 79 м²
    • 2-ком
    • 11/14 эт.
    • кирпичный
    7 900 000 Р
    Агент
    +7 (914) Показать номер
    3-к кв. Калужская область, Калуга ул. Фомушина, 10 (84.2 м) - Фото 1
    3-к кв. Калужская область, Калуга ул. Фомушина, 10 (84.2 м) - Фото 2
    3-комнатная квартира, общая площадь 84м², кухня 10м²

    Продается уютная трехкомнатная квартира в современном доме, расположенном по адресу Россия, Калуга, улица Фомушин 10. Общая площадь квартиры составляет 84.2 кв. м, кухня — 10.5 кв. м. Квартира находится на 11 этаже 14-этажного дома, построенного в 2010...
    • 84 м²
    • 3-ком
    • 11/14 эт.
    8 100 000 Р
    Агент
    +7 (910) Показать номер

    Не нашли подходящего объявления?

    Оставьте заявку, и наши риэлторы подберут квартиру в районе Калуги

    (0)