Россия, Калужская область, Калуга, Хрустальный переулок, 27

Информация о квартире

40 м2
Площадь
24 м2
Жилая
11 м2
Кухня
1
Комната
17
Этаж
20
Этажность
Подробнее в telegram

1-комнатная квартира: Калуга, Хрустальный переулок, 27 (40.2 м)

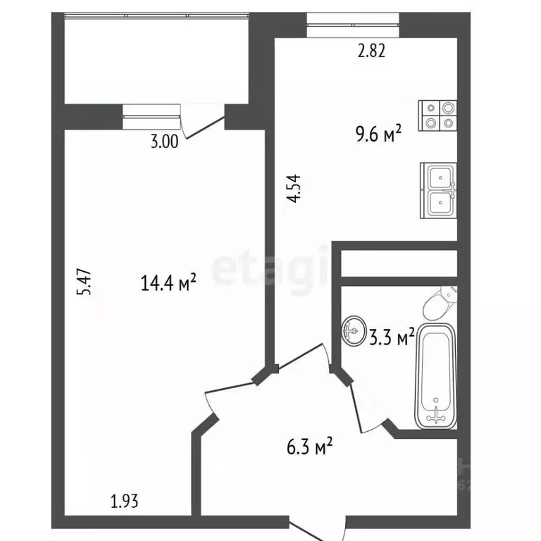
Продается однокомнатная квартира площадью 40 кв. м на 17 этаже 20-этажного монолитного дома в жилом комплексе «Новые Черёмушки . Объект полностью готов к заселению и отличается качественной отделкой.Планировка включает просторную кухню, выполненную по индивидуальному проекту с встроенной индукционной панелью, духовым шкафом и холодильником Side-by-Side. Санузел отделан светлой итальянской плиткой с современной сантехникой. Основное помещение — светлая комната с тремя окнами, оснащенными трехкамерными стеклопакетами, что обеспечивает эффективную шумоизоляцию и сохранение тепла.К комнате примыкает утепленный балкон с панорамным остеклением и ламинатом, который можно использовать как дополнительное пространство для отдыха. Дом расположен в одном из самых спокойных и благоустроенных районов Калуги с развитой инфраструктурой: в шаговой доступности находятся детские сады, школы, супермаркеты «Магнит , «Пятёрочка и «Лента , а также кафе и скверы. Транспортная доступность отличная — имеется удобный выезд на проспект Кирова и Московскую улицу.У подъезда организована уличная парковка. В доме поддерживается чистота и порядок. Квартира принадлежит одному взрослому собственнику, не имеет обременений, все необходимые документы подготовлены для совершения сделки. Код пользователя: 194615Номер в базе:

Подробнее в telegram

    Для того, чтобы купить однокомнатную квартиру по адресу: Калуга, Хрустальный переулок, 27, позвоните по телефону +7 (906) 645-99-24. Торопитесь! Объявление №30093442602 о продаже однокомнатной квартиры опубликовано Вчера.

    Похожие предложения
    1-к кв. Калужская область, Калуга пер. Хрустальный, 27 (40.2 м) - Фото 1
    1-к кв. Калужская область, Калуга пер. Хрустальный, 27 (40.2 м) - Фото 2
    1-комнатная квартира, общая площадь 40м², кухня 11м²

    Продается однокомнатная квартира площадью 40 кв. м на 17 этаже 20-этажного монолитного дома в жилом комплексе Новые Черёмушки . Объект полностью готов к заселению и отличается качественной отделкой.Планировка включает просторную кухню, выполненную по...
    • 40 м²
    • 1-ком
    • 17/20 эт.
    • блочный
    7 000 000 Р
    Агент
    +7 (980) Показать номер
    2-к кв. Калужская область, Калуга ул. Кирова, 47 (50.0 м) - Фото 1
    2-к кв. Калужская область, Калуга ул. Кирова, 47 (50.0 м) - Фото 2
    2-комнатная квартира, общая площадь 50м², кухня 9м²

    Продается двухкомнатная квартира в кирпичном доме в самом центре города на улице Кирова. Большая кухня, объединенная с лоджией, есть еще две застекленные лоджии, те в каждой комнате, еще есть кладовка. Вся мебель (кухонный гарнитур по договоренности)...
    • 50 м²
    • 2-ком
    • 2/9 эт.
    • кирпичный
    7 000 000 Р
    Агент
    +7 (980) Показать номер
    2-к кв. Калужская область, Калуга Московская ул., 311к5 (59.7 м) - Фото 1
    2-к кв. Калужская область, Калуга Московская ул., 311к5 (59.7 м) - Фото 2
    2-комнатная квартира, общая площадь 59м², жилая 26м², кухня 14м²

    Двухкомнатная квартира площадью 59.7 кв. м расположена на 6-м этаже 15-этажного монолитного дома с кирпичной облицовкой, что обеспечивает высокую звукоизоляцию и энергоэффективность. Планировка отличается продуманностью и практичностью: изолированные...
    • 59 м²
    • 2-ком
    • 6/15 эт.
    • монолит
    7 000 000 Р
    Агент
    +7 (910) Показать номер
    2-к кв. Калужская область, Калуга ул. Минская, 23к1 (64.06 м) - Фото 1
    2-к кв. Калужская область, Калуга ул. Минская, 23к1 (64.06 м) - Фото 2
    2-комнатная квартира, общая площадь 64м², жилая 33м², кухня 9м²

    Арт.Уютная 2-комнатная квартира с изолированными в новом доме КалугиОбщая площадь: 64,06мЭтаж: 13 из 19Тип дома: панельныйАдрес: г. Калуга, ул. Минская 23 к.1 Планировка и особенности* Жилая площадь: 32,96 м* Кухня: 9,22 м* Раздельный санузел* Просторная...
    • 64 м²
    • 2-ком
    • 13/19 эт.
    • панельный
    6 950 000 Р
    Агент
    +7 (910) Показать номер
    3-к кв. Калужская область, Калуга ул. Салтыкова-Щедрина, 72 (58.0 м) - Фото 1
    3-к кв. Калужская область, Калуга ул. Салтыкова-Щедрина, 72 (58.0 м) - Фото 2
    3-комнатная квартира, общая площадь 58м², жилая 36м², кухня 8м²

    Продаётся просторная 3-комнатная квартира в кирпичном доме 2000 года постройки, расположенном в одном из центральных районов города. Жилая площадь 36 кв.м. включает три изолированные комнаты (15,1; 12,3 и 8,6 кв.м.), что обеспечивает комфортное размещение...
    • 58 м²
    • 3-ком
    • 6/9 эт.
    • кирпичный
    7 000 000 Р
    Агент
    +7 (915) Показать номер

    Не нашли подходящего объявления?

    Оставьте заявку, и наши риэлторы подберут квартиру в районе Калуги

    (0)