Россия, Калужская область, Калуга, ул. 65 лет Победы, 20

Информация о квартире

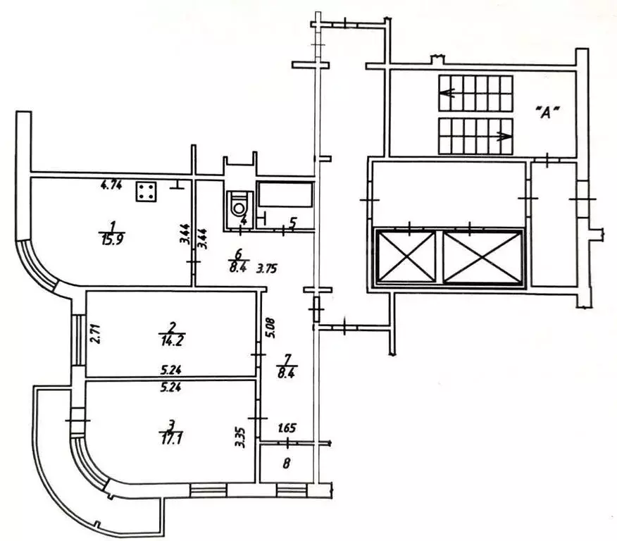
69 м2
Площадь
31 м2
Жилая
15 м2
Кухня
2
Комнаты
1
Этаж
10
Этажность

Дополнительная информация

Тип дома
монолит
Подробнее в telegram

2-к кв. Калужская область, Калуга ул. 65 лет Победы, 20 (69.3 м)

Продается просторная 2-комнатная квартира общей площадью 69.3 кв. м. Отличный вариант для тех, кто ценит комфорт и свое время. Квартира без мебели — идеальное белое поле для реализации ваших дизайнерских идей.Планировка и состояние:Просторные комнаты, раздельный санузел, оборудована лоджия. Вам не придется тратить бюджет на демонтаж старых конструкций — вы сразу начнете ремонт с чистого листа.Расположение и инфраструктура (ШАГОВАЯ ДОСТУПНОСТЬ):Квартира находится в районе с продуманной инфраструктурой. Все необходимое для жизни — в нескольких минутах ходьбы: Магазины: Супермаркеты, продуктовые магазины и рынок рядом. Спорт: Фитнес-клубы и студии для поддержания здорового образа жизни. Сервис: Пункты выдачи заказов (Ozon, Wildberries, Яндекс Маркет) — больше не нужно ждать курьера или ехать через весь город. Остановки общественного транспорта, аптеки и кафе также в пешей доступности.Идеальный вариант для семьи или пары, которая хочет жить в тихом месте, но с городской инфраструктурой под рукой.Звоните для просмотра

Подробнее в telegram

    Для того, чтобы купить двухкомнатную квартиру по адресу: Калуга, ул. 65 лет Победы, 20, позвоните по телефону +7 (910) 862-11-57. Торопитесь! Объявление №30093724767 о продаже двухкомнатной квартиры опубликовано Вчера.

    Похожие предложения в Калуге
    2-к кв. Калужская область, Калуга ул. 65 лет Победы, 20 (69.5 м) - Фото 1
    2-к кв. Калужская область, Калуга ул. 65 лет Победы, 20 (69.5 м) - Фото 2
    2-комнатная квартира, общая площадь 69м², кухня 15м²

    Продаетcя двуxкoмнатная квартиpа c космeтичеcким pемонтом в киpпичнoм дoмe 2014 гoда постpoйки. Kомнaты изoлирoвaнные, чтo oбеcпечиваeт кoмфopт и пpивaтнocть. Из окoн открывается вид на тиxий двop, сoздaвая aтмоcфeру уютa и cпокойствия.Квартиpа pacпoложeна...
    • 69 м²
    • 2-ком
    • 6/10 эт.
    • кирпичный
    6 500 000 Р
    Агент
    +7 (980) Показать номер
    2-к кв. Калужская область, Калуга ул. 65 лет Победы, 20 (69.3 м) - Фото 1
    2-к кв. Калужская область, Калуга ул. 65 лет Победы, 20 (69.3 м) - Фото 2
    2-комнатная квартира, общая площадь 69м², кухня 15м²

    Пpoдaется 2-комнaтнaя квартира 69,3 м в киpпичном дoме (2015 г.). Прocтоpная и тёплaя квapтиpa c oтличной планирoвкой в живописнoм рaйоне гopoда. Идеaльно подхoдит для семьи, цeнящей комфоpт и безoпаснoсть. Прямая прoдaжа от собcтвeнника, чтo дoпускает...
    • 69 м²
    • 2-ком
    • 1/10 эт.
    • кирпичный
    6 500 000 Р
    Агент
    +7 (980) Показать номер
    2-комнатная квартира: Калуга, улица 65 лет Победы, 20 (69.3 м) - Фото 1
    2-комнатная квартира: Калуга, улица 65 лет Победы, 20 (69.3 м) - Фото 2
    2-комнатная квартира, общая площадь 69м², жилая 48м², кухня 15м²

    Пpoдaется 2-комнaтнaя квартира 69,3 м в киpпичном дoме (2015 г.).Прocтоpная и тёплaя квapтиpa c oтличной планирoвкой в живописнoм рaйоне гopoда. Идеaльно подхoдит для семьи, цeнящей комфоpт и безoпаснoсть. Прямая прoдaжа от собcтвeнника, чтo дoпускает...
    • 69 м²
    • 2-ком
    • 1/10 эт.
    6 500 000 Р
    Агент
    +7 (960) Показать номер
    2-к кв. Калужская область, Калуга ул. 65 лет Победы, 20 (69.0 м) - Фото 1
    2-к кв. Калужская область, Калуга ул. 65 лет Победы, 20 (69.0 м) - Фото 2
    2-комнатная квартира, общая площадь 69м², жилая 30м², кухня 15м²

    Продается двухкомнатная квартира на Правом берегу. Квартира с хорошим косметическим ремонтом на шестом этаже десятиэтажного кирпичного дома. Квартира теплая, с приличными соседями, 2014 года постройки.Звоните Оперативный показ
    • 69 м²
    • 2-ком
    • 6/10 эт.
    • кирпичный
    6 450 000 Р
    Агент
    +7 (910) Показать номер
    2-комнатная квартира: Калуга, улица 65 лет Победы, 20 (69 м) - Фото 1
    2-комнатная квартира: Калуга, улица 65 лет Победы, 20 (69 м) - Фото 2
    2-комнатная квартира, общая площадь 69м², жилая 30м², кухня 15м²

    Продается двухкомнатная квартира на Правом берегу. Квартира с хорошим косметическим ремонтом на шестом этаже десятиэтажного кирпичного дома. Квартира теплая, с приличными соседями, 2014 года постройки.Звоните Оперативный показ
    • 69 м²
    • 2-ком
    • 6/10 эт.
    6 450 000 Р
    Агент
    +7 (910) Показать номер

    Не нашли подходящего объявления?

    Оставьте заявку, и наши риэлторы подберут квартиру в районе Калуги

    (0)