Россия, Калужская область, Калуга, пер. Хрустальный, 29

Информация о квартире

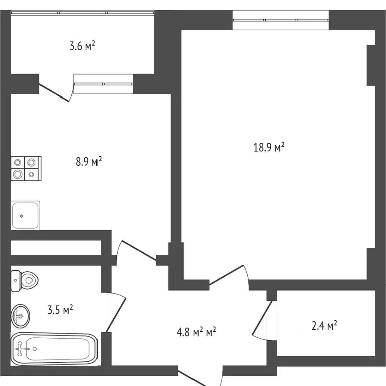
39 м2
Площадь
18 м2
Жилая
9 м2
Кухня
1
Комната
20
Этаж
20
Этажность
Подробнее в telegram

1-к кв. Калужская область, Калуга пер. Хрустальный, 29 (39.0 м)

Квартира расположена на 20-м этаже и предлагает уникальную панораму. Общая площадь составляет 39 кв. м, а жилая зона — 18.9 кв. м, что позволяет гибко организовать пространство, разделив его на две функциональные зоны. Из кухни есть выход на просторную лоджию с панорамным остеклением, откуда открывается впечатляющий вид. В квартире сохранена практичная планировка с отдельной гардеробной зоной, а также остаётся качественный кухонный гарнитур для комфортного заселения. Район отличается развитой инфраструктурой: в шаговой доступности расположены школы 22 и 10, детские сады, отделения банков, включая Сбербанк, и сетевые магазины Магнит , Дикси и Пятерочка . Для активного отдыха вблизи находятся спортивный комплекс Труд , фитнес-клуб ГрандФитнес , каток и секция джиу-джитсу. Транспортная доступность высокая — рядом с домом проходит множество маршрутов общественного транспорта. Объект подходит для тех, кто ценит панорамные виды, удобное расположение и готовность к заселению без дополнительных вложений.Также это идеальный вариант для инвестиций Звони сейчас и узнай, какие есть варианты по оформлению в ипотеку покупатель получает от компании Этажи: сертификат гарантию безопасности сделки у нас услуги всех специалистов в одном месте - юрист, брокер, риэлтор. (сокращаем сроки сделки до трех дней)Ипотека: зеленый коридор в 15 банках, быстрый процесс рассмотрения и расчета заявок, оформление страховых, на 20 выше процент одобряемости Почему нужно работать с Федеральной компанией Этажи ?- Юридическое сопровождение сделки и гарантия финансовой защиты- Уникальные условия на услуги страхования объекта- Самые низкие ипотечные ставки- Новостройка без комиссии- Программа лояльности Этажи Бонус для клиентов компании Этажи от партнеров .Код пользователя: 199838Номер в базе:

Подробнее в telegram

    Для того, чтобы купить однокомнатную квартиру по адресу: Калуга, пер. Хрустальный, 29, позвоните по телефону +7 (919) 030-24-07. Торопитесь! Объявление №30094247252 о продаже однокомнатной квартиры опубликовано 15 марта 2026.

    Похожие предложения в Калуге
    1-к кв. Калужская область, Калуга пер. Хрустальный, 29 (39.0 м) - Фото 1
    1-к кв. Калужская область, Калуга пер. Хрустальный, 29 (39.0 м) - Фото 2
    1-комнатная квартира, общая площадь 39м², жилая 18м², кухня 9м²

    Арт.Откройте дверь в свой новый дом — уютную однокомнатную квартиру в современном монолитном доме (2021 год постройки) Что вас ждёт:* светлая и просторная кухня 9м2 — место, где будут собираться за ужином близкие;* комфортная жилая зона 18,9м2 для отдыха...
    • 39 м²
    • 1-ком
    • 20/21 эт.
    • монолит
    5 500 000 Р
    Агент
    +7 (910) Показать номер
    1-к кв. Калужская область, Калуга пер. Хрустальный, 29 (39.0 м) - Фото 1
    1-к кв. Калужская область, Калуга пер. Хрустальный, 29 (39.0 м) - Фото 2
    1-комнатная квартира, общая площадь 39м², жилая 18м², кухня 9м²

    Большая 1-комнатная квартира с прекрасным панорамным видом в ЖК Черёмушки — современный дом 2021 года постройки— удобная планировка с лоджией— до центра города всего 10 минут на автомобилеСвежий монолитный дом 2021 года постройки. Квартира не угловая,...
    • 39 м²
    • 1-ком
    • 20/21 эт.
    5 500 000 Р
    Агент
    +7 (980) Показать номер
    1-к кв. Калужская область, Калуга ул. 65 лет Победы, 29 (46.0 м) - Фото 1
    1-к кв. Калужская область, Калуга ул. 65 лет Победы, 29 (46.0 м) - Фото 2
    1-комнатная квартира, общая площадь 46м², кухня 8м²

    Продается комфортная 1-комнатная квартира в самом востребованном районе Калуги — Правобережье.Расположена на 5-м этаже кирпичного дома. Отличный вариант для тех, кто ценит удобство и развитую инфраструктуру.Особенности:Для вашего удобства разделена на...
    • 46 м²
    • 1-ком
    • 5/15 эт.
    5 500 000 Р
    Агент
    +7 (910) Показать номер
    1-комнатная квартира: Калуга, улица 65 лет Победы, 29 (46 м) - Фото 1
    1-комнатная квартира: Калуга, улица 65 лет Победы, 29 (46 м) - Фото 2
    1-комнатная квартира, общая площадь 46м², жилая 29м², кухня 12м²

    Продается комфортная 1-комнатная квартира в самом востребованном районе Калуги — Правобережье.Расположена на 5-м этаже кирпичного дома. Отличный вариант для тех, кто ценит удобство и развитую инфраструктуру.Особенности:Для вашего удобства разделена на...
    • 46 м²
    • 1-ком
    • 5/15 эт.
    5 500 000 Р
    Агент
    +7 (915) Показать номер
    1-комнатная квартира: Калуга, Хрустальный переулок, 29 (39 м) - Фото 1
    1-комнатная квартира: Калуга, Хрустальный переулок, 29 (39 м) - Фото 2
    1-комнатная квартира, общая площадь 39м², жилая 18м², кухня 9м²

    Большая 1-комнатная квартира с прекрасным панорамным видом в ЖК «Черёмушки — современный дом 2021 года постройки — удобная планировка с лоджией — до центра города всего 10 минут на автомобиле Свежий монолитный дом 2021 года постройки. Квартира не угловая,...
    • 39 м²
    • 1-ком
    • 20/21 эт.
    5 500 000 Р
    Агент
    +7 (980) Показать номер

    Не нашли подходящего объявления?

    Оставьте заявку, и наши риэлторы подберут квартиру в районе Калуги

    (0)