Информация об помещении

2
Этаж

Состояние и оснащение

Количество этажей
3
Подробнее в telegram

Помещение свободного назначения в Калужская область, Калуга ул. ...

Предлагается к продаже 212.3 кв. метра площадей, расположенных на втором этаже трехэтажного здания по ул. Плеханова. Рядом с новым Центральным рынком и улицами Кирова, Достоевского, Дзержинского, Марата . Помещение выгодно расположено в центре города, рядом с новым Центральным рынком и улицами Кирова, Достоевского, Дзержинского, Марата ,в окружении жилых многоквартирных домов .В помещении сделан качественный ремонт. Перед дверью проходит высокий пешеходный и автомобильный трафик, что выгодно для привлечения новых клиентов. Обращайтесь с вопросами по условиям продажи по телефону. Номер объекта: 1/555744/18121

Подробнее в telegram
    Похожие предложения
    Помещение свободного назначения в Калужская область, Калуга Московская ... - Фото 1
    Помещение свободного назначения в Калужская область, Калуга Московская ... - Фото 2
    ОТ СОБСТВЕННИКА. БЕЗ КОМИССИИ.Продается помещение свободного назначения 205 кв.м по адресу г.Калуга, ул.Московская, д.247.- 1 этаж;- выполнен ремонт;- свободная планировка;- отдельный вход непосредственно с ул.Московской;- высокие потолки 3,5 м;- кондиционеры;-...
    • 1/3 эт.
    17 000 000 Р
    Агент
    +7 (980) Показать номер
    Помещение свободного назначения в Калужская область, Калуга ул. ... - Фото 1
    Помещение свободного назначения в Калужская область, Калуга ул. ... - Фото 2
    Арт.Продам помещение 324 м2 в историческом центре, на улице Пушкина 1/20. Коммерческое помещение на 3 этаже - 324м2, два входа/ выхода, плюс доля подвального помещения (отдельный вход), плюс доля земельного участка - парковки в историческом центре города....
    • 3/3 эт.
    17 000 000 Р
    Агент
    +7 (919) Показать номер
    Помещение свободного назначения в Калужская область, Калуга ул. ... - Фото 1
    Помещение свободного назначения в Калужская область, Калуга ул. ... - Фото 2
    Арт.Вашему вниманию представлено коммерческое помещение 147 кв.м. по адресу Добровольского 49.Преимущества объекта:• КИРПИЧНЫЙ ДОМ 2005 года постройки • ИНДИВИДУАЛЬНОЕ ОТОПЛЕНИЕ • Центр города • Хороший пеший и автомобильный трафик ( рядом большое количество...
    • 1/5 эт.
    17 000 000 Р
    Агент
    +7 (910) Показать номер
    Помещение свободного назначения в Калужская область, Калуга ул. ... - Фото 1
    Помещение свободного назначения в Калужская область, Калуга ул. ... - Фото 2
    Предлагается к продаже, нежилое помещение свободного назначения, общей площадью 250 кв.м , расположенное на 3 этаже, 4-х этажного кирпичного здания, по ул. Кутузова, в историческом центре города. помещение без внутренней отделки, осуществлена разводка...
    • 3/4 эт.
    16 500 000 Р
    Агент
    +7 (910) Показать номер
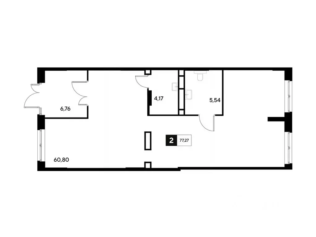
    Помещение свободного назначения в Калужская область, Калуга Космопарк ... - Фото 1
    Помещение свободного назначения в Калужская область, Калуга Космопарк ... - Фото 2
    В реализации — коммерческое помещение свободного назначения в литере 3.2 общей площадью 77.27 кв.м. на 1 этаже от застройщика DOGMA в жилом квартале Космопарк , который расположен в г. Калуга.Жилой квартал Космопаркасположен в Ленинском округе Калуги,...
    • 1/25 эт.
    17 772 100 Р
    Агент
    +7 (910) Показать номер

    Не нашли подходящего объявления?

    Оставьте заявку, и наши риэлторы подберут псн в районе Калуги

    (0)