Информация об помещении

1
Этаж

Состояние и оснащение

Количество этажей
9
Подробнее в telegram

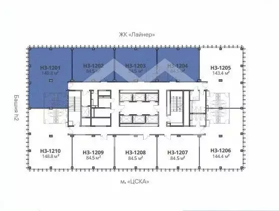
Помещение свободного назначения в Калужская область, Калуга Азаровская ...

Продажа 9-ти этажного офисного комплекса расположенного на северном въезде в город. Здание капитальное общей площадью 4947 кв.м., со всеми необходимыми коммуникациями: теплоцентраль, горячую и холодную воду, электричество. Земельный участок 825 кв.м. под комплексом в собственности.На этажах кабинетное расположение помещений, на 2 этаже сделано одно общее помещение.Место имеет прекрасный вид - его можно наблюдать с моста перед ул. Азаровской при въезде в город, а также с путепровода при выезде из города. Расположение этого объекта обеспечивает удобную транспортную развязку, а также наличие остановок всех видов городского транспорта и железнодорожной станции Азарово всего в 100 метрах. На участке, где расположен этот корпус, есть возможность создать большую парковку. Общая площадь административного корпуса составляет 4947 кв.м., что позволяет использовать его в качестве гостиницы на въезде в город или для размещения помещений любого назначения.Почему нужно работать с Федеральной компанией Этажи ?- Юридическое сопровождение сделки и гарантия финансовой защиты- Уникальные условия на услуги страхования объекта- Самые низкие ипотечные ставки- Новостройка без комиссии- Программа лояльности Этажи Бонус для клиентов компании Этажи от партнеров .Код пользователя: 124239Номер в базе: 2968979

Подробнее в telegram
    Похожие предложения
    Помещение свободного назначения в Ростовская область, Ростов-на-Дону ... - Фото 1
    Помещение свободного назначения в Ростовская область, Ростов-на-Дону ... - Фото 2
    Арт.Продается коммерческое помещение от застройщика. Без комиссии для покупателей Это уникальное предложение для тех, кто ищет идеальное местоположение для развития своего бизнеса в самом сердце Ростова-на-Дону. Здесь вы найдете всё необходимое для успешного...
    • 1/10 эт.
    92 177 050 Р
    Агент
    +7 (918) Показать номер
    Помещение свободного назначения в Ростовская область, Ростов-на-Дону ... - Фото 1
    Помещение свободного назначения в Ростовская область, Ростов-на-Дону ... - Фото 2
    Продается коммерческое помещение в клубном квартале 1799 от застройщика Федеральный девелопер Неометрия .Это уникальное предложение для тех, кто ищет идеальную площадку для развития своего бизнеса в самом сердце Ростова-на-Дону. Здесь вы найдете всё...
    • 1/10 эт.
    91 870 040 Р
    Агент
    +7 (989) Показать номер
    Помещение свободного назначения в Москва Рождественский бул., 10/7С1 ... - Фото 1
    Помещение свободного назначения в Москва Рождественский бул., 10/7С1 ... - Фото 2
    Лот 4736.Продажа помещения под общепит. ЦАО, Мещанский р-н, Рождественский бульвар, д. 10/7, строение 1. Пять минут пешком от метро Трубная, Кузнецкий мост, Чистые пруды, Цветной бульвар. Первая линия Бульварного кольца, исторический центр города, деловое...
    • -1/4 эт.
    92 000 000 Р
    Агент
    +7 (985) Показать номер
    Помещение свободного назначения в Калининградская область, Светлогорск ... - Фото 1
    Помещение свободного назначения в Калининградская область, Светлогорск ... - Фото 2
    Продается помещение свободного назначения площадью 102,2 кв.м на первом этаже в готовом (сданном) апарт-комплексе Promenade (Променад), входящем с состав гостинично-оздоровительно комплекса, включающего в себя отель международного класса, спа-комплекс,...
    • 1/5 эт.
    91 980 000 Р
    Агент
    +7 (911) Показать номер
    Помещение свободного назначения в Москва ул. Дмитрия Ульянова, 27 (335 ... - Фото 1
    Помещение свободного назначения в Москва ул. Дмитрия Ульянова, 27 (335 ... - Фото 2
    Данные получены с сайта ГИС Торги.Аукцион в электронной форме по продаже нежилого помещения, закреплённого за КП УГС на праве оперативного управления, по адресу: г. Москва,ул. Дмитрия Ульянова, д. 27, помещение L, этаж 1, площадью 335,30 кв. м, кадастровый...
    • 21 этаж
    91 462 000 Р
    Агент
    +7 (933) Показать номер

    Не нашли подходящего объявления?

    Оставьте заявку, и наши риэлторы подберут псн в районе Калуги

    (0)