Информация об помещении

1
Этаж

Состояние и оснащение

Количество этажей
1
Подробнее в telegram

Помещение свободного назначения в Калужская область, Калуга ул. ...

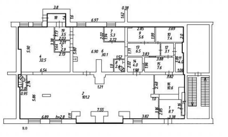
Сбер А предлагает к реализации нежилое помещение площадью 243,9 кв.м., расположенного по адресу: Калужская область, г. Калуга, ул. Луначарского, д. 9/2.Аренда посредством проведения торгов на электронной площадке Сбербанк-АСТ.Номер процедуры: SBRСобственник: Среднерусский банк ПАО СбербанкНежилое помещение,общая площадь: 243,9 кв. мэтаж: 1кадастровый номер: 40:26:000323:1055Дополнительная информация, документы и условия реализации указаны на площадке в разделе Документы .По всем вопросам, связанным с лотом, обращайтесь в рабочее время по телефону с 09: 00 до 18: 00 по МСК.

Подробнее в telegram
    Похожие предложения
    Помещение свободного назначения в Калужская область, Калуга Звездная ... - Фото 1
    Помещение свободного назначения в Калужская область, Калуга Звездная ... - Фото 2
    Продается нежилое помещение свободного назначения по ул. Звездной, общей площадью 293,9 кв.м, находящееся на 1 этаже многоквартирного жилого дома.Помещение находится в отличном состоянии:в наличии все центральные коммуникации, оформлены все договоры со...
    • 1/9 эт.
    23 500 000 Р
    Агент
    +7 (910) Показать номер
    Помещение свободного назначения в Калужская область, Калуга д. ... - Фото 1
    Помещение свободного назначения в Калужская область, Калуга д. ... - Фото 2
    В продаже объект двойного назначения: жилой дом с земельным участком и незавершенный объект строительства, который задумывался как здание под автосервис. Площадь земельного участка 18,7 соток. Здание под автосервис 300 м2, размеры 10м на 30м. Рассчитано...
    • 1/1 эт.
    22 000 000 Р
    Агент
    +7 (980) Показать номер
    Помещение свободного назначения в Калужская область, Калуга ул. ... - Фото 1
    Помещение свободного назначения в Калужская область, Калуга ул. ... - Фото 2
    Код объекта: 1598114. Уникальное предложение для вашего бизнеса в Калуге: продаётся коммерческое помещение свободного назначения по адресу улица Пушкина, 1/20. Просторное и функциональное пространство площадью 100,6 кв. м на первом этаже трёхэтажного...
    • 1/3 эт.
    24 000 000 Р
    Агент
    +7 (910) Показать номер
    Помещение свободного назначения в Калужская область, Калуга ул. ... - Фото 1
    Помещение свободного назначения в Калужская область, Калуга ул. ... - Фото 2
    В продаже от застройщика ЖК Космопарк г. Калуга, Литер Срок сдачи: 1 кв. 2027, общей площадью 100.06 кв.м.,на 1 этаже. Жилой квартал Космопаркасположен вЛенинском округе Калуги, на левом берегу Оки, недалеко от центра города. Вокруг развитый район:...
    • 1/25 эт.
    23 013 800 Р
    Агент
    +7 (910) Показать номер
    Помещение свободного назначения в Калужская область, Калуга ул. ... - Фото 1
    Помещение свободного назначения в Калужская область, Калуга ул. ... - Фото 2
    В продаже от застройщика ЖК Космопарк г. Калуга, Литер Срок сдачи: 1 кв. 2027, общей площадью 100.41 кв.м.,на 1 этаже. Жилой квартал Космопаркасположен вЛенинском округе Калуги, на левом берегу Оки, недалеко от центра города. Вокруг развитый район:...
    • 1/21 эт.
    23 094 300 Р
    Агент
    +7 (910) Показать номер

    Не нашли подходящего объявления?

    Оставьте заявку, и наши риэлторы подберут псн в районе Калуги

    (0)