Информация об помещении

1
Этаж

Состояние и оснащение

Количество этажей
6
Подробнее в telegram

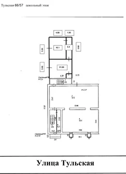
Помещение свободного назначения в Калужская область, Калуга ...

Помещение свободного назначения, в районе между областной Стоматологией и Центральным рынком , имеет асфальтобетонные подьездные пути, зону погрузки, отдельный вход и расположено в офисно 5- ти этажном здании на первом этаже Отдельный вход в помещение с улицы.Огороженная территория входной группы с беседкой барбекю и зоной отдыха внутри .Парковочные места внутри ограждения для сотрудников.Имеется мокрая зонаИмеется возможности сдачи в аренду частями, под различные виды деятельности в том числе производство, кальянная, склад, офис, салон, Выгодное расположение вблизи гипермаркета Глобус, проезжей части и центрального рынка обеспечит арендаторы отличный пешеходный и Автомобильный трафик, имеется возможность размещения вывески

Подробнее в telegram

    Не нашли подходящего объявления?

    Оставьте заявку, и наши риэлторы подберут псн в районе Калуги

    (0)