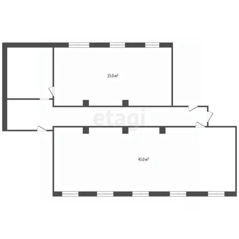
Помещение площадью 70 кв. м расположено на улице Зерновой и идеально подходит для малого бизнеса или профессиональной деятельности. Пространство разделено на два кабинета — 25 и 45 кв. м, что позволяет гибко организовать рабочие зоны: разместить отдельные офисы, переговорную или совместить их под единый рабочий коллектив. Возможна аренда как всего помещения, так и отдельных кабинетов, что делает предложение удобным для стартапов, фрилансеров или компаний, которым требуется дополнительное пространство. Помещение сдаётся без мебели, что даёт свободу для индивидуального обустройства под конкретные задачи. Здание отличается удобной транспортной доступностью: подъезд осуществляется с улицы Зерновой, далее — 500 метров по грунтовой дороге, что обеспечивает беспрепятственный доступ для сотрудников и клиентов. Общий санузел на этаже содержится в чистоте и исправном состоянии. Помещение подходит для длительной аренды от одного годаРасположение объекта позволяет быстро добраться до центра города, при этом арендная ставка остаётся конкурентной по сравнению с аналогичными предложениями в более оживлённых районах. Отсутствие скрытых платежей и прозрачные условия аренды делают это помещение выгодным вариантом для предпринимателей, ценящих рациональное использование бюджета. Пространство подходит для юридических, консалтинговых, IT-компаний или творческих студий, которым важно сочетание функциональности, доступности и возможности адаптации под свои нужды.Код пользователя: 37190Номер в базе: 7785618
Оставьте заявку, и наши риэлторы подберут псн в районе Калуги