Информация об помещении

2
Этаж

Состояние и оснащение

Количество этажей
2
Подробнее в telegram

Помещение свободного назначения в Калужская область, Калуга ул. ...

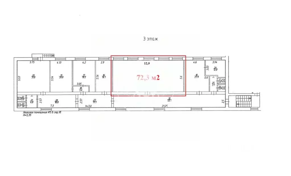
Код объекта: 1760114.Предлагается в аренду помещение 125,4 кв.м, на 2 этаже по адресу ул. Дзержинского, 58к3.Можно использовать для производства. Коммунальные услуги оплачиваются отдельно.Удобное расположение в самом центре города. Подъезд с ул. Дзержинского и с ул. Московской.Не упустите выгодное предложение

Подробнее в telegram
    Похожие предложения
    Помещение свободного назначения в Калужская область, Калуга ул. ... - Фото 1
    Помещение свободного назначения в Калужская область, Калуга ул. ... - Фото 2
    Артикул: 539640 Сдается в аренду коммерческое помещение свободного назначения по адресу: улица Дзержинского, 43, Калуга Вы можете погулять по объекту через виртуальный тур. Подробности в видео или запросите ссылку у нас.Это помещение станет идеальным...
    • 2/3 эт.
    45 000 Р
    Агент
    +7 (910) Показать номер
    Помещение свободного назначения в Калужская область, Калуга ул. ... - Фото 1
    Помещение свободного назначения в Калужская область, Калуга ул. ... - Фото 2
    Сдаются блок 72 кв.м .Нежилое помещение расположенный в центральной части города Калуга.Отдельный вход. Свой ключ от двери. Посещение в любое время.Присутствует старенький ремонт, возможно сделать легкую косметику силами арендатора (засчитывается в арендные...
    • 3/3 эт.
    44 000 Р
    Агент
    +7 (919) Показать номер
    Помещение свободного назначения в Калужская область, Калуга ул. ... - Фото 1
    Помещение свободного назначения в Калужская область, Калуга ул. ... - Фото 2
    Сдается нежилое помещение 69,9 кв.м. на полуцокольном этаже 3-этажного жилого дома в тихой части исторического центра города (пересечение улиц Марата и Дарвина).Имеет отдельный вход.Конструктив:- два основных помещения 44,1 кв.м (наличие трех окон позволяет...
    • 1/3 эт.
    45 000 Р
    Агент
    +7 (980) Показать номер
    Помещение свободного назначения (115 м) - Фото 1
    Помещение свободного назначения (115 м) - Фото 2
    ОТ СОБСТВЕННИКА. БЕЗ КОМИССИИ. Сдаётся помещение свободного назначения 115 кв.м. г.Калуга, ул.Тульская, 189 (Лесоторговая база). - цокольный этаж нежилого торгово-офисного здания; - высокие потоки 3 м; - свободная планировка (ровная прямоугольная форма);...
    • 2 этажа
    45 000 Р
    Агент
    +7 (919) Показать номер
    Помещение свободного назначения в Калужская область, Калуга ул. ... - Фото 1
    Помещение свободного назначения в Калужская область, Калуга ул. ... - Фото 2
    Сдаются офисы в БЦ Московский БЕЗ КОМИССИИ АГЕНТСТВА. Класс В+, 3 лифта, система вентиляции и кондиционирования, 5 интернет провайдеров, конференц-зал на 60 человек (видеопроектор, акустическая система, флипчарт, возможность проведения фокус-групп, кулер),...
    • 7/7 эт.
    44 500 Р
    Агент
    +7 (980) Показать номер

    Не нашли подходящего объявления?

    Оставьте заявку, и наши риэлторы подберут псн в районе Калуги

    (0)