Россия, Калужская область, Калуга, проезд 1-й Тарутинский, 4

Информация об помещении

1
Этаж

Состояние и оснащение

Количество этажей
2
Подробнее в telegram

Помещение свободного назначения в Калужская область, Калуга проезд 1-й ...

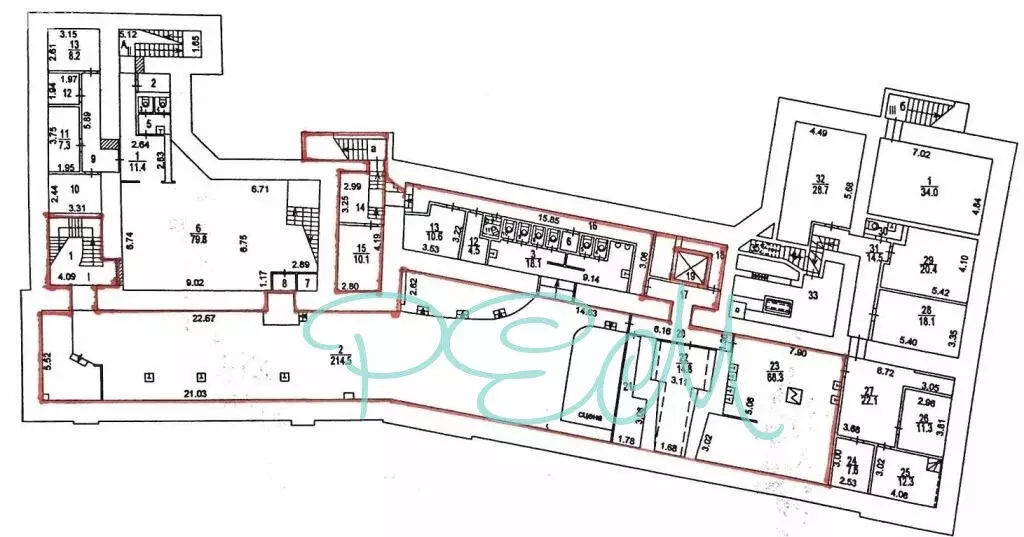
Предлагаются в аренду отдельно стоящее двухэтажное здание площадью 1413,9 м2, расположенное по адресу: г. Калуга, 1-й Тарутинский проезд, 4 (мкр. Малинники). Здание новое, готово к эксплуатации. Свободная планировка, черновая отделка. Заведена вода, электричество, канализация. Отопление автономное газовое, установлены котлы. Удобное расположение с хорошими подъездными путями. Большая прилегающая территория с собственной парковкой. Огороженная территория, круглосуточная охрана, смонтирована система видеонаблюдения.Потенциальное использование: Легкое или среднее производство. Медицинское или образовательное учреждение. Офис компании.Рассмотрим любые предложенияКод пользователя: 6787Номер в базе:

Подробнее в telegram
    Похожие предложения
    Помещение свободного назначения (1413.9 м) - Фото 1
    Помещение свободного назначения (1413.9 м) - Фото 2
    Предлагаются в аренду отдельно стоящее двухэтажное здание площадью 1413,9 м2, расположенное по адресу: г. Калуга, 1-й Тарутинский проезд, 4 (мкр. Малинники). Здание новое, готово к эксплуатации. Свободная планировка, черновая отделка. Заведена вода,...
    • 1/2 эт.
    630 000 Р
    Агент
    +7 (909) Показать номер
    Помещение свободного назначения в Калужская область, Калуга ш. ... - Фото 1
    Помещение свободного назначения в Калужская область, Калуга ш. ... - Фото 2
    Номер в базе Агентства 24258 Сдается в долгосрочную аренду 2-х этажное нежилое помещение свободного назначения по ул.Грабцевское шоссе микрорайон Тайфун под любой вид коммерческой деятельности: офис, медицинские и оздоровительные услуги, центр...
    • 1/4 эт.
    631 600 Р
    Агент
    +7 (910) Показать номер
    Помещение свободного назначения в Башкортостан, Нефтекамск ул. Ленина, ... - Фото 1
    Помещение свободного назначения в Башкортостан, Нефтекамск ул. Ленина, ... - Фото 2
    Сдается помещение свободного назначения, площадью 450.80 кв.м, расположенное по адресу: Нефтекамск г, Ленина ул, 15 -Самый центр города;-Встроенно-пристроенное помещение;-Активный пешеходный и автомобильный трафик;-2 отдельных входа;-Витражный фасад;-Свободная...
    • 1/9 эт.
    631 120 Р
    Агент
    +7 (917) Показать номер
    Помещение свободного назначения в Владимирская область, Владимир ул. ... - Фото 1
    Помещение свободного назначения в Владимирская область, Владимир ул. ... - Фото 2
    Код объекта: 1769015.Аренда коммерческого помещения свободного назначения в городе Владимир Предлагаем в аренду современное коммерческое помещение по адресу: Ноябрьская улица, 73. Объект построен в 2022 году, имеет два входа и свободный доступ, что обеспечивает...
    • 1/2 эт.
    630 000 Р
    Агент
    +7 (915) Показать номер
    Помещение свободного назначения (423.4 м) - Фото 1
    Помещение свободного назначения (423.4 м) - Фото 2
    Арт.. ДВА ОТДЕЛЬНЫХ ВХОДА СВОИ САНУЗЛЫ И МОКРЫЕ ТОЧКИ БЕЗ КОМИССИИ. ПРЯМАЯ АРЕНДА.Помещение свободного назначения в ЦАО.Адрес: Потаповский пер., д. 5, стр. 2.Особняк Ильинские ворота. Первая линия, исторический центр Москвы.В аренду с КОНЦА МАРТА 2026...
    • 1/3 эт.
    634 500 Р
    Агент
    +7 (917) Показать номер

    Не нашли подходящего объявления?

    Оставьте заявку, и наши риэлторы подберут псн в районе Калуги

    (0)