Информация об помещении

цоколь
Этаж

Состояние и оснащение

Количество этажей
4
Подробнее в telegram

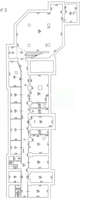
Помещение свободного назначения в Калужская область, Калуга ул. ...

Арт.Вашему вниманию представлена АРЕНДА КОММЕРЧЕСКОГО ПОМЕЩЕНИЯ по адресу Пухова 25-27Преимущества объекта:• БЕЗ КОМИССИИ АГЕНТСТВА• Торговая площадь на территории мини- рынка• Назначение свободное, каждый род деятельности возможно обсудить • Возможно так же обсудить увеличение или уменьшение арендной площади• Есть мокрая точка• Можно обсудить отдельный, изолированный вход• Своё место для рекламы на фасаде• Небольшая наземная парковка• Хороший пеший и автомобильный трафик• В данном секторе множество якорных арендаторов• У вас есть возможность взять арендные каникулы• Вы можете стать первыми арендаторами в предложенном мини-рынке на районе. Успейте забронировать помещение под свой бизнес. Идеально подойдёт для тех кто хочет открыть:ПВЗ, магазин продовольственных или непродовольственных товаров, спортивная секция, студия танцев и т.д.Остались вопросы? Звоните Записывайтесь на показ

Подробнее в telegram
    Похожие предложения
    Помещение свободного назначения в Калужская область, Калуга ул. ... - Фото 1
    Помещение свободного назначения в Калужская область, Калуга ул. ... - Фото 2
    Арт.Вашему вниманию представлена АРЕНДА КОММЕРЧЕСКИХ ПОМЕЩЕНИЙ по адресу Пухова 25-27Преимущества объекта:• Помещение в оборудованном мини- торговом центре• Назначение свободное, каждый род деятельности возможно обсудить • Есть мокрая точка• Можно обсудить...
    • -1/4 эт.
    84 113 Р
    Агент
    +7 (910) Показать номер
    Помещение свободного назначения в Калужская область, Калуга ул. ... - Фото 1
    Помещение свободного назначения в Калужская область, Калуга ул. ... - Фото 2
    Сдаётся в аренду просторное помещение в центре города. Площадью 167 квадратный метр. Идеально подходит для офиса или торгового зала благодаря свободной планировке и возможности адаптации под любой вид деятельности.г.Калуга, ул.Пушкина д.6 А.В нежилом...
    • -1/3 эт.
    85 000 Р
    Агент
    +7 (980) Показать номер
    Помещение свободного назначения в Калужская область, Калуга ул. ... - Фото 1
    Помещение свободного назначения в Калужская область, Калуга ул. ... - Фото 2
    Арт.Сдается в аренду на длительный срок коммерческое помещение.Адрес объекта - г. Калуга, ул. Дзержинского д. 83.Помещение расположено в центральной части г. Калуги.Высокий пешеходный и автомобильный трафик.Отдельный вход, 1 этаж Место под рекламу на...
    • 1/5 эт.
    85 000 Р
    Агент
    +7 (980) Показать номер
    Помещение свободного назначения в Калужская область, Калуга ул. ... - Фото 1
    Помещение свободного назначения в Калужская область, Калуга ул. ... - Фото 2
    Сдается помещение БЕЗ КОМИССИИ АГЕНТСТВА. 1-я линия ул. Пушкина (центр города), рядом остановка общественного транспорта, два отдельных входа, цокольный этаж, высокие потолки (3м), есть окна, все коммуникации, ремонт под арендатора, + к/у.
    • -1/2 эт.
    85 000 Р
    Агент
    +7 (980) Показать номер
    Помещение свободного назначения в Калужская область, Обнинск ул. ... - Фото 1
    Помещение свободного назначения в Калужская область, Обнинск ул. ... - Фото 2
    Объект 7. Сдается в аренду на длительный срок помещение в кирпичномдоме в центре города за ТРЦ Триумф Плаза.Свой отдельный вход, 4 кабинета разной площади, санузел, 2кондиционера и мебель, которая на фото. В двух кабинетах есть мокрая точка.Можно подключить...
    • 1/14 эт.
    85 000 Р
    Агент
    +7 (910) Показать номер

    Не нашли подходящего объявления?

    Оставьте заявку, и наши риэлторы подберут псн в районе Калуги

    (0)