Информация об помещении

1
Этаж

Состояние и оснащение

Количество этажей
5
Подробнее в telegram

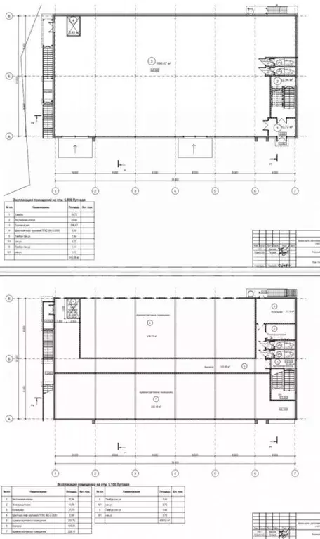
Помещение свободного назначения в Калужская область, Калуга ул. ...

Арт.Предлагаем в аренду современное помещение с обновленной инфраструктурой. Все работы завершены: новая сантехника, электрика, система пожарной сигнализации. Электрическая мощность - 150 кВт.Помещение оснащено водопроводом диаметром 100 мм и централизованной канализацией. Установлены новые алюминиевые окна и двери, а стены армированы и оштукатурены. На первом этаже уложен керамогранит, а фасад выполнен из пожаробезопасного материала.Здание расположено на первой линии по адресу: пересечение улиц Железняки и Комсомольская роща, обеспечивая отличную транспортную доступность. Остановка общественного транспорта находится прямо у входа, а до железнодорожного и автовокзала Калуга-1 всего 10 минут пешком.На территории есть парковка на более чем 30 мест перед зданием и 40 мест внутри. Соседство с более чем 100 предприятиями создает дополнительные возможности для бизнеса.Звоните по номеру, указанный в объявлении для уточнения остальных вопросов и оперативного показа.

Подробнее в telegram
    Похожие предложения
    Помещение свободного назначения в Московская область, Люберцы ... - Фото 1
    Помещение свободного назначения в Московская область, Люберцы ... - Фото 2
    Сдается помещение свободного значения. Виды разрешенного использования:• хранение автотранспорта 2.7.1; • размещение гаражей для собственных нужд 2.7.2; • коммунальное обслуживание 3.1; • предоставление коммунальных услуг 3.1.1; • административные здания...
    • 1/2 эт.
    649 900 Р
    Агент
    +7 (980) Показать номер
    Помещение свободного назначения в Удмуртия, Ижевск ул. Малая Луговая, ... - Фото 1
    Помещение свободного назначения в Удмуртия, Ижевск ул. Малая Луговая, ... - Фото 2
    Сдается в аренду отдельно стоящее здание, новый торгово-офисный центр на Маяковке, фактический адрес: улица малая луговая. Своя асфальтированная парковка. Общая квадратура двух этажей 1282 кв. м. Первый этаж 2 санузла, один зал общей площадью 597 кв....
    • 1/2 эт.
    646 000 Р
    Агент
    +7 (982) Показать номер
    Помещение свободного назначения в Краснодарский край, Краснодар ... - Фото 1
    Помещение свободного назначения в Краснодарский край, Краснодар ... - Фото 2
    Объект 4332. Аренда коммерческого помещения 2236 м — возможно поделить по 1118м2 склад, магазин, торговая площадь, производство Большая площадь 2236м — идеально для автосалона, склада, магазина, торговой площадки, производства, логистики.Высокие потолки...
    • 1/1 эт.
    660 000 Р
    Агент
    +7 (918) Показать номер
    Помещение свободного назначения в Ульяновская область, Новоульяновск ... - Фото 1
    Помещение свободного назначения в Ульяновская область, Новоульяновск ... - Фото 2
    Сдаётся в аренду помещение свободного назначения площадью 650 кв.м. Находится на цокольном этаже. Можно арендовать часть помещения. За более подробной информацией позвоните по телефону, указанному в объявлении, или напишите сообщение в любое удобное для...
    • -1/5 эт.
    650 000 Р
    Агент
    +7 (917) Показать номер
    Помещение свободного назначения в Новосибирская область, Новосибирск ... - Фото 1
    Помещение свободного назначения в Новосибирская область, Новосибирск ... - Фото 2
    Код объекта: 2071226.Сдается в аренду коммерческое помещение свободного назначенияВидеообзор смотрите по ссылке.Проведены коммуникации: водоснабжение, отопление, вентиляция, пожарная сигнализация.Отделка позволяет приступить к обустройству внутреннего...
    • 1/1 эт.
    649 770 Р
    Агент
    +7 (913) Показать номер

    Не нашли подходящего объявления?

    Оставьте заявку, и наши риэлторы подберут псн в районе Калуги

    (0)