Информация об помещении

цоколь
Этаж

Состояние и оснащение

Количество этажей
1
Подробнее в telegram

Помещение свободного назначения в Калужская область, Калуга ул. ...

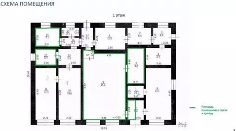
Номер в базе Агентства 25044 Предлагаю в аренду помещение 15 кв.м. в цокольном этаже в доме 31 по ул. Фомушина. Общая площадь всего помещения 210,8 кв.м. Все помещения без окон.Первая линия. Входная группа отлично видна с дороги. Большие окна входной группы. Помещение находится в пристроенной к жилому дому коммерческой части. ЦОКОЛЬ.Высота потолков 220 см.Помещение может использоваться для любых коммерческих целей. Помещение подойдет под парикмахерскую (можно сделать парикмахерскую даже с залом ожидания), массажный кабинет, кабинет эпиляции, кабинет косметолога и др. Есть возможность провести мокрые точки. Есть комната ожидания для посетителей. Есть отдельная (общая для арендаторов) комната приёма пищи.Все коммуникации - отопление, горячая и холодная вода, два сан.узла. Помещение оборудовано приточно- вытяжной вентиляцией, рассчитанной на одновременное нахождение в помещениях большого количества людей. Разведен интернет (Ростелеком). Установлено видеонаблюдение во всех помещениях. Предприниматель, работаю без НДС. Стоимость указана с учетом коммунальных платежей. Работаю и с самозанятыми.

Подробнее в telegram

    Не нашли подходящего объявления?

    Оставьте заявку, и наши риэлторы подберут псн в районе Калуги

    (0)