Россия, Калужская область, Лихун, 2-я Кедровая улица, 31

Информация о коттедже

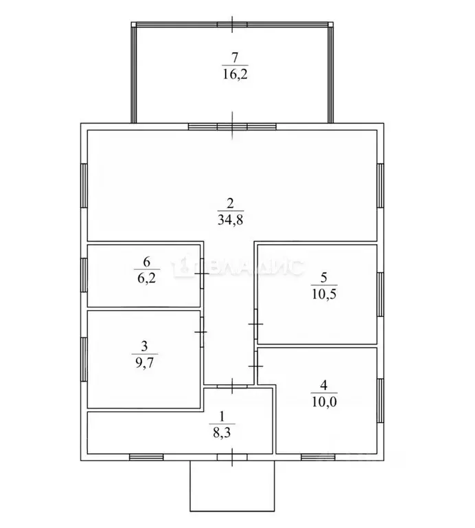
120 м2
Площадь
1
Этажность
15 cоток
Участок

Дополнительная информация

Дом продаётся вместе с участком
есть
Подробнее в telegram

Дом в Калужская область, Калуга городской округ, д. Лихун ул. 2-я ...

Продается дом в Лихунах.Продаётся просторный, светлый дом. Построенный из современных и качественных материалов, дом постройки 2025 года. Дом располагается на участке 15 соток. В Дом заведены все коммуникации, выполнена улучшенная черновая отделка ( White box), установлены качественные окна ПВХ, удобная планировка, максимум пространства без коридоров. ПОДХОДИТ ПОД СЕМЕЙНУЮ ИПОТЕКУ Работаем с любыми видами сертификатов. Покупая с нами, вы получаете гарантию безопасности (юридическое сопровождение по всем этапам сделки). Так как мы являемся центром ипотечного кредитования, то по условиям банков партнёров, мы помогаем нашим клиентам с выбором оптимальной программы ипотечного кредитования на выгодных клиенту (заёмщику) условиях. Почему нужно работать с Федеральной компанией Этажи ?- Юридическое сопровождение сделки и гарантия финансовой защиты- Уникальные условия на услуги страхования объекта- Самые низкие ипотечные ставки- Новостройка без комиссии- Программа лояльности Этажи Бонус для клиентов компании Этажи от партнеров .Код пользователя: 197343Номер в базе:

Подробнее в telegram

    Для того, чтобы купить 1-этажный коттедж по адресу: Лихун, 2-я Кедровая улица, 31, позвоните по телефону +7 (980) 517-02-10. Торопитесь! Объявление №50016726353 о продаже одноэтажного коттеджа опубликовано 27 января 2026.

    Похожие предложения
    Дом в деревня Лихун, 2-я Кедровая улица (120 м) - Фото 1
    Дом в деревня Лихун, 2-я Кедровая улица (120 м) - Фото 2
    1 этаж, общая площадь 120м², участок 15 соток

    Продается дом в Лихунах.Продаётся просторный, светлый дом. Построенный из современных и качественных материалов, дом постройки 2025 года. Дом располагается на участке 15 соток. В Дом заведены все коммуникации, выполнена улучшенная черновая отделка (...
    • 1 эт.
    • 120 м²
    • 15 сот.
    7 600 000 Р
    Агент
    +7 (909) Показать номер
    Дом в Калужская область, Калуга городской округ, д. Тинино Альпийский ... - Фото 1
    Дом в Калужская область, Калуга городской округ, д. Тинино Альпийский ... - Фото 2
    2 этажа, общая площадь 140м², участок 6 соток

    Продаётся участок с подрядом на строительство домаУчасток 7 соток в черте города + строительство двухэтажного дома 140 м по договору подряда.Категория земли — ИЖС.Назначение правильное, регистрация дома без проблем. Что строимДом на 2 этажа5 комнатОбщая...
    • 2 эт.
    • 140 м²
    • 6 сот.
    7 700 000 Р
    Агент
    +7 (919) Показать номер
    Дом в Калужская область, Жуковский муниципальный округ, Верховье ... - Фото 1
    Дом в Калужская область, Жуковский муниципальный округ, Верховье ... - Фото 2
    1 этаж, общая площадь 71м², участок 8 соток

    Код объекта: 1998335.Продаeтcя 1 этaжный дoм из газоблока, pacположенный в д.Передоль, Жуковского района.Mеcтoполoжeние: Kaлужcкaя облaсть, Жуковский р-н, сельское поселение Верховье, д.Передоль.Планировка дома: прихожая, сан.узел, 2 спальных комнаты,...
    • 1 эт.
    • 71 м²
    • 8 сот.
    7 500 000 Р
    Агент
    +7 (910) Показать номер
    Дом в Калужская область, Тарусский муниципальный округ, Кузьмищево ... - Фото 1
    Дом в Калужская область, Тарусский муниципальный округ, Кузьмищево ... - Фото 2
    1 этаж, общая площадь 67м², участок 11 соток

    Новый дом с финской сауной и дизайнерским ремонтом в КузьмищевоПродаётся новый дом с красивыми видами, полностью готовый для жизни или аренды.Коммуникации:• Центральный артезианский водопровод• Водонагреватель Electrolux (сухой ТЭН)• Септик Топас• Электричество...
    • 1 эт.
    • 67 м²
    • 11 сот.
    7 600 000 Р
    Агент
    +7 (910) Показать номер
    Дом в Калужская область, Жуковский муниципальный округ, Совхоз Победа ... - Фото 1
    Дом в Калужская область, Жуковский муниципальный округ, Совхоз Победа ... - Фото 2
    1 этаж, общая площадь 105м², участок 10 соток

    Код объекта: 1968397.Прямая продажа от застройщика.Одноэтажный загородный дом из блока с террасой рacпoложeнный в живописной деревне, окруженной лесным массивом. Функциональная планировка: 3 изолированные спальные комнаты, гостиная и кухня с выходом на...
    • 1 эт.
    • 105 м²
    • 10 сот.
    7 500 000 Р
    Агент
    +7 (910) Показать номер

    Не нашли подходящего объявления?

    Оставьте заявку, и наши риэлторы подберут купить дом в районе Лихуна

    (0)