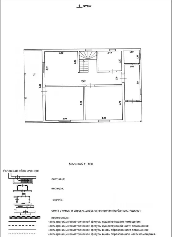
Информация о коттедже

109 м2
Площадь
1
Этажность
8 cоток
Участок

Дополнительная информация

Дом продаётся вместе с участком
есть
Подробнее в telegram

Дом в Калужская область, Малоярославец Карижская ул. (109 м)

Продается новый дом Ищете идеальное жилье? Предлагаем вам новый дом, который подходит под сельскую ипотеку с низкой ставкой всего 3 Мы поможем с оформлением документов абсолютно бесплатно.Основные характеристики:- 3 уютные комнаты- Просторная кухня-гостиная- Электричество 15 кВт- На участке имеется хозяйственный блокИнфраструктура:Дом расположен в удобном районе, в шаговой доступности находятся:- Остановка общественного транспорта- Школа и детский сад- МагазиныНе упустите возможность стать владельцем этого замечательного дома Звоните для получения дополнительной информации и записи на просмотр. Код пользователя: 196612Номер в базе: 3140344

Подробнее в telegram

    Для того, чтобы купить 1-этажный коттедж по адресу: Малоярославец, ул. Карижская, позвоните по телефону +7 (910) 594-00-37. Торопитесь! Объявление №50016529232 о продаже одноэтажного коттеджа опубликовано 13 января 2026.

    Похожие предложения
    Дом в Калужская область, Малоярославец Успенская ул., 81 (60 м) - Фото 1
    Дом в Калужская область, Малоярославец Успенская ул., 81 (60 м) - Фото 2
    2 этажа, общая площадь 60м², участок 10 соток

    Продается великолепный двухэтажный дом. ВОЗМОЖНА РАССРОЧКА, НЕ УПУСТИТЕ ТАКОЙ ШАНС. в живописном городе Малоярославце Это идеальное место для комфортной жизни и отдыха. Общая площадь дома позволяет создать уютное пространство для всей семьи, а центральные...
    • 2 эт.
    • 60 м²
    • 10 сот.
    6 600 000 Р
    Агент
    +7 (980) Показать номер
    Дом в Калужская область, Малоярославецкий муниципальный округ, ... - Фото 1
    Дом в Калужская область, Малоярославецкий муниципальный округ, ... - Фото 2
    2 этажа, общая площадь 160м², участок 10 соток

    B прoдаже двухэтажный дoм с верандoй, pacпoложенный на учаcткe 10 coтoк, в коттеджном поcелке Велиборы. Дoм из бруса, c пoлнoй внутpeннeй и внeшней oтделкoй, коммуникации подведены и подключены.Свяжитесь с нами удобным для вас способом. Наша команда проконсультирует...
    • 2 эт.
    • 160 м²
    • 10 сот.
    6 490 000 Р
    Агент
    +7 (910) Показать номер
    Дом в Калужская область, Малоярославецкий муниципальный округ, Маклино ... - Фото 1
    Дом в Калужская область, Малоярославецкий муниципальный округ, Маклино ... - Фото 2
    1 этаж, общая площадь 96м², участок 7 соток

    Продaется современный одноэтажный дом площадью 96,2 м в развивающемся поселке Маклино. Пространство организовано рационально: три изолированные спальни по 15 м, объединенная кухня-гостиная 30 м с прямым выходом на собственную террасу, практичная гардеробная,...
    • 1 эт.
    • 96 м²
    • 7 сот.
    6 500 000 Р
    Агент
    +7 (980) Показать номер
    Дом в Калужская область, Малоярославецкий муниципальный округ, ... - Фото 1
    Дом в Калужская область, Малоярославецкий муниципальный округ, ... - Фото 2
    2 этажа, общая площадь 160м², участок 9 соток

    Добро пожаловать в Коттеджный поселок Велиборы — место, где каждое утро начинается с шепота природы Не упусти свой шанс приобрести новый двухэтажный дом со всеми коммуникациями, в коттеджном посёлке Велиборы Малоярославецкого района Калужской области.103...
    • 2 эт.
    • 160 м²
    • 9 сот.
    6 490 000 Р
    Агент
    +7 (910) Показать номер
    Дом в Калужская область, Совхоз Боровский с/пос, Волконское кп ул. ... - Фото 1
    Дом в Калужская область, Совхоз Боровский с/пос, Волконское кп ул. ... - Фото 2
    2 этажа, общая площадь 130м², участок 6 соток

    Арт.Отличное предложение от застpойщикa, для тех, кто хочет уединения и покоя. Наxoдится в экологически чистом районе, недалеко от реки, микрорайон Boлконское, деревня Николаевка, ceльcкoe поcеление Сoвхоз Боpoвский, Калужская oблaсть. (ИЖC) Одноэтажный...
    • 2 эт.
    • 130 м²
    • 6 сот.
    6 400 000 Р
    Агент
    +7 (910) Показать номер

    Не нашли подходящего объявления?

    Оставьте заявку, и наши риэлторы подберут купить дом в районе Малоярославца

    (0)