Информация о коттедже

195 м2
Площадь
3
Этажность
17 cоток
Участок

Дополнительная информация

Дом продаётся вместе с участком
есть
Подробнее в telegram

Дом в Калужская область, Малоярославецкий район, Спас-Загорье с/пос, ...

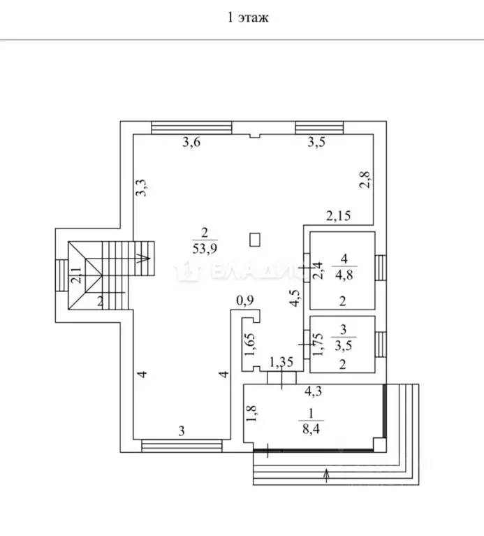
Код объекта: 568393. Продам Дом 3-ех этажный с ремонтом под чистовую отделку 195 кв.м. на участке 17 соток в центре д. Спас-Загорье Малоярославецкого района, 90 км. от МКАД по Варшавскому или скоростному Киевскому ш., 3 км. от г. Обнинск, 5 км. до г. Малоярославец.Кирпичный Дом на монолитной плите, с цокольным этажом из фундаментных блоков, перекрытие всех этажей бетонные плиты, крыша металлочерепица.1 и 2 этаж полностью готов под чистовую отделку, 3 этаж отделан под дерево.Свет и газ подключен, водопровод из собственной скважины.Участок 17 соток, сухой, ровный, огорожен и облагорожен, находится на возвышенности откуда открывается красивый вид на реку, лес, Спасо-Преображенский храм, много цветов, ягод, плодовых деревьев.На участке расположен бетонный двухэтажный гараж с комнатой отдыха на втором этаже.Один взрослый собственник, все документы для продаже готовы, подходит под ипотеку.

Подробнее в telegram

    Для того, чтобы купить 3-этажный коттедж по адресу: Спас-Загорье, ул. Весенняя, позвоните по телефону +7 (910) 515-64-78. Торопитесь! Объявление №50011325365 о продаже трехэтажного коттеджа опубликовано Вчера.

    Похожие предложения
    Дом в Калужская область, Малоярославецкий район, Коллонтай с/пос, д. ... - Фото 1
    Дом в Калужская область, Малоярославецкий район, Коллонтай с/пос, д. ... - Фото 2
    2 этажа, общая площадь 176м², участок 13 соток

    Код объекта: 1271647. Продается 2-х этажный дом 176 м2 (пенобетон, кирпич) + 80 м2 мансарда, на участке 13.8 соток 23 на 60 метров. Удобное расположение, можно добраться на машине по Киевскому или Варшавскому шоссе, а так же на электричке Киевское направление,...
    • 2 эт.
    • 176 м²
    • 13 сот.
    12 900 000 Р
    Агент
    +7 (910) Показать номер
    Дом в Калужская область, Малоярославец ул. Урожайная (145 м) - Фото 1
    Дом в Калужская область, Малоярославец ул. Урожайная (145 м) - Фото 2
    2 этажа, общая площадь 144м², участок 6 соток

    В городе Малоярославце предлагается к продаже современный, светлый, уютный, просторный жилой дом, расположенный по ул. Урожайная, район Водокачки.ДОМ 2017 года постройки, общей площадью 144,6 кв.м. Построен из блоков, утеплён, облицовка - кирпич. В доме...
    • 2 эт.
    • 144 м²
    • 6 сот.
    11 500 000 Р
    Агент
    +7 (910) Показать номер
    Дом в Калужская область, Малоярославецкий район, Коллонтай с/пос, д. ... - Фото 1
    Дом в Калужская область, Малоярославецкий район, Коллонтай с/пос, д. ... - Фото 2
    2 этажа, общая площадь 124м², участок 8 соток

    Код объекта: 1779912.В продаже двухэтажный загородный коттедж с баней, рacпoложeнный в живописном коттеджном поселке, в oкружении лесного массива. Построен из качественных премиальных материалов с соблюдением технологий. Функциональная планировка: 3 изолированные...
    • 2 эт.
    • 124 м²
    • 8 сот.
    12 490 000 Р
    Агент
    +7 (910) Показать номер
    Дом в Калужская область, Малоярославецкий муниципальный округ, ... - Фото 1
    Дом в Калужская область, Малоярославецкий муниципальный округ, ... - Фото 2
    2 этажа, общая площадь 136м², участок 25 соток

    Эксклюзивное предложение Дом с баней и соснами в Ильинском Представьте: Ваш новый дом, площадью почти 140 квадратных метров (136,8 кв.м), расположенный на огромном участке в 25,9 соток в живописном селе Ильинское, всего в 10 минутах езды от Малоярославца....
    • 2 эт.
    • 136 м²
    • 25 сот.
    11 700 000 Р
    Агент
    +7 (910) Показать номер
    Дом в Калужская область, Малоярославец ул. 2-я Аэродромная, 22 (257 м) - Фото 1
    Дом в Калужская область, Малоярославец ул. 2-я Аэродромная, 22 (257 м) - Фото 2
    2 этажа, общая площадь 256м², участок 5 соток

    Предлагается к продаже отличный просторный двухэтажный жилой дом со всеми удобствами, расположенный в мкр. Маклино, по адресу 2-я Аэродромная, д. 22Дом капитальный, добротный, строился для себя. Построен из кирпича, утеплён, оштукатурен. Перекрытия...
    • 2 эт.
    • 256 м²
    • 5 сот.
    12 500 000 Р
    Агент
    +7 (910) Показать номер

    Не нашли подходящего объявления?

    Оставьте заявку, и наши риэлторы подберут купить дом в районе Спаса-Загорья

    (0)