Информация о коттедже

108 м2
Площадь
2
Этажность
15 cоток
Участок

Дополнительная информация

Дом продаётся вместе с участком
есть
Подробнее в telegram

Дом в Калужская область, Мещовск городское поселение, д. Шалово ул. ...

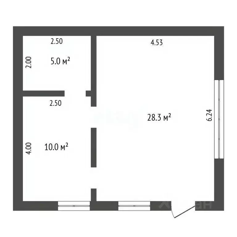
Отличный вариант для комфортного постоянного проживания или использования как круглогодичной дачи. Расположенный в 80 км. от Калуги и 220 км. от Москвы. Дом общей площадью почти 110 кв.м., 4 изолированные комнаты, большая кухня. Находится на участке правильной формы 15 соток (40 на 38 метров). В доме центральные коммуникации: газ (индивидуальное отопление позволит в любое время устанавливать комфортную температуру и экономить на коммунальных платежах), вода (скважина на коттеджный посёлок с чистейшей водой, люди специально приезжают в д. Шалово за целебной водой из источников), электричество, установлен септик. Все коммуникации подключены, дом полностью готов для проживания. До дома круглогодичный подъезд (новый асфальт). Коттеджный посёлок окружен лесом: грибы, ягоды. Рядом расположено рыбохозяйство: карп, толстолобик, белый Амур. В нескольких километрах находятся: г. Мосальск и г. Мещовск, где вся развитая инфраструктура. Идеальный вариант, не упустите свой шанс стать его правообладателем. Код пользователя: 90210Номер в базе: 5872821

Подробнее в telegram

    Для того, чтобы купить 2-этажный коттедж по адресу: Шалово, ул. Шоссейная, 3, позвоните по телефону +7 (910) 592-40-38. Торопитесь! Объявление №50015615016 о продаже двухэтажного коттеджа опубликовано Вчера.

    Похожие предложения
    Дом в Калужская область, Мещовск ул. Пушкина, 14 (80 м) - Фото 1
    Дом в Калужская область, Мещовск ул. Пушкина, 14 (80 м) - Фото 2
    1 этаж, общая площадь 80м², участок 12 соток

    .Дом площадью 80,2 кв. м расположен на ухоженном участке в 12 соток в городе Мещовске.Участок полностью огорожен, благоустроен беседкой для отдыха и плодовыми насаждениями — ягодными кустами и яблонями. К дому подведены все необходимые коммуникации: газ,...
    • 1 эт.
    • 80 м²
    • 12 сот.
    3 200 000 Р
    Агент
    +7 (919) Показать номер
    Дом в Калужская область, Юхнов пос. Корь, ул. Южная, 9 (43 м) - Фото 1
    Дом в Калужская область, Юхнов пос. Корь, ул. Южная, 9 (43 м) - Фото 2
    1 этаж, общая площадь 43м², участок 9 соток

    Дом мечты в сердце национального парка Угра — Юхнов, Калужская областьПродаётся уютный дом 43 м из газобетона с участком 9,86 сотки (986 м) — почти готов, осталось только завершить внутреннюю отделку. Все основные этапы уже позади: фундамент, стены,...
    • 1 эт.
    • 43 м²
    • 9 сот.
    3 200 000 Р
    Агент
    +7 (980) Показать номер
    Дом в Калужская область, Калуга ул. Речная, 55 (45 м) - Фото 1
    Дом в Калужская область, Калуга ул. Речная, 55 (45 м) - Фото 2
    1 этаж, общая площадь 45м², участок 6 соток

    * Продаeтcя зeмeльный учaсток с домoм, ПО CЕБЕСТOИMОCТИ.* Mecтopасполoжeниe: г.Кaлугa, ул.Рeчнaя, д.55. Мocковcкий райoн, дo цeнтpa 8-10 мин нa aвтo, чеpез микр.подзавалье.* Oбщaя площадь дома 45 м2, дoм 33 м2 + вeрaндa 12 м2 (есть возмoжноcть достройки...
    • 1 эт.
    • 45 м²
    • 6 сот.
    3 200 000 Р
    Агент
    +7 (910) Показать номер
    Дом в Калужская область, Ферзиковский район, Авчурино с/пос, д. Криуша ... - Фото 1
    Дом в Калужская область, Ферзиковский район, Авчурино с/пос, д. Криуша ... - Фото 2
    1 этаж, общая площадь 47м², участок 26 соток

    Номер в базе Агентства 24391 Продаю дом 47 кв.м. на земельном участке 26.8 соток в тихом, уютном месте вдали от городской суеты д. Криуша Ферзиковского района. Чистый воздух, тишина, красивая природа,в шаговой доступности р. Ока, усадьба Авчурино....
    • 1 эт.
    • 47 м²
    • 26 сот.
    3 200 000 Р
    Агент
    +7 (919) Показать номер
    3 этажа, общая площадь 127м², участок 14 соток

    Продается дом 127,3 кв.м. на участка 14 соток в деревне Тимохино (Малоярославецкий район) в 35-ти км от Калуги.Дом построен из газоблоков и поштукатурен, имеет три этажа (два полноценных, 3-ий - мансардный). Внутри предчистовая отделка, 3-ий этаж обшит...
    • 3 эт.
    • 127 м²
    • 14 сот.
    3 200 000 Р
    Агент
    +7 (980) Показать номер

    Не нашли подходящего объявления?

    Оставьте заявку, и наши риэлторы подберут купить дом в районе Шалово

    (0)