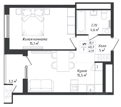
Информация о квартире

43.0 м2
Площадь
16.0 м2
Жилая
11.0 м2
Кухня
1
Комната
9
Этаж
10
Этажность

Дополнительная информация

Тип дома
монолит
Подробнее в telegram

1-к кв. Калужская область, Обнинск просп. Маркса, 41/2 (43.16 м)

Продаётся 1-комнатная квартира в сданном доме (Маркса, 41 (Дом 2)), срок сдачи: II-кв. 2023, общей площадью 43.16 кв.м., на 9 этаже. Жилой комплекс Парковый центрасположен в самом центре г. Обнинска. Комплекс состоит из 5-ти современных монолитных домов переменной этажности в духе неомодернизма. Оригинальный дизайн входных групп в эко-стиле с большим количеством зелени придаст дополнительный уют нашим домам. Первые этажи комплекса предназначены для коммерческого использования, что позволит его жителямиметь все самое необходимое под рукой - супермаркеты, салоны красоты, кафе и многое другое. Преимущества:- авторские архитектурные решения,- вентилируемые фасады с облицовкой керамогранитом,- газовая крышная котельная,- квартиры с террасой сад в доме ,- автоматизированные системы контроля электроэнергии, воды и отопления,- видеонаблюдение, консьерж,- обустроенные детские, спортивные площадки и скверы,- концепция двор без машин . Проектом предусматривается благоустройство территории жилого комплекса: устройство газонов, посадка деревьев и кустарников, а так же расположение малых архитектурных форм на придомовой территории.

Подробнее в telegram

    Не нашли подходящего объявления?

    Оставьте заявку, и наши риэлторы подберут квартиру в новостройке в районе Обнинска

    (0)