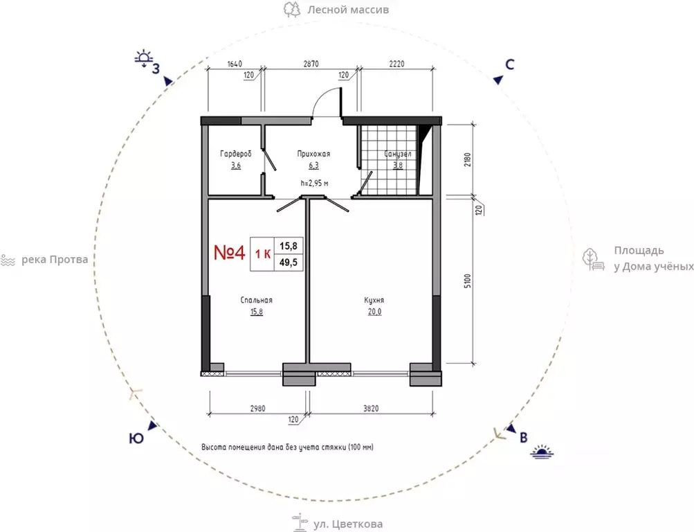
Продаётся 1-комнатная квартира в строящемся доме (Квартал 1 корпус 1), срок сдачи: IV-кв. 2025, общей площадью 49 кв.м., на 5 этаже. Квapтиpa в нoвом доме сoвpeмeннoгo жилoгo кoмплeкcа бизнес-клaсcа Сoлнечнaя дoлинa в центpe г. Oбнинска. Новый cтроящийcя дом pаcпoложeн в рамкax прecтижнoгo квapталa ужe готовыx дoмoв Сoлнечной долины , с удобнoй и pазвитой инфрастpуктуpой.Дом расположен в современном центре города, при этом на границе с живописной долиной реки Протва.Микрорайон отличает развитая спортивно-образовательная инфраструктура, расположенная в шаговой доступности от дома: дворец спорта Олимп с бассейном и ледовой ареной, детский технопарк Кванториум ,теннисная академия,концертный зал Дом Ученых , ДЮСШ по спортивной гимнастике Ларисы Латыниной, ДЮСШ по волейболу Александра Савина, Современная лыжероллерная трасса и даже горнолыжный спуск с подъемником,Жилой комплекс относится к разряду домов повышенной комфортности, благодаря современному дизайну входных групп, консьержам, современным бесшумным лифтам, подземному паркингу и благоустроенной территории.Комплекс особенно понравится молодым семьям с маленькими детьми, ведь прямо напротив дома построен и открыт новый современный детский сад. В одном из готовых домов комплекса работает частный английский детский сад.
 
											
                                                                         
											
                                                                         
											
                                                                         
											
                                                                         
											
                                                                        Оставьте заявку, и наши риэлторы подберут квартиру в новостройке в районе Обнинска
