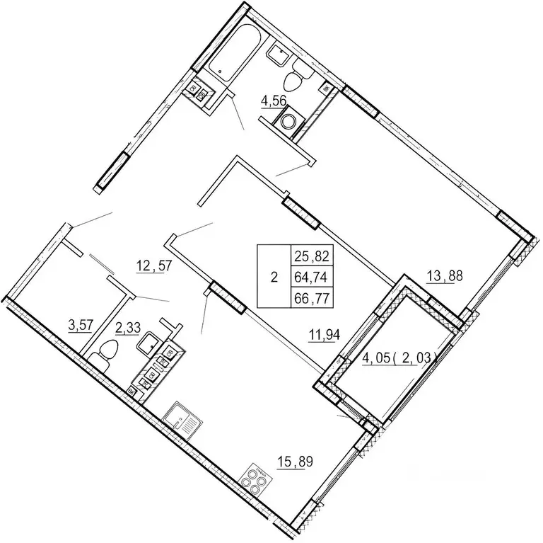
Предлагается на продажу уникальный лот в ЖК Новый город, в обжитом доме на Левитана 6 Квартира расположена на пятом этаже. Окна выходят на красивый двор и на прекрасный лес В квартире выполнен предчистовой ремонт от застройщика, оштукатурены стены, на полу стяжка, разведено отопление. Высота потолка 3 метра. В квартире великолепная планировка, по сути это евротрёшка с просторным квадратным холлом (17,7 кв. м, много места для размещения встроенных шкафов, гардероба), просторная кухня-гостиная (20,1 кв. м) с выходом на застекленную лоджию (6 кв. м), с которой открывается прекрасный вид на лес. Остекление дверей витражное, с минимальным порогом при выходе. Две изолированные спальни (14,6+11,7 кв. м) выходят окнами во двор. В квартире два просторных санузла. Квартира без ремонта и у Вас есть прекрасная возможность сделать ремонт своей мечты, не переделывая другие дизайнерские решения.В стоимость входит большая кладовая на цокольном этаже площадью 6,6 кв. м, где можно разместить коляску, велосипед, резину для авто и много другое В подъезде 2 быстрых бесшумных лифта, просторная велосипедная-колясочная, умный домофон позволяет открывать дверь Вашим гостям с телефона. Двор закрытый, без машин, современные детская и спортивная площадки с безопасным покрытием, скейт-парк, велодорожка, уличные тренажёры, теннисные столы и батуты. Рядом с домом два корпуса самой современной школы 18, ФТШ. В шаговой доступности несколько сетевых супермаркетов, ПВЗ, кафе, кулинария. Для любителей активного образа жизни удобные прогулочные дорожки вдоль леса, всегда тишина и свежий воздух.Два взрослых собственника, материнский капитал при покупке не использовался Быстрый выход на сделку Звоните, пишите, показ организуем в любое удобное для Вас время.Юридическую чистоту сделки гарантирует международное агентство по недвижимости Сеntury 21 Абсолют.Арт.
Для того, чтобы купить двухкомнатную квартиру по адресу: Обнинск, ул. Левитана, 6, позвоните по телефону +7 (910) 911-96-83. Торопитесь! Объявление №30091002599 о продаже двухкомнатной квартиры опубликовано Сегодня.
 
											
                                                                         
											
                                                                         
											
                                                                         
											
                                                                        Оставьте заявку, и наши риэлторы подберут квартиру в районе Обнинска
