Информация об помещении

1
Этаж

Состояние и оснащение

Количество этажей
20
Подробнее в telegram

Помещение свободного назначения в Калужская область, Обнинск ул. ...

Продается коммерческое помещение 78,5 кв м с отдельным входом в лучшем ЖК Солнечная Долина 1-ый этаж дома ул. Долгининская д 6 - престижный дом бизнес-класса. Доступ 24/7 Косметический ремонт, сделана шумоизоляция, наличие сигнализации, интернет, первая зона 33,5 кв м: два санузла, несколько раковин, кухня, столешница, далее второй зал 42,3 кв м с двумя окнами. Высокий пешеходный и автомобильный трафик, в доме успешно функционируют такие организации и сетевые магазины: Красное и Белое, Пятерочка, стоматология Лазурит.Удобное расположение, в самом центре Обнинска, яркая и современная архитектура,ландшафтный дизайн и прогулочные дорожки вдоль домов, места для парковки делают этот район привлекательным для клиентов. Планировка помещения рассчитана на любой профиль деятельности.Юридическую чистоту гарантирует международное агентство Century21 Абсолют.Арт.

Подробнее в telegram
    Похожие предложения
    Помещение свободного назначения в Калужская область, Обнинск ул. ... - Фото 1
    Помещение свободного назначения в Калужская область, Обнинск ул. ... - Фото 2
    Продаётся помещение в Обнинске (89,8 м), в котором находится действующий бизнес, локация - за церковью на Энгельса д.10Помещение в собственности, полностью оборудованный зал, разрешительная документация, клиентская база и активы.Идеально для инвестора...
    • 1/1 эт.
    12 000 000 Р
    Агент
    +7 (910) Показать номер
    Помещение свободного назначения в Калужская область, Калуга Московская ... - Фото 1
    Помещение свободного назначения в Калужская область, Калуга Московская ... - Фото 2
    Предлагается к покупке нежилое помещение в центре города по адресу: ул. Московская, д.311 к4. Помещение располагается на 1 этаже 9-этажного кирпичного здания, общей площадью 102.3 кв.м.Локация на второй линии с отдельным входом со двора. Подходит под...
    • 1/9 эт.
    10 230 000 Р
    Агент
    +7 (910) Показать номер
    Помещение свободного назначения в Калужская область, Калуга ... - Фото 1
    Помещение свободного назначения в Калужская область, Калуга ... - Фото 2
    Продается помещение на 1 этаже жилого дома, 1-я линия, отдельный вход, планировка: торговый зал (81,1 кв.м.), два подсобных помещения (5,8 и 8,5 кв.м.), склад (11,5 кв.м.) и с/у (1,9 кв.м.), все коммуникации. В настоящее время сдано в аренду под магазин...
    • 1/5 эт.
    10 900 000 Р
    Агент
    +7 (980) Показать номер
    Помещение свободного назначения в Калужская область, Калуга ... - Фото 1
    Помещение свободного назначения в Калужская область, Калуга ... - Фото 2
    Продается помещение в мкр. Малинники, 2 и 3 этаж трехэтажного нежилого здания. 2 этаж - 174, 9 кв.м., 3 этаж - 117,2 кв.м., все коммуникации, земля под зданием и вокруг здания в общей долевой собственности (10 соток). Помещение требует ремонта,/кв.м.
    • 2/3 эт.
    11 684 000 Р
    Агент
    +7 (980) Показать номер
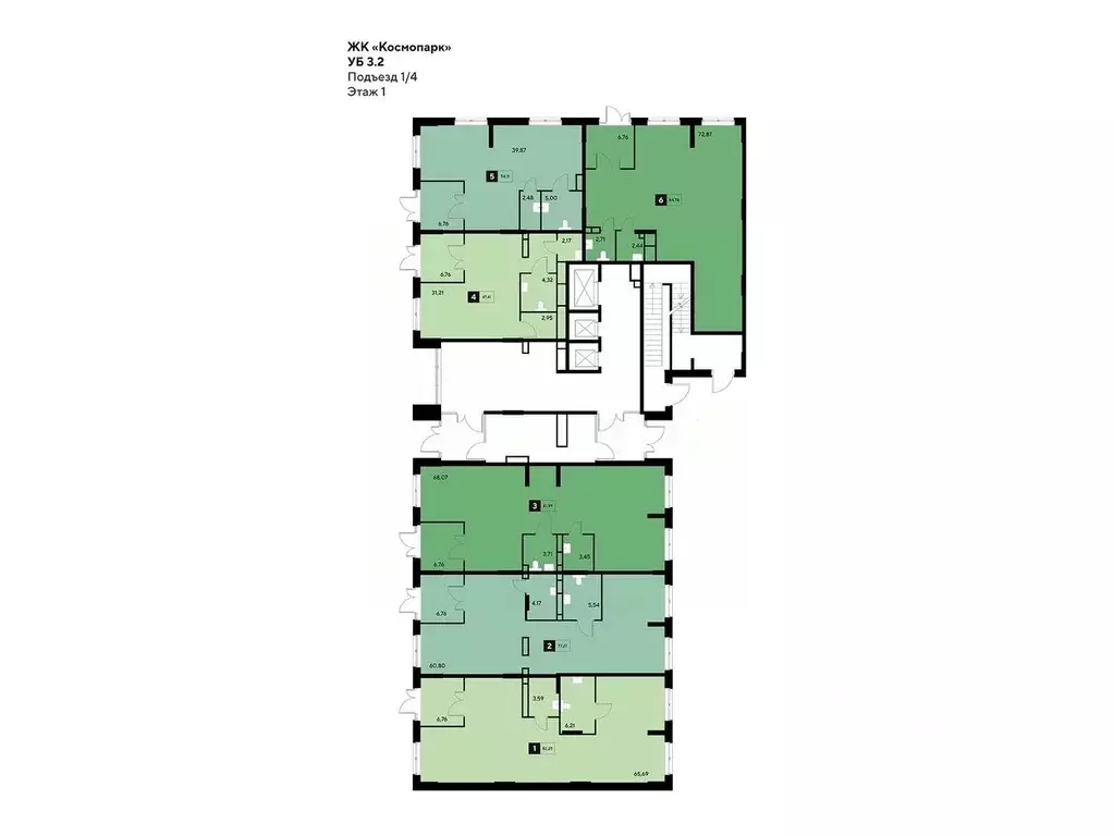
    Помещение свободного назначения в Калужская область, Калуга Космопарк ... - Фото 1
    Помещение свободного назначения в Калужская область, Калуга Космопарк ... - Фото 2
    В продаже от застройщика ЖК Космопарк г. Калуга, Литер Срок сдачи: 1 кв. 2027, общей площадью 47.41 кв.м., на 1 этаже.Жилой квартал Космопаркасположен в Ленинском округе Калуги, на левом берегу Оки, недалеко от центра города. Вокруг развитый район:...
    • 1/25 эт.
    10 904 300 Р
    Агент
    +7 (910) Показать номер

    Не нашли подходящего объявления?

    Оставьте заявку, и наши риэлторы подберут псн в районе Обнинска

    (0)