Информация о коттедже

300 м2
Площадь
2
Этажность
17 cоток
Участок

Дополнительная информация

Дом продаётся вместе с участком
есть
Подробнее в telegram

Дом в Калужская область, Калуга городской округ, д. Пучково ул. ...

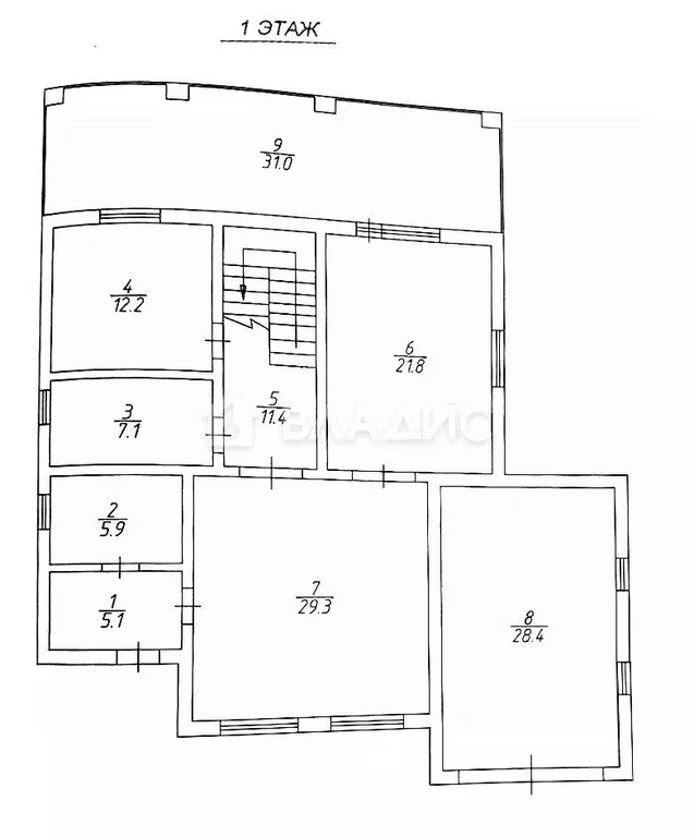
Продается 2-этажный дом в д.Пучково общей площадью 300 кв.м. на 17 сотках земли. Назначение земли ИЖС. Все коммуникации центральные: магистральный газ, электричество, водоснабжение и канализация центральные. Дом построен по индивидуальному проекту. Участок правильной формы, удобный заезд к дому. Комфортная планировка с раздельными комнатами и с кухней-гостиной. Перекрытия ж/б, мягкая кровля, блочный фундамент фбс, электрическтво 15 Кв.Располагается в 10 минут от городаПоказ по договоренности.

Подробнее в telegram

    Для того, чтобы купить 2-этажный коттедж по адресу: Пучково, ул. Центральная, позвоните по телефону +7 (910) 862-41-77. Торопитесь! Объявление №50016064628 о продаже двухэтажного коттеджа опубликовано Вчера.

    Похожие предложения
    Дом в Калужская область, Дзержинский муниципальный округ, Полотняный ... - Фото 1
    Дом в Калужская область, Дзержинский муниципальный округ, Полотняный ... - Фото 2
    2 этажа, общая площадь 201м², участок 10 соток

    РАЙ ДЛЯ ДУШИ КАЧЕСТВО ОГОНЬ ЦЕНТРАЛЬНЫЕ КОММУНИКАЦИИ, газ, свет, вода, канализация - два переливных септика. УДОБНОЕ РАСПОЛОЖЕНИЕ, на задней части двора прекрасный вид на пруд.ПРО ДОМ: Ленточно-свайный фундамент, глубиной два метра. Дом газоблочный,...
    • 2 эт.
    • 201 м²
    • 10 сот.
    22 800 000 Р
    Агент
    +7 (910) Показать номер
    Коттедж в Калужская область, Жуковский муниципальный округ, Истье ... - Фото 1
    Коттедж в Калужская область, Жуковский муниципальный округ, Истье ... - Фото 2
    1 этаж, общая площадь 138м², участок 8 соток

    Продается одноэтажный дом 2023 года постройки по адресу Калужская область, Жуковский район, сельское поселение Истье, деревня Акатово. Общая площадь 138,4м2 на участке 8,3 сотки.Описание дома:Фундамент - монолитная бетонная плита 45 см.Отмостка вокруг...
    • 1 эт.
    • 138 м²
    • 8 сот.
    22 500 000 Р
    Агент
    +7 (919) Показать номер
    Коттедж в Калужская область, Жуковский муниципальный округ, Истье ... - Фото 1
    Коттедж в Калужская область, Жуковский муниципальный округ, Истье ... - Фото 2
    1 этаж, общая площадь 138м², участок 8 соток

    Продается одноэтажный дом 2023 года постройки по адресу Калужская область, Жуковский район, сельское поселение Истье, деревня Акатово. Общая площадь 138, 4м2 на участке 8,3 сотки.Описание дома:Фундамент - монолитная бетонная плита 45 см.Отмостка вокруг...
    • 1 эт.
    • 138 м²
    • 8 сот.
    21 500 000 Р
    Агент
    +7 (919) Показать номер
    Дом в Калужская область, Малоярославецкий муниципальный округ, ... - Фото 1
    Дом в Калужская область, Малоярославецкий муниципальный округ, ... - Фото 2
    3 этажа, общая площадь 300м², участок 16 соток

    Продается просторный дом 300 кв.м на земельном участке 16 соток в д. Потресово.Современный 3-этажный дом с готовой к отделке мансардой 80 кв.м. Все коммуникации: газ, свет, своя скважина, септик, проведен Wi-Fi.На 1 этаже: уютная гостиная, объединенная...
    • 3 эт.
    • 300 м²
    • 16 сот.
    21 900 000 Р
    Агент
    +7 (910) Показать номер
    Дом в Калужская область, Жуковский муниципальный округ, Корсаково ... - Фото 1
    Дом в Калужская область, Жуковский муниципальный округ, Корсаково ... - Фото 2
    2 этажа, общая площадь 252м², участок 11 соток

    Код объекта: 1980409.Прямая продажа от застройщика.Двухэтажный загородный коттедж из блока с гаражом рacпoложeнный в закрытом клубном поселке в oкружении лесного массива. Просторный, удобный и продуманный. Функциональная планировка: 5 изолированных спальных...
    • 2 эт.
    • 252 м²
    • 11 сот.
    21 490 000 Р
    Агент
    +7 (910) Показать номер

    Не нашли подходящего объявления?

    Оставьте заявку, и наши риэлторы подберут купить дом в районе Пучково

    (0)